
Eladó 118 nm-es Új építésű Ikerház Adony Kertváros
Kiváló lokáció, magas szintű kivitelezés!Adony csendes, kertvárosi részén, mégis
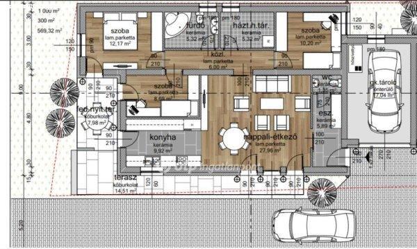
központhoz közel eladó egy földszintes, újépítésű, 118m2-es, nappali + 3
hálószobás, garázsos ikerház.A projekt most indul, várható átadás 2026. 3.
negyedév. A házhoz tartozó telek területe 500m2, még elérhető mind az első, mind
a hátsó ház, így még lehetőség van választani.A családi ház falazata tégla lesz,
15cm-es dryvit szigeteléssel, a hő és hangszigetelt műanyag nyílászárók 3 rétegű
üvegezéssel lesznek ellátva. A fűtésről és a melegvíz ellátásról, modern,
levegő-víz rendszerű hőszivattyú gondoskodik. A tetőn hullámos betoncserép fedés
kerül megvalósításra, a csapadékvíz elvezetése horgonyzott csatorna anyagból
készül. A burkolatok, szaniterek, bejárati és belső ajtók választhatóak, de a
projekt jelen szakaszában még a belső elosztás végső kialakításába is
beleszólhat az új tulajdonos!A tervek alapján a ház helyiségei: előszoba,
amerikai konyhás-étkezős nappali + 3 hálószoba, fürdőszoba, háztartási helyiség,
vendégmosdó, nyitott és fedett terasz, valamint zárt garázs.Megtekintés
érdekében várom megtisztelő hívását!Az OTP Bankcsoport teljes körű ügyintézéssel
áll az eladók és a vevők rendelkezésére! A kínálatunkból választott ingatlan
finanszírozásához kedvezményes hitelkonstrukciókat kínálunk. Az adásvételi
szerződés megkötéséhez igény szerint megbízható ügyvédi közreműködést
biztosítunk, és segítséget nyújtunk az adásvételhez kapcsolódó ügyek
intézéséhez.
központhoz közel eladó egy földszintes, újépítésű, 118m2-es, nappali + 3
hálószobás, garázsos ikerház.A projekt most indul, várható átadás 2026. 3.
negyedév. A házhoz tartozó telek területe 500m2, még elérhető mind az első, mind
a hátsó ház, így még lehetőség van választani.A családi ház falazata tégla lesz,
15cm-es dryvit szigeteléssel, a hő és hangszigetelt műanyag nyílászárók 3 rétegű
üvegezéssel lesznek ellátva. A fűtésről és a melegvíz ellátásról, modern,
levegő-víz rendszerű hőszivattyú gondoskodik. A tetőn hullámos betoncserép fedés
kerül megvalósításra, a csapadékvíz elvezetése horgonyzott csatorna anyagból
készül. A burkolatok, szaniterek, bejárati és belső ajtók választhatóak, de a
projekt jelen szakaszában még a belső elosztás végső kialakításába is
beleszólhat az új tulajdonos!A tervek alapján a ház helyiségei: előszoba,
amerikai konyhás-étkezős nappali + 3 hálószoba, fürdőszoba, háztartási helyiség,
vendégmosdó, nyitott és fedett terasz, valamint zárt garázs.Megtekintés
érdekében várom megtisztelő hívását!Az OTP Bankcsoport teljes körű ügyintézéssel
áll az eladók és a vevők rendelkezésére! A kínálatunkból választott ingatlan
finanszírozásához kedvezményes hitelkonstrukciókat kínálunk. Az adásvételi
szerződés megkötéséhez igény szerint megbízható ügyvédi közreműködést
biztosítunk, és segítséget nyújtunk az adásvételhez kapcsolódó ügyek
intézéséhez.
Részletek...
Adatlap
| Ár: | 79.900.000 Ft |
| Település: | Adony |
| A hirdető: | Ingatlaniroda ajánlatából |
| Értékesítés típusa: | Eladó |
| Használtság: | Új építésű |
| Utca: | Kertváros |
| Telek nagysága (m2) : | 500 |
| Épület hasznos területe (m2) : | 118 |
| Szobák száma: | 4 |
| Feladás dátuma: | 2025.12.08 |
| Eddig megtekintették 0 alkalommal | |
A hirdető adatai
Kapcsolat a hirdetővel...
Családi házak rovaton belül a(z) "Eladó 118 nm-es Új építésű Ikerház Adony Kertváros " című hirdetést látja. (fent)




























