
Hajdúsámson, Martinka ikerházi lakások eladók
Ikerházi lakások eladók Hajdúsámson Martinka csendes lakott környezetben
2026 évvégi költözéssel Alapadatok:- Teljes ingatlan teru?lete: 2.105
m2- Telekha?nyad: 1/2-1/2, a telek a vételár részét képezi!- Lako?te?r netto?
alapteru?lete: 127,6 m2/lakás- Gara?zs alapteru?let: az o?sszesi?tett netto?
re?szben szerepel, 19,8 m2/lakás- Fedett terasz: + 9,57 m2/lakás- Nyitott
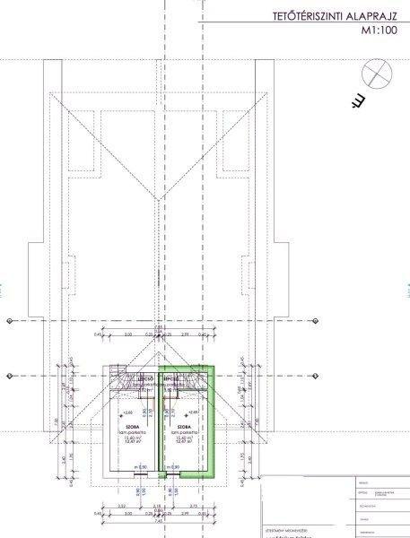
terasz: +19,1 m2/lakásHelyise?gek:- Fo?ldszint:- Konyha - E?tkezo?- Nappali- 3
db ha?lo?szoba- Kamra- Fu?rdo?szoba WC-vel - WC mosdo?kagylo?val - Háztartási
helyiség- Közlekedő- Elo?te?r- Gara?zs - Tetőtér- Szoba- Ku?lso? teherhordo?
falak: 30 cm Leier NF te?gla- Belso? teherhordo? fal( gara?zs e?s ha?lo?szoba
ko?zo?tt): 25 cm Leier NF te?gla- Lako?egyse?gek ko?zo?tti fal: 2x25 cm Leier NF
te?gla, ko?zte 5 cm hang ga?tlo? ko?zetgyapot re?teggel- Va?laszfalak: 10 cm
Leier va?laszfal te?gla- Fo?de?m: fa fo?de?m kialaki?ta?s- Gara?zs feletti
fo?de?m: fa gerenda?s, OSB-lap bori?ta?ssal- Nyi?la?sa?thidalo?k: kisebb
feszta?vna?l Leier a?thidalo?, nagyobb feszta?vna?l vasbeton gerenda - Rejtett
redo?nytok nem keru?l kialaki?ta?sra- Belso? le?pcso?: vasbeton le?pcso?
ace?lcso? korla?ttal Teto?szerkezet:- Teto?fede?s: Leier hulla?mos betoncsere?p,
antracit szi?nben- Ereszkialaki?ta?s: csu?ngo? eresz, lambe?ria bori?ta?s
feste?s ne?lku?l- Ba?dogos szerkezetek: szi?nezett aluminium antracit
szi?nben- Laka?sokat elva?laszto? szerkezet: tu?z ga?tlo? gipszkarton e?s 20 cm
Therwollin szigetele?s Ho?- e?s Vi?zszigetele?s:- Homlokzati szigetele?s: 15 cm
Thermodam EPS- La?bazati szigetele?s: 10 cm Thermodam
XPS- Padlo?szigetele?s: Talajnedvesse?g elleni szigetele?s, 12 cm Thermodam
le?pe?sa?llo? EPS- Fo?de?mszigetele?s: 30 cm u?veggyapot Szi?neze?s:- Homlokzati
szi?neze?s: Ceresit CT60 to?rt fehe?r- La?bazat: antracit szi?nu? gyo?ngykavics
mu?gyanta bevonattal- Belso? feste?s: - Glettele?s 2 re?tegben- Fehe?r szi?n
felhorda?sa 2 re?tegben Belso? e?pi?te?szet,
nyi?la?sza?ro?k:- Mennyezet: gipszkarton egy re?tegben, vi?zszintes
elrendeze?s- Nyi?la?sza?ro?k: Veka mu?anyag, 3 re?tegu? u?vegeze?s,
ki?vu?l-belu?l fehe?r - Ku?lso? pa?rka?ny: lemez- Belso? ko?nyo?klo?: mu?anyag,
fehe?r szi?nu? - Belte?ri ajto?k: 10db dekorfo?lia?s teli ajto?, papi?rra?cs
bete?ttel, uto?lag szerelheto? tokkal, za?rral,
kilinccselBurkolatok:- Hidegburkolat: va?laszthato? - Helyise?gek: elo?szoba,
konyha, e?tkezo?, fu?rdo?, wc, kamra, gara?zs, terasz, beja?rati le?pcso? -
Fu?rdo? e?s WC oldalfal hidegburkolat: 2 m magassa?gig,- A konyha e?s kamra
oldalfal burkolata nem re?sze a tartalomnak. - Melegburkolat: lamina?lt
parketta a nappaliban, 4 db ha?lo?szoba?ban e?s a
ko?zlekedo?ben.Ge?pe?szet:- Kondenza?cio?s kombi ga?zkaza?n ke?me?nnyel- 4 db
radia?tor: szoba?nke?nt 1 db,- 1 db to?ro?lko?zo?sza?ri?to? radia?tor a
fu?rdo?szoba?ban- 2 db termoszta?t- Konyha-e?tkezo?-nappali
padlo?fu?te?s- Szaniterek: - 1 db Alfo?ldi mosdo? (fu?rdo?szoba)- 2 db Alfo?ldi
mosdo?kagylo? (gara?zs,WC)- 1 db akril ka?d- 2 db Alfo?ldi WC cse?sze,
tarta?llyal e?s u?lo?ke?vel- Csaptelepek:- 3 db Mofe?m Mambo mosdo? csaptelep- 1
db Mofe?m Mambo ka?dto?lto? csaptelep- Kia?lla?sok: mosdo?, moso?ge?p,
mosogato?ge?p kialaki?ta?sa- Ivo?vi?z e?s ga?zvezete?k kie?pi?te?se,
engede?lyeztete?se, me?ro?o?ra?kkal ella?ta?sa - Szennyvi?zvezete?k
kie?pi?te?se Elektromos szerele?s:- 1 fa?zis, 32A elektromos me?ro?o?ra az utcai
keri?te?s vonala?n - Legrand aljzatok fehe?r szi?nben, helyise?genke?nt 1 db
kapcsolo?, 3db dugalj: terme?kenke?nt - 5 db TV kia?lla?s - 4 db fali kar
kie?pi?te?se a ku?lso? homlokzatra - Riaszto? elo?ke?szi?te?se Ku?lso?
munka?k: - Te?rko?veze?s-: 10x20 cm szu?rke te?rko?vel - Utcai keri?te?sto?l a
beja?ratig 1 m sze?lesse?g - Ko?ztes keri?te?s e?pi?te?se: - Beja?ratto?l
teraszig 1 m sze?lesse?g - Oldalt e?s ha?tul 40 cm sze?lesse?g- Gara?zs
beja?ratna?l 3 m sze?lesse?g - 2 sor zsaluko?, fu?ggo?leges za?rt szelve?ny,
dro?tha?lo? bori?ta?s
2026 évvégi költözéssel Alapadatok:- Teljes ingatlan teru?lete: 2.105
m2- Telekha?nyad: 1/2-1/2, a telek a vételár részét képezi!- Lako?te?r netto?
alapteru?lete: 127,6 m2/lakás- Gara?zs alapteru?let: az o?sszesi?tett netto?
re?szben szerepel, 19,8 m2/lakás- Fedett terasz: + 9,57 m2/lakás- Nyitott
terasz: +19,1 m2/lakásHelyise?gek:- Fo?ldszint:- Konyha - E?tkezo?- Nappali- 3
db ha?lo?szoba- Kamra- Fu?rdo?szoba WC-vel - WC mosdo?kagylo?val - Háztartási
helyiség- Közlekedő- Elo?te?r- Gara?zs - Tetőtér- Szoba- Ku?lso? teherhordo?
falak: 30 cm Leier NF te?gla- Belso? teherhordo? fal( gara?zs e?s ha?lo?szoba
ko?zo?tt): 25 cm Leier NF te?gla- Lako?egyse?gek ko?zo?tti fal: 2x25 cm Leier NF
te?gla, ko?zte 5 cm hang ga?tlo? ko?zetgyapot re?teggel- Va?laszfalak: 10 cm
Leier va?laszfal te?gla- Fo?de?m: fa fo?de?m kialaki?ta?s- Gara?zs feletti
fo?de?m: fa gerenda?s, OSB-lap bori?ta?ssal- Nyi?la?sa?thidalo?k: kisebb
feszta?vna?l Leier a?thidalo?, nagyobb feszta?vna?l vasbeton gerenda - Rejtett
redo?nytok nem keru?l kialaki?ta?sra- Belso? le?pcso?: vasbeton le?pcso?
ace?lcso? korla?ttal Teto?szerkezet:- Teto?fede?s: Leier hulla?mos betoncsere?p,
antracit szi?nben- Ereszkialaki?ta?s: csu?ngo? eresz, lambe?ria bori?ta?s
feste?s ne?lku?l- Ba?dogos szerkezetek: szi?nezett aluminium antracit
szi?nben- Laka?sokat elva?laszto? szerkezet: tu?z ga?tlo? gipszkarton e?s 20 cm
Therwollin szigetele?s Ho?- e?s Vi?zszigetele?s:- Homlokzati szigetele?s: 15 cm
Thermodam EPS- La?bazati szigetele?s: 10 cm Thermodam
XPS- Padlo?szigetele?s: Talajnedvesse?g elleni szigetele?s, 12 cm Thermodam
le?pe?sa?llo? EPS- Fo?de?mszigetele?s: 30 cm u?veggyapot Szi?neze?s:- Homlokzati
szi?neze?s: Ceresit CT60 to?rt fehe?r- La?bazat: antracit szi?nu? gyo?ngykavics
mu?gyanta bevonattal- Belso? feste?s: - Glettele?s 2 re?tegben- Fehe?r szi?n
felhorda?sa 2 re?tegben Belso? e?pi?te?szet,
nyi?la?sza?ro?k:- Mennyezet: gipszkarton egy re?tegben, vi?zszintes
elrendeze?s- Nyi?la?sza?ro?k: Veka mu?anyag, 3 re?tegu? u?vegeze?s,
ki?vu?l-belu?l fehe?r - Ku?lso? pa?rka?ny: lemez- Belso? ko?nyo?klo?: mu?anyag,
fehe?r szi?nu? - Belte?ri ajto?k: 10db dekorfo?lia?s teli ajto?, papi?rra?cs
bete?ttel, uto?lag szerelheto? tokkal, za?rral,
kilinccselBurkolatok:- Hidegburkolat: va?laszthato? - Helyise?gek: elo?szoba,
konyha, e?tkezo?, fu?rdo?, wc, kamra, gara?zs, terasz, beja?rati le?pcso? -
Fu?rdo? e?s WC oldalfal hidegburkolat: 2 m magassa?gig,- A konyha e?s kamra
oldalfal burkolata nem re?sze a tartalomnak. - Melegburkolat: lamina?lt
parketta a nappaliban, 4 db ha?lo?szoba?ban e?s a
ko?zlekedo?ben.Ge?pe?szet:- Kondenza?cio?s kombi ga?zkaza?n ke?me?nnyel- 4 db
radia?tor: szoba?nke?nt 1 db,- 1 db to?ro?lko?zo?sza?ri?to? radia?tor a
fu?rdo?szoba?ban- 2 db termoszta?t- Konyha-e?tkezo?-nappali
padlo?fu?te?s- Szaniterek: - 1 db Alfo?ldi mosdo? (fu?rdo?szoba)- 2 db Alfo?ldi
mosdo?kagylo? (gara?zs,WC)- 1 db akril ka?d- 2 db Alfo?ldi WC cse?sze,
tarta?llyal e?s u?lo?ke?vel- Csaptelepek:- 3 db Mofe?m Mambo mosdo? csaptelep- 1
db Mofe?m Mambo ka?dto?lto? csaptelep- Kia?lla?sok: mosdo?, moso?ge?p,
mosogato?ge?p kialaki?ta?sa- Ivo?vi?z e?s ga?zvezete?k kie?pi?te?se,
engede?lyeztete?se, me?ro?o?ra?kkal ella?ta?sa - Szennyvi?zvezete?k
kie?pi?te?se Elektromos szerele?s:- 1 fa?zis, 32A elektromos me?ro?o?ra az utcai
keri?te?s vonala?n - Legrand aljzatok fehe?r szi?nben, helyise?genke?nt 1 db
kapcsolo?, 3db dugalj: terme?kenke?nt - 5 db TV kia?lla?s - 4 db fali kar
kie?pi?te?se a ku?lso? homlokzatra - Riaszto? elo?ke?szi?te?se Ku?lso?
munka?k: - Te?rko?veze?s-: 10x20 cm szu?rke te?rko?vel - Utcai keri?te?sto?l a
beja?ratig 1 m sze?lesse?g - Ko?ztes keri?te?s e?pi?te?se: - Beja?ratto?l
teraszig 1 m sze?lesse?g - Oldalt e?s ha?tul 40 cm sze?lesse?g- Gara?zs
beja?ratna?l 3 m sze?lesse?g - 2 sor zsaluko?, fu?ggo?leges za?rt szelve?ny,
dro?tha?lo? bori?ta?s
Részletek...
Adatlap
| Ár: | 88.000.000 Ft |
| Település: | Hajdúsámson |
| A hirdető: | Ingatlaniroda ajánlatából |
| Értékesítés típusa: | Eladó |
| Telek nagysága (m2) : | 1 052 |
| Épület hasznos területe (m2) : | 127 |
| Ingatlan állapota: | Normál állapotú |
| Anyaga: | Tégla |
| A hirdető kérése: | Ingatlanközvetítő vagyok - keresse fel Irodánkat! |
| Feladás dátuma: | 2026.01.07 |
| Eddig megtekintették 15 alkalommal | |
A hirdető adatai
Kapcsolat a hirdetővel...
Családi házak rovaton belül a(z) "Hajdúsámson, Martinka ikerházi lakások eladók" című hirdetést látja. (fent)


























