
Eladó 108 nm-es Új építésű Családi ház Dömsöd
Dömsödön új építésű családi házak eladóak. A telek nagysága 1327 m2, bekerített.
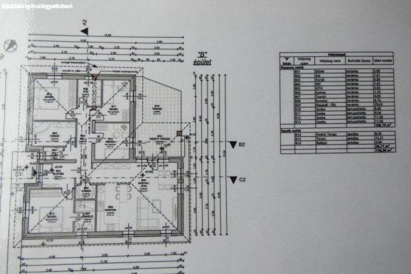
A telekre 2 db különálló, egyenként 108 m2 hasznos alapterületű ház épül,
egymástól elkerítve. Az építkezés elkezdődött, befejezése 2026 június. A házak
30-as téglából épülnek, 15 cm-es szigeteléssel, cserépfedéssel. A házakban
padlófűtés hőszivattyúval. Egy ház hasznos alapterülete 108 m2, 4 szoba,
amerikai konyhás nappali, 2 fürdőszoba, wc, előtér, közlekedő, háztartási
helyiség. A házhoz kapcsolódik egy 26 m2-es, részben fedett terasz. Közmű: víz,
villany, csatorna, kábel tv, gáz.Ár: 1. ház: 69,9 MFt. 2. ház: 73,9 MFt.
A telekre 2 db különálló, egyenként 108 m2 hasznos alapterületű ház épül,
egymástól elkerítve. Az építkezés elkezdődött, befejezése 2026 június. A házak
30-as téglából épülnek, 15 cm-es szigeteléssel, cserépfedéssel. A házakban
padlófűtés hőszivattyúval. Egy ház hasznos alapterülete 108 m2, 4 szoba,
amerikai konyhás nappali, 2 fürdőszoba, wc, előtér, közlekedő, háztartási
helyiség. A házhoz kapcsolódik egy 26 m2-es, részben fedett terasz. Közmű: víz,
villany, csatorna, kábel tv, gáz.Ár: 1. ház: 69,9 MFt. 2. ház: 73,9 MFt.
Részletek...
Adatlap
| Ár: | 73.900.000 Ft |
| Település: | Dömsöd |
| A hirdető: | Ingatlaniroda ajánlatából |
| Értékesítés típusa: | Eladó |
| Használtság: | Új építésű |
| Telek nagysága (m2) : | 1327 |
| Épület hasznos területe (m2) : | 108 |
| Szobák száma: | 4 |
| Feladás dátuma: | 2025.12.08 |
| Eddig megtekintették 0 alkalommal | |
A hirdető adatai
Kapcsolat a hirdetővel...
Családi házak rovaton belül a(z) "Eladó 108 nm-es Új építésű Családi ház Dömsöd" című hirdetést látja. (fent)

























