
Szolnok szívében tetőtérbeépítéses 131 m2-es ikerház eladó!
A Szolnoki CasaNetWork ingatlaniroda Szolnok belvárosában egy 131 m2-es
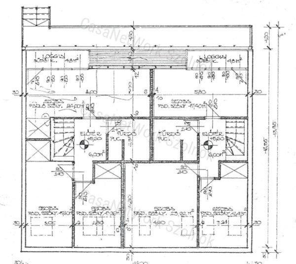
ikerházat megvételre kínál!Az eladó ingatlan főbb jellemzői:- 130 m2-es telken
helyezkedik el, amely teljesen körbe van kerítve - nettó lakótér : 131 m2 , a
terasz 8 m2, az erkély 5 m2- 1980-ban épült téglából, alapja beton- a tető
cseréppel borított- az épület alsó részében egy két helyiségből álló 39 m2-es
tágas pince található- dupla komfort jellemzi- a nyílászárók fából készültek- az
ingatlan melegét és a meleg vizet kombi gázkazán biztosítja- a ház elrendezése
és elhelyezkedése kíváló lehetőségeket bíztosít- az épületben a következő
helyiségek találhatók : előszoba, konyha, kamra, 2 fürdőszoba, közlekedő,
előtér, és 4 teljes értékű szoba- csendes, családias, barátságos szomszédok- pár
perces sétával gyalogosan is található a közelben: orvosirendelő, gyógyszertár,
óvoda, iskola, abc, buszmegálló, étterem, buszpályaudvar, posta,
stb... Amennyiben a fenti 155806510 -es azonosító számú eladó iker ház, vagy
bármely kínálatunkban található ingatlan felkeltette érdeklődését, kérem hívjon
bizalommal!/A hirdetésben szereplő információk a megbízótól kapott adatok
alapján készültek./Irodánk teljes körű szolgáltatással áll ügyfelei
rendelkezésére: hitelügyintézés, ügyvédi szolgáltatás, ingatlan értékbecslés,
energetikai tanúsítvány készítése.CasaNetWork - Ingatlanban otthon vagyunk!
ikerházat megvételre kínál!Az eladó ingatlan főbb jellemzői:- 130 m2-es telken
helyezkedik el, amely teljesen körbe van kerítve - nettó lakótér : 131 m2 , a
terasz 8 m2, az erkély 5 m2- 1980-ban épült téglából, alapja beton- a tető
cseréppel borított- az épület alsó részében egy két helyiségből álló 39 m2-es
tágas pince található- dupla komfort jellemzi- a nyílászárók fából készültek- az
ingatlan melegét és a meleg vizet kombi gázkazán biztosítja- a ház elrendezése
és elhelyezkedése kíváló lehetőségeket bíztosít- az épületben a következő
helyiségek találhatók : előszoba, konyha, kamra, 2 fürdőszoba, közlekedő,
előtér, és 4 teljes értékű szoba- csendes, családias, barátságos szomszédok- pár
perces sétával gyalogosan is található a közelben: orvosirendelő, gyógyszertár,
óvoda, iskola, abc, buszmegálló, étterem, buszpályaudvar, posta,
stb... Amennyiben a fenti 155806510 -es azonosító számú eladó iker ház, vagy
bármely kínálatunkban található ingatlan felkeltette érdeklődését, kérem hívjon
bizalommal!/A hirdetésben szereplő információk a megbízótól kapott adatok
alapján készültek./Irodánk teljes körű szolgáltatással áll ügyfelei
rendelkezésére: hitelügyintézés, ügyvédi szolgáltatás, ingatlan értékbecslés,
energetikai tanúsítvány készítése.CasaNetWork - Ingatlanban otthon vagyunk!
Részletek...
Adatlap
| Ár: | 58.990.000 Ft |
| Település: | Szolnok |
| A hirdető: | Ingatlaniroda ajánlatából |
| Értékesítés típusa: | Eladó |
| Használtság: | Használt |
| Telek nagysága (m2) : | 130 |
| Épület hasznos területe (m2) : | 131.00 |
| Szobák száma: | 4 |
| Fűtés: | Házközponti fűtéses (egyedi méréssel) |
| Ingatlan állapota: | Normál állapotú |
| Feladás dátuma: | 2026.05.07 |
| Eddig megtekintették 45 alkalommal | |
A hirdető adatai
Kapcsolat a hirdetővel...
Családi házak rovaton belül a(z) "Szolnok szívében tetőtérbeépítéses 131 m2-es ikerház eladó!" című hirdetést látja. (fent)




























