
Újépítésű ikerházak eladók Szászberken! - Szászberek
A Szolnoki CasaNetWork Ingatlaniroda megvételre kínál Szászbereken
könnyűszerkezetes lakóparki két lakásos ikerházi lakásokat!Szászberek
Jász-Nagykun-Szolnok Vármegye dinamikusan fejlődő települése, Szolnok 20 km,
Budapest 100 km, az M4 autóút néhány perc menetidővel elérhető. Annak érdekében,
hogy fejlett európai településsé emeljék Szászberket az önerő mellett pályázati
forrásokat felhasználva fejlesztik az infrastruktúrát. A közbiztonság
kiemelkedően jó, a településen magas színvonalú általános iskola, óvoda,
bölcsőde várja a kisgyermekes családokat is. 2019 évben átadták a Szászbereki
Sportcsarnok épületét, valamint a műfüves futballpályát, így a sportolás
szerelmesei helyben hódolhatnak szenvedélyüknek.A hirdetési ár 50 % befizetése
szerződéskötéskor.A lakások átadási határideje: szerződéskötést követően 1
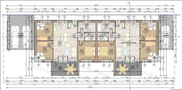
év.Néhány jellemző az ingatlanról- a lakóparkban két lakásos, földszintes
ikerházak épülnek- a lakás 75 m2 alapterülettel, 13 m2 terasszal, 15 m2
autóbeállóval készül- amerikai konyhás nappali, 3 szoba, dupla komfort-
hőszigetelt műanyag nyílászárók- a padlófűtést kondenzációs kazán fogja
biztosítani- minden lakás saját, fizikailag elválasztott kertrésszel
rendelkezik- a belső burkolatokat a tulajdonos választhatja katalógusbólMind a
műszaki, technológiai megvalósítás, mind a belső terek kialakítása a mai kor
igényeinek megfelelő.Részletes műszaki leírás az irodánkban elérhető!|A
hirdetésben szereplő információk a megbízótól kapott adatok alapján
készültek.|Amennyiben a hirdetésben szereplő új építésű társasházi lakás, vagy
bármely, a kínálatunkban található ingatlan felkeltette érdeklődését, hívjon
bizalommal!Irodánk teljeskörű szolgáltatással áll ügyfelei
rendelkezésére: hitelügyintézés, ügyvédi szolgáltatás, ingatlan értékbecslés,
energetikai tanúsítvány készítése.CasaNetWork - Ingatlanban otthon vagyunk!
könnyűszerkezetes lakóparki két lakásos ikerházi lakásokat!Szászberek
Jász-Nagykun-Szolnok Vármegye dinamikusan fejlődő települése, Szolnok 20 km,
Budapest 100 km, az M4 autóút néhány perc menetidővel elérhető. Annak érdekében,
hogy fejlett európai településsé emeljék Szászberket az önerő mellett pályázati
forrásokat felhasználva fejlesztik az infrastruktúrát. A közbiztonság
kiemelkedően jó, a településen magas színvonalú általános iskola, óvoda,
bölcsőde várja a kisgyermekes családokat is. 2019 évben átadták a Szászbereki
Sportcsarnok épületét, valamint a műfüves futballpályát, így a sportolás
szerelmesei helyben hódolhatnak szenvedélyüknek.A hirdetési ár 50 % befizetése
szerződéskötéskor.A lakások átadási határideje: szerződéskötést követően 1
év.Néhány jellemző az ingatlanról- a lakóparkban két lakásos, földszintes
ikerházak épülnek- a lakás 75 m2 alapterülettel, 13 m2 terasszal, 15 m2
autóbeállóval készül- amerikai konyhás nappali, 3 szoba, dupla komfort-
hőszigetelt műanyag nyílászárók- a padlófűtést kondenzációs kazán fogja
biztosítani- minden lakás saját, fizikailag elválasztott kertrésszel
rendelkezik- a belső burkolatokat a tulajdonos választhatja katalógusbólMind a
műszaki, technológiai megvalósítás, mind a belső terek kialakítása a mai kor
igényeinek megfelelő.Részletes műszaki leírás az irodánkban elérhető!|A
hirdetésben szereplő információk a megbízótól kapott adatok alapján
készültek.|Amennyiben a hirdetésben szereplő új építésű társasházi lakás, vagy
bármely, a kínálatunkban található ingatlan felkeltette érdeklődését, hívjon
bizalommal!Irodánk teljeskörű szolgáltatással áll ügyfelei
rendelkezésére: hitelügyintézés, ügyvédi szolgáltatás, ingatlan értékbecslés,
energetikai tanúsítvány készítése.CasaNetWork - Ingatlanban otthon vagyunk!
Részletek...
Adatlap
| Ár: | 45.600.000 Ft |
| Település: | Szászberek |
| A hirdető: | Ingatlaniroda ajánlatából |
| Értékesítés típusa: | Eladó |
| Használtság: | Új építésű |
| Telek nagysága (m2) : | 300 |
| Épület hasznos területe (m2) : | 90.00 |
| Szobák száma: | 4 |
| Fűtés: | Házközponti fűtéses (egyedi méréssel) |
| Feladás dátuma: | 2026.05.07 |
| Eddig megtekintették 49 alkalommal | |
A hirdető adatai
Kapcsolat a hirdetővel...
Családi házak rovaton belül a(z) "Újépítésű ikerházak eladók Szászberken! - Szászberek" című hirdetést látja. (fent)




























