
Eladó ikerház Szigethalom, Pest megye
Szigethalom csendes aszfaltos utcájában a szomszédtól fedett kerti tárolóval
elkülönített ikerház utcafronti lakása eladó.KIVÁLÓ KIVITELEZŐ, VERSENYKÉPES
ÁRON, KIVÁLÓ OTTHONT AJÁNL ÖNNEK! CSOK +, H-TARIFA, 2026 06. havi ÁTADÁSSAL!!Az
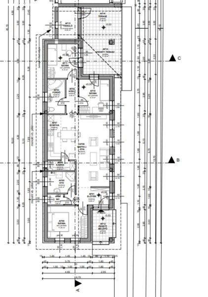
otthon 85,64 négyzetméteres, ehhez + kerti tároló 5,55 m2 és 29 m2 terasz
kapcsolódik.Helyiségei: nappali/étkező 27,00 m2, szoba 11,25 m2, szoba 9,12 m2,
szoba 9,12 m2, konyha 5,25 m2, fürdő szoba 5,28 m2, közlekedő 3,52 m2, előtér
6,06 m2, kamra 2,34 m2, wc 1,50 m2, hth 5,20 m2, fedett belépő 5,48 m2 fedett
terasz 11,79 m2, terasz 11,40 m2, tároló 5,55 m2.A telek ideális 420
négyzetméteres, a szomszédot csak akkor látjuk és halljuk ha mi is szeretnénk, a
teraszon zavartalanul pihenhetünk.Az otthon beton alapra, tégla falazattal, fa
födémmel, beton cserép fedéssel épül meg.Az épület külső nyílászárói (ablakok)
műanyag szerkezetűek 5 légkamrás 3 rétegű hőszigetelt üvegezéssel.A bejárati
biztonsági ajtó több ponton záródó.A homlokzaton 15 cm Dryvit rendszerű, a
födémben 25 cm fújt hőhíd mentes, míg a padlóban 10 cm lépésálló nikecell
szigetelés kerül beépítésre.Fűtése/ hűtése, meleg vízellátása hőszivattyúval
(levegő) történik padlófűtéssel.Burkolatok választhatóak keretösszegig, felette
a vevő kompenzál. Szaniterek keretösszegig választhatók.A kert alap
kertrendezéssel kerül átadásra.Az alaprajz változtatható, burkolatok
választhatóak, a kivitelező igyekszik minden vásárlói igényt kielégíteni.Az
ikerfelek külön mérőórával, külön helyrajzi számmal rendelkeznek, társas házi
alapító okirat készül.Első "A" lakás 350 m2 kert, 75 m2 ára: 89.000.000 ftHátsó
"B" lakás 420 m2 kert, 85,64 m2 ára: 89.000.000 ftVárom megtisztelő
hívását!FINANSZÍROZÁS:Nálunk mindent egy helyen intézhet:- hivatalos
ingatlanközvetítés;- szakszerű jogi képviselet;- profi CSOK-PLUSZ, és
hitelügyintézés: 16 Bank, több mint 100 konstrukció;A részletes adatvédelmi
tájékoztató folyamatosan elérhető a gdn adatvédelmi oldalon. ...TOVÁBBI,
TÖBBEZRES INGATLAN KÍNÁLAT: www.gdn-ingatlan.hu - GDN azonosító: 390438
elkülönített ikerház utcafronti lakása eladó.KIVÁLÓ KIVITELEZŐ, VERSENYKÉPES
ÁRON, KIVÁLÓ OTTHONT AJÁNL ÖNNEK! CSOK +, H-TARIFA, 2026 06. havi ÁTADÁSSAL!!Az
otthon 85,64 négyzetméteres, ehhez + kerti tároló 5,55 m2 és 29 m2 terasz
kapcsolódik.Helyiségei: nappali/étkező 27,00 m2, szoba 11,25 m2, szoba 9,12 m2,
szoba 9,12 m2, konyha 5,25 m2, fürdő szoba 5,28 m2, közlekedő 3,52 m2, előtér
6,06 m2, kamra 2,34 m2, wc 1,50 m2, hth 5,20 m2, fedett belépő 5,48 m2 fedett
terasz 11,79 m2, terasz 11,40 m2, tároló 5,55 m2.A telek ideális 420
négyzetméteres, a szomszédot csak akkor látjuk és halljuk ha mi is szeretnénk, a
teraszon zavartalanul pihenhetünk.Az otthon beton alapra, tégla falazattal, fa
födémmel, beton cserép fedéssel épül meg.Az épület külső nyílászárói (ablakok)
műanyag szerkezetűek 5 légkamrás 3 rétegű hőszigetelt üvegezéssel.A bejárati
biztonsági ajtó több ponton záródó.A homlokzaton 15 cm Dryvit rendszerű, a
födémben 25 cm fújt hőhíd mentes, míg a padlóban 10 cm lépésálló nikecell
szigetelés kerül beépítésre.Fűtése/ hűtése, meleg vízellátása hőszivattyúval
(levegő) történik padlófűtéssel.Burkolatok választhatóak keretösszegig, felette
a vevő kompenzál. Szaniterek keretösszegig választhatók.A kert alap
kertrendezéssel kerül átadásra.Az alaprajz változtatható, burkolatok
választhatóak, a kivitelező igyekszik minden vásárlói igényt kielégíteni.Az
ikerfelek külön mérőórával, külön helyrajzi számmal rendelkeznek, társas házi
alapító okirat készül.Első "A" lakás 350 m2 kert, 75 m2 ára: 89.000.000 ftHátsó
"B" lakás 420 m2 kert, 85,64 m2 ára: 89.000.000 ftVárom megtisztelő
hívását!FINANSZÍROZÁS:Nálunk mindent egy helyen intézhet:- hivatalos
ingatlanközvetítés;- szakszerű jogi képviselet;- profi CSOK-PLUSZ, és
hitelügyintézés: 16 Bank, több mint 100 konstrukció;A részletes adatvédelmi
tájékoztató folyamatosan elérhető a gdn adatvédelmi oldalon. ...TOVÁBBI,
TÖBBEZRES INGATLAN KÍNÁLAT: www.gdn-ingatlan.hu - GDN azonosító: 390438
Részletek...
Adatlap
| Ár: | 89.000.000 Ft |
| Település: | Szigethalom |
| A hirdető: | Ingatlaniroda ajánlatából |
| Értékesítés típusa: | Eladó |
| Használtság: | Új építésű |
| Utca: | Pest megye |
| Telek nagysága (m2) : | 350 |
| Épület hasznos területe (m2) : | 119 |
| Szobák száma: | 4 |
| Anyaga: | Tégla |
| A hirdető kérése: | Ingatlanközvetítő vagyok - keresse fel Irodánkat! |
| Feladás dátuma: | 2026.04.14 |
| Eddig megtekintették 49 alkalommal | |
A hirdető adatai
Kapcsolat a hirdetővel...
Családi házak rovaton belül a(z) "Eladó ikerház Szigethalom, Pest megye" című hirdetést látja. (fent)




























