
Eladó családi ház Gödöllő, Röges
Gyönyörű családi ház hatalmas telekkel eladó!Eladásra kínálok Gödöllő kertvárosi
részén, egy 2234nm-es telken, 2006-ban épült, kétszintes, plusz pinceszint egy
325nm-es 4 hálószobás plusz nappalis duplakomfortos klimatizál téglaépítésű,
szigetelt családi házat hatalmas fedett terasszal és emeleten lévő erkéllyel.A
ház utcafronti részén került kialakításra a 38nm-es, kettő autó tárolására
alkalmas automata szekcionált kapuval ellátott garázs, ahol elektromos autó
töltésére is lehetőség van (3*16amper).A garázsból nyílik a lejárat a 3méter
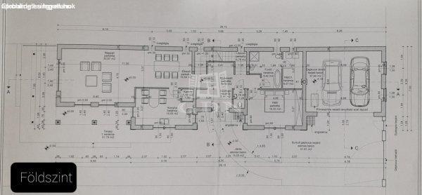
belmagasságú 90nm-es pincerészbe.Földszintre egy 16nm-es előszobán keresztül
juthatunk be.Ezen a szinten egy közel 17nm-es étkező, 15nm nagyságú világos
teraszkapcsolatos konyha és kamra, valamint egy 31nm nagyságú szintén
teraszkapcsolatos nappali, illetve közel 17nm-es hálószoba 8,5nm-es fürdő és
6nm-es háztartási helyiség és külön helyiségben kialakított wc és közel 52nm
nagyságú fedett terasz került kialakításra.A konyha és nappali teraszkapcsolata
lehetőséget nyújt arra, hogy a ház földszinti részét közvetlenül össze lehessen
kapcsolni az ápolt gondozott kerttel.A klimatizált felső szintre, kényelmes
fokkiosztású stabil lépcsőn juthatunk fel, ahol egy 19,4nm (nettó 18,5)
közlekedő, három egyenként 17nm (nettó 13,2), 23,2nm (nettó 20,2) és 18nm (nettó
15,5) szoba, valamint egy 6nm (nettó 5) gardrób és 7,1nm (nettó 5,2) fürdőszoba
került kialakításra.A kettő nagyobb szobából, közvetlen kijárat nyílik a hátsó
kertre néző közel 18nm nagyságú teraszra. A házat 2007-ben jelenlegi
tulajdonosai tervezték és építették átgondolt élhető terek és minőségi
anyaghasználat jellemzi.Nyílászárókra szigetelt alumínium redőny került
felszerelésre.Minden szoba klimatizált és központi porszívó könnyíti meg a
tulajdonos mindennapi dolgát.A ház központi fűtését és melegvíz ellátását
kondenzációs gázkészülék látja el, radiátor és padlófűtés hőleadás
kombinációjával.A ház kitűnő választás lehet már nagyobb gyerekekkel rendelkező
családok részére, mert kialakítása miatt alkalmas a különböző korosztályok
zavartalan együttélésére.Az udvaron fúrt kút található és automata
öntözőrendszer gondoskodik a zöldellő kertről. A kertbe épített szaletli
(grillező, kemence) gondoskodik nagyobb baráti és rokoni összejövetelek
megrendezésének lehetőségéről.Hatalmas telek alkalmas lehet akár önellátó
gazdálkodási tevékenység folytatására is.Ha felkeltettem az érdeklődését és
élőben is szeretné megtekinteni ezt hatalmas telken elhelyezkedő időtálló
ingatlant, kérem hívjon a hét bármelyik napján. KZS ...TOVÁBBI, TÖBBEZRES
INGATLAN KÍNÁLAT: www.gdn-ingatlan.hu - GDN azonosító: 390524
részén, egy 2234nm-es telken, 2006-ban épült, kétszintes, plusz pinceszint egy
325nm-es 4 hálószobás plusz nappalis duplakomfortos klimatizál téglaépítésű,
szigetelt családi házat hatalmas fedett terasszal és emeleten lévő erkéllyel.A
ház utcafronti részén került kialakításra a 38nm-es, kettő autó tárolására
alkalmas automata szekcionált kapuval ellátott garázs, ahol elektromos autó
töltésére is lehetőség van (3*16amper).A garázsból nyílik a lejárat a 3méter
belmagasságú 90nm-es pincerészbe.Földszintre egy 16nm-es előszobán keresztül
juthatunk be.Ezen a szinten egy közel 17nm-es étkező, 15nm nagyságú világos
teraszkapcsolatos konyha és kamra, valamint egy 31nm nagyságú szintén
teraszkapcsolatos nappali, illetve közel 17nm-es hálószoba 8,5nm-es fürdő és
6nm-es háztartási helyiség és külön helyiségben kialakított wc és közel 52nm
nagyságú fedett terasz került kialakításra.A konyha és nappali teraszkapcsolata
lehetőséget nyújt arra, hogy a ház földszinti részét közvetlenül össze lehessen
kapcsolni az ápolt gondozott kerttel.A klimatizált felső szintre, kényelmes
fokkiosztású stabil lépcsőn juthatunk fel, ahol egy 19,4nm (nettó 18,5)
közlekedő, három egyenként 17nm (nettó 13,2), 23,2nm (nettó 20,2) és 18nm (nettó
15,5) szoba, valamint egy 6nm (nettó 5) gardrób és 7,1nm (nettó 5,2) fürdőszoba
került kialakításra.A kettő nagyobb szobából, közvetlen kijárat nyílik a hátsó
kertre néző közel 18nm nagyságú teraszra. A házat 2007-ben jelenlegi
tulajdonosai tervezték és építették átgondolt élhető terek és minőségi
anyaghasználat jellemzi.Nyílászárókra szigetelt alumínium redőny került
felszerelésre.Minden szoba klimatizált és központi porszívó könnyíti meg a
tulajdonos mindennapi dolgát.A ház központi fűtését és melegvíz ellátását
kondenzációs gázkészülék látja el, radiátor és padlófűtés hőleadás
kombinációjával.A ház kitűnő választás lehet már nagyobb gyerekekkel rendelkező
családok részére, mert kialakítása miatt alkalmas a különböző korosztályok
zavartalan együttélésére.Az udvaron fúrt kút található és automata
öntözőrendszer gondoskodik a zöldellő kertről. A kertbe épített szaletli
(grillező, kemence) gondoskodik nagyobb baráti és rokoni összejövetelek
megrendezésének lehetőségéről.Hatalmas telek alkalmas lehet akár önellátó
gazdálkodási tevékenység folytatására is.Ha felkeltettem az érdeklődését és
élőben is szeretné megtekinteni ezt hatalmas telken elhelyezkedő időtálló
ingatlant, kérem hívjon a hét bármelyik napján. KZS ...TOVÁBBI, TÖBBEZRES
INGATLAN KÍNÁLAT: www.gdn-ingatlan.hu - GDN azonosító: 390524
Részletek...
Adatlap
| Ár: | 229.000.000 Ft |
| Település: | Gödöllő |
| A hirdető: | Ingatlaniroda ajánlatából |
| Értékesítés típusa: | Eladó |
| Használtság: | Újszerű |
| Utca: | Röges |
| Telek nagysága (m2) : | 2234 |
| Épület hasznos területe (m2) : | 325 |
| Szobák száma: | 5 |
| Fűtés: | Cirkó fűtéses |
| Anyaga: | Tégla |
| A hirdető kérése: | Ingatlanközvetítő vagyok - keresse fel Irodánkat! |
| Feladás dátuma: | 2026.04.14 |
| Eddig megtekintették 48 alkalommal | |
A hirdető adatai
Kapcsolat a hirdetővel...
Családi házak rovaton belül a(z) "Eladó családi ház Gödöllő, Röges" című hirdetést látja. (fent)




























