
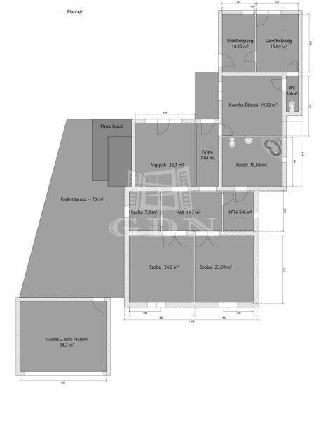
Eladó családi ház Gödöllő, Szilágyi Erzsébet utca
Gödöllőn 548 m2-es telken a Szilágyi Erzsébet utca és a Hunyadi János utca
között, két utcafronttal, nettó 168,72m2-es + 34,3m2-es kétautós garázzsal,
13,5m2-es pincével és 70 m2-es fedett terasszal rendelkező családi ház eladó!A
2004-ben épült és folyamatosan modernizált ingatlanban a Hunyadi János utca
felőli utcafronti bejárattal egy 35 m2-es üzlethelyiség található. A homlokzati
falak 30-as és 38-as tégla falazattal épültek, melyeket 10cm-es EPS dryvit
szigeteléssel láttak el. A külső nyílászárók műanyag thermó üvegekkel szereltek.
A tetőt zsindely fedi.A fűtésről kombi gázkazán gondoskodik.A parkosított kertet
öntözőrendszer locsolja helyettünk. A megközelítőleg 70m2-es fedett terasz
kiválló helyszíne a családi összejöveteleknek és a pihenésnek. Az itt található
jacuzzi is a vételár részét képezi. Parkolni a Sziláégyi Erzsébet utcáról
elektromos garázsajtón megközelíthető 2 autó tárolására kialakított garázsban
tudunk.A villamos áram terhelhetőseége 1x32A.Az üzlethelyiség gipszakrtonnal
lett elválasztva, hogy akár 2 üzletet is üzemeltethessünk. A könnyedén
elbontható válaszfallal 35m2-es helyiséget tudunk kialakítani.Tárolásra a
nappali alatt kialakított 13,5m2-es pince kiváló lehetőséget ad.Készpénzes vevők
jelentkezését várjuk.Amennyiben hirdetésem felkeltette az érdeklődését vagy
egyéb információra van szüksége hívjon bizalommal! ...TOVÁBBI, TÖBBEZRES
INGATLAN KÍNÁLAT: www.gdn-ingatlan.hu - GDN azonosító: 390624
között, két utcafronttal, nettó 168,72m2-es + 34,3m2-es kétautós garázzsal,
13,5m2-es pincével és 70 m2-es fedett terasszal rendelkező családi ház eladó!A
2004-ben épült és folyamatosan modernizált ingatlanban a Hunyadi János utca
felőli utcafronti bejárattal egy 35 m2-es üzlethelyiség található. A homlokzati
falak 30-as és 38-as tégla falazattal épültek, melyeket 10cm-es EPS dryvit
szigeteléssel láttak el. A külső nyílászárók műanyag thermó üvegekkel szereltek.
A tetőt zsindely fedi.A fűtésről kombi gázkazán gondoskodik.A parkosított kertet
öntözőrendszer locsolja helyettünk. A megközelítőleg 70m2-es fedett terasz
kiválló helyszíne a családi összejöveteleknek és a pihenésnek. Az itt található
jacuzzi is a vételár részét képezi. Parkolni a Sziláégyi Erzsébet utcáról
elektromos garázsajtón megközelíthető 2 autó tárolására kialakított garázsban
tudunk.A villamos áram terhelhetőseége 1x32A.Az üzlethelyiség gipszakrtonnal
lett elválasztva, hogy akár 2 üzletet is üzemeltethessünk. A könnyedén
elbontható válaszfallal 35m2-es helyiséget tudunk kialakítani.Tárolásra a
nappali alatt kialakított 13,5m2-es pince kiváló lehetőséget ad.Készpénzes vevők
jelentkezését várjuk.Amennyiben hirdetésem felkeltette az érdeklődését vagy
egyéb információra van szüksége hívjon bizalommal! ...TOVÁBBI, TÖBBEZRES
INGATLAN KÍNÁLAT: www.gdn-ingatlan.hu - GDN azonosító: 390624
Részletek...
Adatlap
| Ár: | 139.900.000 Ft |
| Település: | Gödöllő |
| A hirdető: | Ingatlaniroda ajánlatából |
| Értékesítés típusa: | Eladó |
| Használtság: | Használt |
| Utca: | Szilágyi Erzsébet utca |
| Telek nagysága (m2) : | 548 |
| Épület hasznos területe (m2) : | 203 |
| Szobák száma: | 4 |
| Fűtés: | Cirkó fűtéses |
| Ingatlan állapota: | Felújított |
| Anyaga: | Tégla |
| A hirdető kérése: | Ingatlanközvetítő vagyok - keresse fel Irodánkat! |
| Feladás dátuma: | 2026.03.15 |
| Eddig megtekintették 39 alkalommal | |
A hirdető adatai
Kapcsolat a hirdetővel...
Családi házak rovaton belül a(z) "Eladó családi ház Gödöllő, Szilágyi Erzsébet utca" című hirdetést látja. (fent)




























