
Eladó új építésű ház Siófok-Kilitin
A LIDO HOME ingatlan iroda eladásra kínálja ezt az új építésű családi házat.Az
ingatlan elhelyezkedése kiváló, Siófok-Kiliti kert városias részén
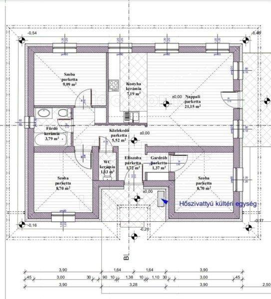
található.Jellemzői:-1 szintes, Nettó 69 m2-es épület 479 m2-es
telekrésszel.-Megtalálható benne egy nappali étkezővel, konyha, 3 hálószoba,
fürdő wc-vel, külön wc, gardrób és előtér. A nappaliból egy nagy teraszra
léphetünk ki.-Hőszivattyú állítja elő a meleget a padlófűtéshez illetve
mennyezeti hűtés lesz beépítve.-Nyílászárók szigetelt műanyagok amik redőnyökkel
vannak ellátva.-Külső 15cm hungarocell szigetelés-Az ingatlan megfelel az új,
szigorú energetikai szabályoknak, BB kategóriás.-H tarifás villanyóra
telepítve.-A feltűntetett ár kulcsrakész állapotban értendő.-Ezen felül napelem
rendszert is van lehetőség kialakítani felár ellenében.-A kivitelezés 2026
februárjában kezdődik.-Az ingatlant előre egyeztetett időpontban
megtekinthető.Amennyiben felkeltette érdeklődését ez a nagyon jó adottságokkal
rendelkező lakóház, keressen a megadott elérhetőségeimen bátran!Vásárolna de
nincs rá keret? Kollégám díjmentes, bank semleges hitel ügyintézéssel áll a
rendelkezésére.LIDO HOME - Ingatlanok egy életen át!
ingatlan elhelyezkedése kiváló, Siófok-Kiliti kert városias részén
található.Jellemzői:-1 szintes, Nettó 69 m2-es épület 479 m2-es
telekrésszel.-Megtalálható benne egy nappali étkezővel, konyha, 3 hálószoba,
fürdő wc-vel, külön wc, gardrób és előtér. A nappaliból egy nagy teraszra
léphetünk ki.-Hőszivattyú állítja elő a meleget a padlófűtéshez illetve
mennyezeti hűtés lesz beépítve.-Nyílászárók szigetelt műanyagok amik redőnyökkel
vannak ellátva.-Külső 15cm hungarocell szigetelés-Az ingatlan megfelel az új,
szigorú energetikai szabályoknak, BB kategóriás.-H tarifás villanyóra
telepítve.-A feltűntetett ár kulcsrakész állapotban értendő.-Ezen felül napelem
rendszert is van lehetőség kialakítani felár ellenében.-A kivitelezés 2026
februárjában kezdődik.-Az ingatlant előre egyeztetett időpontban
megtekinthető.Amennyiben felkeltette érdeklődését ez a nagyon jó adottságokkal
rendelkező lakóház, keressen a megadott elérhetőségeimen bátran!Vásárolna de
nincs rá keret? Kollégám díjmentes, bank semleges hitel ügyintézéssel áll a
rendelkezésére.LIDO HOME - Ingatlanok egy életen át!
Részletek...
Adatlap
| Ár: | 89.000.000 Ft |
| Település: | Siófok |
| A hirdető: | Ingatlaniroda ajánlatából |
| Értékesítés típusa: | Eladó |
| Használtság: | Új építésű |
| Telek nagysága (m2) : | 479 |
| Épület hasznos területe (m2) : | 69.00 |
| Szobák száma: | 4 |
| Feladás dátuma: | 2026.04.21 |
| Eddig megtekintették 44 alkalommal | |
A hirdető adatai
Kapcsolat a hirdetővel...
Családi házak rovaton belül a(z) "Eladó új építésű ház Siófok-Kilitin" című hirdetést látja. (fent)




























