
Eladó családi ház Kisigmánd, Fő út
Kitűnő elhelyezkedés, számtalan lehetőség!Eladásra kínálunk egy közepes állapotú
családi házat Kisigmánd központi részén. Az ingatlan 152 négyzetméter
alapterületű, öt szobával rendelkezik,3 fürdőszobával, külön mellékhelyiséggel,
konyhával, hatalmas terekkel. Ideális választás nagyobb családok számára,
befektetésnek, munkásszállónak, vadászháznak,kultúrális programok helyszínének.A
házat gáz cirkó fűtési rendszer biztosítja kellemes meleggel a hideg hónapokban.
A 673 négyzetméteres kert kiváló lehetőséget nyújt kikapcsolódásra és kerti
összejövetelek szervezésére. Az ingatlanhoz vásárolható további 3500 m2 telek,
amely külön helyrajzi számon szerepel. A házhoz tartozik egy 20 négyzetméteres
terasz is, amely tökéletes helyszín a reggeli kávézásokhoz vagy esti
pihenésekhez. Az M1-es autópályától mindössze pár percnyi távolságra, Komáromot
és Székesfehérvárt összekötő út mellett található ez a település.Az ELADÓ
KISIGMÁNDI CSALÁDI HÁZ főbb jellemzői:- 1960-as építés- vegyes falazat (tégla,
kő, vályog)- tető: cserép- nyílászárók: fa- aljzatburkolat: hajópadló, járólap,
padlószőnyeg- fűtés: cirkó gáz (Vaillant)- összközműves- D-K-i fekvésűBelső
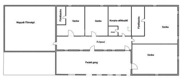
elrendezése jelen kialakításában: három külön bejárattal rendelkező "lakrész"
került kialakításra, melyek külső gang részről közelíthetőek meg.Tágas méretű
szoba a hozzá kapcsolódó fürdőszobával.Közlekedőn keresztül megközelíthető:
konyha-előkészítő, két kényelmes méretű szoba, fürdőszoba.Vendéglátó tér
(fogadó, társalgó) melyhez két mellékhelyiség kapcsolódik.A külső közlekedő
részből közelíthető meg a régmúltat idéző borospince, mely nemcsak
családi-baráti összejövetelek helyszínéül szolgálhat, hanem a gazdálkodásból
származó termény megfelelő tárolására is alkalmas. Ha vállkaozásban gondolkodik,
táboroztatás, szálláshely,étterem, állattartás, gazdálkodás mind müködőképes
lehetőség a területen. Ha felkeltette érdeklődését hívjon időpont miatt,
hétvégén is. ...TOVÁBBI, TÖBBEZRES INGATLAN KÍNÁLAT: www.gdn-ingatlan.hu - GDN
azonosító: 390668
családi házat Kisigmánd központi részén. Az ingatlan 152 négyzetméter
alapterületű, öt szobával rendelkezik,3 fürdőszobával, külön mellékhelyiséggel,
konyhával, hatalmas terekkel. Ideális választás nagyobb családok számára,
befektetésnek, munkásszállónak, vadászháznak,kultúrális programok helyszínének.A
házat gáz cirkó fűtési rendszer biztosítja kellemes meleggel a hideg hónapokban.
A 673 négyzetméteres kert kiváló lehetőséget nyújt kikapcsolódásra és kerti
összejövetelek szervezésére. Az ingatlanhoz vásárolható további 3500 m2 telek,
amely külön helyrajzi számon szerepel. A házhoz tartozik egy 20 négyzetméteres
terasz is, amely tökéletes helyszín a reggeli kávézásokhoz vagy esti
pihenésekhez. Az M1-es autópályától mindössze pár percnyi távolságra, Komáromot
és Székesfehérvárt összekötő út mellett található ez a település.Az ELADÓ
KISIGMÁNDI CSALÁDI HÁZ főbb jellemzői:- 1960-as építés- vegyes falazat (tégla,
kő, vályog)- tető: cserép- nyílászárók: fa- aljzatburkolat: hajópadló, járólap,
padlószőnyeg- fűtés: cirkó gáz (Vaillant)- összközműves- D-K-i fekvésűBelső
elrendezése jelen kialakításában: három külön bejárattal rendelkező "lakrész"
került kialakításra, melyek külső gang részről közelíthetőek meg.Tágas méretű
szoba a hozzá kapcsolódó fürdőszobával.Közlekedőn keresztül megközelíthető:
konyha-előkészítő, két kényelmes méretű szoba, fürdőszoba.Vendéglátó tér
(fogadó, társalgó) melyhez két mellékhelyiség kapcsolódik.A külső közlekedő
részből közelíthető meg a régmúltat idéző borospince, mely nemcsak
családi-baráti összejövetelek helyszínéül szolgálhat, hanem a gazdálkodásból
származó termény megfelelő tárolására is alkalmas. Ha vállkaozásban gondolkodik,
táboroztatás, szálláshely,étterem, állattartás, gazdálkodás mind müködőképes
lehetőség a területen. Ha felkeltette érdeklődését hívjon időpont miatt,
hétvégén is. ...TOVÁBBI, TÖBBEZRES INGATLAN KÍNÁLAT: www.gdn-ingatlan.hu - GDN
azonosító: 390668
Részletek...
Adatlap
| Ár: | 53.900.000 Ft |
| Település: | Kisigmánd |
| A hirdető: | Ingatlaniroda ajánlatából |
| Értékesítés típusa: | Eladó |
| Használtság: | Használt |
| Utca: | Fő út |
| Telek nagysága (m2) : | 673 |
| Épület hasznos területe (m2) : | 167 |
| Szobák száma: | 5 |
| Fűtés: | Cirkó fűtéses |
| Ingatlan állapota: | Normál állapotú |
| Anyaga: | Egyéb anyagból készült épület |
| A hirdető kérése: | Ingatlanközvetítő vagyok - keresse fel Irodánkat! |
| Feladás dátuma: | 2025.12.29 |
| Eddig megtekintették 15 alkalommal | |
A hirdető adatai
Kapcsolat a hirdetővel...
Családi házak rovaton belül a(z) "Eladó családi ház Kisigmánd, Fő út" című hirdetést látja. (fent)




























