
Eladó 180m2-es Ikerház, Nyíregyháza
BEFEKTETÉSI LEHETŐSÉG ÚJ ÉPÍTÉSŰ LAKÓPARKBAN- IKERHÁZ SZERKEZETKÉSZ
ÁLLAPOT! Új építésű nyíregyházi lakóparkban , Borbánya és Kistelekiszőlő
határán kínálunk megvételre egy ikerház projektet szerkezetkész állapotban 2026
év közepi átadással. A konstrukció ideális befektetőknek , valamint barátoknak
vagy családtagoknak, akik egymás közelében szeretnének élni, de nem szeretnének
külön telekvásárlással és közművesítéssel foglalkozni.A két ikerházrész együttes
vételára 60 M Ft, amely kiváló belépési pont az új építésű piacon, hosszú távú
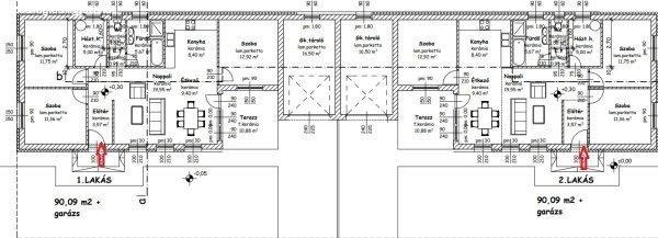
növekedési potenciállal. Főbb jellemzők házrészenként: - 90 m2 nettó
alapterület- 450 m2 telek terület- 3 szoba+ nappalis kialakítás- 30-as porotherm
tégla falazat- Kontyolt nyeregtető, cserepes héjazat A maximális privát szféra
érdekében csak a garázsoknál érintkező közös falazat. Hőszivattyús padlófűtésre
tervezve, ezért villany, víz és csatorna közmű ellátottsággal rendelkezik.
Élhető méretű pihenőkert mindkét lakáshoz. Az ingatlan aszfaltozott utcában
helyezkedik el , az úttól 50 méterre visszahúzva, ezzel is csökkentve a zaj és
porszennyezést. Buszmegálló 400 m-re található.(A látványfotókon még csak az
egyik házhoz tartozik garázs, de az alaprajzon már látható, hogy mindkét házrész
rendelkezik gépkocsi tárolóval.) Bővebb infóért , akár a kivitelező referencia
ingatlanjainak megtekintéséért keressen bizalommal!
ÁLLAPOT! Új építésű nyíregyházi lakóparkban , Borbánya és Kistelekiszőlő
határán kínálunk megvételre egy ikerház projektet szerkezetkész állapotban 2026
év közepi átadással. A konstrukció ideális befektetőknek , valamint barátoknak
vagy családtagoknak, akik egymás közelében szeretnének élni, de nem szeretnének
külön telekvásárlással és közművesítéssel foglalkozni.A két ikerházrész együttes
vételára 60 M Ft, amely kiváló belépési pont az új építésű piacon, hosszú távú
növekedési potenciállal. Főbb jellemzők házrészenként: - 90 m2 nettó
alapterület- 450 m2 telek terület- 3 szoba+ nappalis kialakítás- 30-as porotherm
tégla falazat- Kontyolt nyeregtető, cserepes héjazat A maximális privát szféra
érdekében csak a garázsoknál érintkező közös falazat. Hőszivattyús padlófűtésre
tervezve, ezért villany, víz és csatorna közmű ellátottsággal rendelkezik.
Élhető méretű pihenőkert mindkét lakáshoz. Az ingatlan aszfaltozott utcában
helyezkedik el , az úttól 50 méterre visszahúzva, ezzel is csökkentve a zaj és
porszennyezést. Buszmegálló 400 m-re található.(A látványfotókon még csak az
egyik házhoz tartozik garázs, de az alaprajzon már látható, hogy mindkét házrész
rendelkezik gépkocsi tárolóval.) Bővebb infóért , akár a kivitelező referencia
ingatlanjainak megtekintéséért keressen bizalommal!
Részletek...
Adatlap
| Ár: | 60.000.000 Ft |
| Település: | Nyíregyháza |
| A hirdető: | Ingatlaniroda ajánlatából |
| Értékesítés típusa: | Eladó |
| Telek nagysága (m2) : | 916 |
| Épület hasznos területe (m2) : | 180 |
| Szobák száma: | 4 |
| Ingatlan állapota: | Normál állapotú |
| Anyaga: | Tégla |
| A hirdető kérése: | Ingatlanközvetítő vagyok - keresse fel Irodánkat! |
| Feladás dátuma: | 2026.01.05 |
| Eddig megtekintették 7 alkalommal | |
A hirdető adatai
Kapcsolat a hirdetővel...
Családi házak rovaton belül a(z) "Eladó 180m2-es Ikerház, Nyíregyháza" című hirdetést látja. (fent)




























