
Eladó családi ház Baja, 6500 Baja Kocsis Pál utca
Eladásra kínálunk egy családi házat Baja közkedvelt alvégi városrészen. Az
ingatlan a Baja egyik csendes, nyugodt utcájában található, mégis kiváló
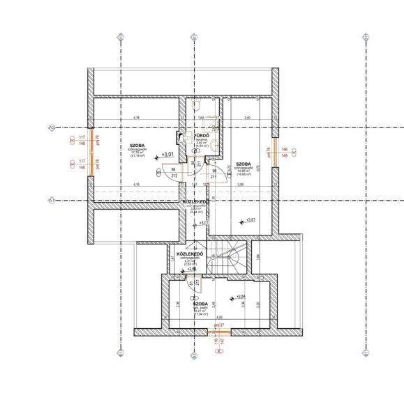
közelségben a város fontosabb pontjaihoz.A 290 m˛-es alapterületű épület
korábban vendéglátó egységként működött, ennek köszönhetően rendkívül sok
lehetőséget rejt magában. Az utcafronti elhelyezkedésű házban 4 tágas, világos
szoba kapott helyet, így ideális választás lehet nagyobb családoknak, több
generáció együttélésére, de akár vállalkozási célra vagy befektetésnek is
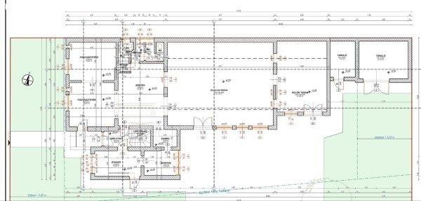
kiváló.Az ingatlanhoz egy 708 m˛-es, gondozható kert tartozik, amely remek teret
biztosít pihenéshez, kikapcsolódáshoz vagy akár további fejlesztésekhez. Az
udvarban található egy tágas garázs, valamint két különálló tároló, amelyek akár
önálló lakrésszé is átalakíthatók, tovább növelve az ingatlan értékét és
funkcionalitását.Az ingatlan részben felújítandó, így új tulajdonosa saját
igényei és elképzelései szerint alakíthatja ki álomotthonát vagy üzleti célú
ingatlanát. ...TOVÁBBI, TÖBBEZRES INGATLAN KÍNÁLAT: www.gdn-ingatlan.hu - GDN
azonosító: 391090
ingatlan a Baja egyik csendes, nyugodt utcájában található, mégis kiváló
közelségben a város fontosabb pontjaihoz.A 290 m˛-es alapterületű épület
korábban vendéglátó egységként működött, ennek köszönhetően rendkívül sok
lehetőséget rejt magában. Az utcafronti elhelyezkedésű házban 4 tágas, világos
szoba kapott helyet, így ideális választás lehet nagyobb családoknak, több
generáció együttélésére, de akár vállalkozási célra vagy befektetésnek is
kiváló.Az ingatlanhoz egy 708 m˛-es, gondozható kert tartozik, amely remek teret
biztosít pihenéshez, kikapcsolódáshoz vagy akár további fejlesztésekhez. Az
udvarban található egy tágas garázs, valamint két különálló tároló, amelyek akár
önálló lakrésszé is átalakíthatók, tovább növelve az ingatlan értékét és
funkcionalitását.Az ingatlan részben felújítandó, így új tulajdonosa saját
igényei és elképzelései szerint alakíthatja ki álomotthonát vagy üzleti célú
ingatlanát. ...TOVÁBBI, TÖBBEZRES INGATLAN KÍNÁLAT: www.gdn-ingatlan.hu - GDN
azonosító: 391090
Részletek...
Adatlap
| Ár: | 84.999.000 Ft |
| Település: | Baja |
| A hirdető: | Ingatlaniroda ajánlatából |
| Értékesítés típusa: | Eladó |
| Használtság: | Használt |
| Utca: | 6500 Baja Kocsis Pál utca |
| Telek nagysága (m2) : | 708 |
| Épület hasznos területe (m2) : | 290 |
| Szobák száma: | 4 |
| Fűtés: | Házközponti fűtéses |
| Ingatlan állapota: | Normál állapotú |
| Anyaga: | Tégla |
| A hirdető kérése: | Ingatlanközvetítő vagyok - keresse fel Irodánkat! |
| Feladás dátuma: | 2026.04.12 |
| Eddig megtekintették 40 alkalommal | |
A hirdető adatai
Kapcsolat a hirdetővel...
Családi házak rovaton belül a(z) "Eladó családi ház Baja, 6500 Baja Kocsis Pál utca" című hirdetést látja. (fent)




























