
Eladó családi ház Mogyoród, Gödöllői út
Eladásra kínálok Mogyoród központi részén, egy önálló csaladi házat.A ház 1940es
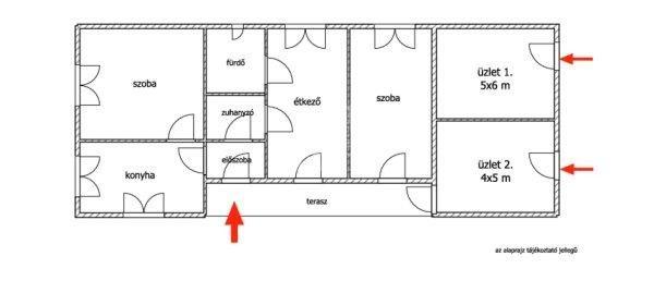
években mogyoródi kőből épült, így rendkívül stabil szerkezettel rendelkezik,
majd téglából 1960-ban hozzá építettek. Tető cseréppel borított.Az utcafronti
részen jelenleg 2 külön bejaratú üzlethelyiség található, melyeknek közös
mosdójuk van.A ház udvar felöli bejarattal rendelkező, hátsó része gyakorlatilag
2 szoba, konyha, előszoba, fürdőszoba, plusz külön zuhanyzó, kamra es egy fedett
terasz.A lakóház utan az udvarban tároló es garazs is van.Rendezett, 510 nm
nagyságú telek!Átalakítási tippek:- ház alkalmas 5 szoba kialakítására is,
avagy az étkezőt egybevonva az egyik szobával, és az üzleteket szobává alakítva,
egy modern 3 hálószoba, plusz nappalis elosztast is ki lehet alakítani!- Ezen
túl még 2 kényelmes lakás is kialakitható, 2 külön bejárattal.Egyszóval rengeteg
lehetőséget, és elérhető aron nyujt ez a nagyszerű ház!Hivjon bizalommal,
tekintsük meg együtt! ...TOVÁBBI, TÖBBEZRES INGATLAN KÍNÁLAT:
www.gdn-ingatlan.hu - GDN azonosító: 391468
években mogyoródi kőből épült, így rendkívül stabil szerkezettel rendelkezik,
majd téglából 1960-ban hozzá építettek. Tető cseréppel borított.Az utcafronti
részen jelenleg 2 külön bejaratú üzlethelyiség található, melyeknek közös
mosdójuk van.A ház udvar felöli bejarattal rendelkező, hátsó része gyakorlatilag
2 szoba, konyha, előszoba, fürdőszoba, plusz külön zuhanyzó, kamra es egy fedett
terasz.A lakóház utan az udvarban tároló es garazs is van.Rendezett, 510 nm
nagyságú telek!Átalakítási tippek:- ház alkalmas 5 szoba kialakítására is,
avagy az étkezőt egybevonva az egyik szobával, és az üzleteket szobává alakítva,
egy modern 3 hálószoba, plusz nappalis elosztast is ki lehet alakítani!- Ezen
túl még 2 kényelmes lakás is kialakitható, 2 külön bejárattal.Egyszóval rengeteg
lehetőséget, és elérhető aron nyujt ez a nagyszerű ház!Hivjon bizalommal,
tekintsük meg együtt! ...TOVÁBBI, TÖBBEZRES INGATLAN KÍNÁLAT:
www.gdn-ingatlan.hu - GDN azonosító: 391468
Részletek...
Adatlap
| Ár: | 63.250.000 Ft |
| Település: | Mogyoród |
| A hirdető: | Ingatlaniroda ajánlatából |
| Értékesítés típusa: | Eladó |
| Használtság: | Használt |
| Utca: | Gödöllői út |
| Telek nagysága (m2) : | 509 |
| Épület hasznos területe (m2) : | 110 |
| Szobák száma: | 4 |
| Fűtés: | Cirkó fűtéses |
| Ingatlan állapota: | Normál állapotú |
| Anyaga: | Tégla |
| A hirdető kérése: | Ingatlanközvetítő vagyok - keresse fel Irodánkat! |
| Feladás dátuma: | 2026.03.13 |
| Eddig megtekintették 25 alkalommal | |
A hirdető adatai
Kapcsolat a hirdetővel...
Családi házak rovaton belül a(z) "Eladó családi ház Mogyoród, Gödöllői út" című hirdetést látja. (fent)




























