
Kulcsrakész új ház Kecskemét-Kadafalván!
Kizárólag a FOCUS INGATLAN kínálatában! Eladásra kínálunk egy prémium
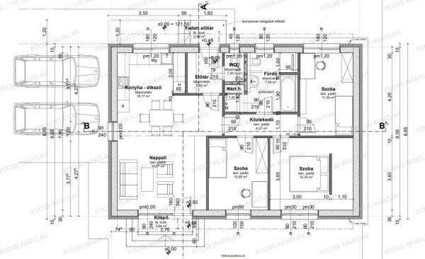
műszaki tartalommal megépített, 91 nm lakóterű, új építésű családi házat
Kecskemét legkedveltebb kertvárosi részén, Kadafalván. Az ingatlan egy nagy 1437
nm-es telken fekszik, közvetlenül egy hangulatos kis akácerdő szomszédságában,
így a reggeli kávéját madárcsicsergés mellett, teljes privát szférában
fogyaszthatja el. Műszaki paraméterek (Ami a biztonságot és az alacsony rezsit
garantálja): - Falazat: Porotherm 30 X-therm tégla + 15 cm külső szigetelés.-
Tető: Elegáns Terrán Zenit cserépfedés.- Szigetelés: 30 cm-es befújt
födémszigetelés a maximális hőmegtartásért.- Nyílászárók: Veka 3 rétegű,
kívül-belül antracit nyílászárók meleg peremmel, szúnyoghálóval és alumínium
motoros redőnyökkel felszerelve.- Gépészet: Immergas gáz-cirkó kazán minden
helyiségben padlófűtéssel, kiegészítve törölközőszárítós radiátorokkal.-
Hűtés-fűtés: 4 db Gree Comfort Pro inverteres hűtő-fűtő klíma gondoskodik a
tökéletes hőmérsékletről minden szobában. Belső kialakítás és kényelem A ház
elosztása ideális családok számára:Világos, nagy szobák, melyek tágas életteret
biztosítanak.Szülői háló saját gardróbbal, hogy minden ruhának meglegyen a
helye.Prémium minőségű Grohe csaptelepek a vizesblokkokban.Kulcsrakész állapot:
ide már csak a bútorait kell hoznia! Kert és parkolás A 1437 nm-es telek
rengeteg lehetőséget rejt (medence, játszótér, konyhakert). A gépkocsik számára
betonozott parkoló készült, amely igény szerint könnyedén lefedhető vagy akár
zárt garázzsá is alakítható. Az ingatlan tehermentes és azonnal birtokba
vehető! Ne maradjon le erről a kivételes lehetőségről, hiszen az ilyen kaliberű
házak ritkán maradnak sokáig a piacon!Szeretné megtekinteni az ingatlant? Várom
hívását időpontfoglaláshoz! Figyelem! A bútorozott képek a jobb szemléltetés
érdekében mesterséges intelligenciával készültek. Az ingatlan teljesen új, még
soha nem lakták, jelenleg üres állapotban várja első tulajdonosát.
műszaki tartalommal megépített, 91 nm lakóterű, új építésű családi házat
Kecskemét legkedveltebb kertvárosi részén, Kadafalván. Az ingatlan egy nagy 1437
nm-es telken fekszik, közvetlenül egy hangulatos kis akácerdő szomszédságában,
így a reggeli kávéját madárcsicsergés mellett, teljes privát szférában
fogyaszthatja el. Műszaki paraméterek (Ami a biztonságot és az alacsony rezsit
garantálja): - Falazat: Porotherm 30 X-therm tégla + 15 cm külső szigetelés.-
Tető: Elegáns Terrán Zenit cserépfedés.- Szigetelés: 30 cm-es befújt
födémszigetelés a maximális hőmegtartásért.- Nyílászárók: Veka 3 rétegű,
kívül-belül antracit nyílászárók meleg peremmel, szúnyoghálóval és alumínium
motoros redőnyökkel felszerelve.- Gépészet: Immergas gáz-cirkó kazán minden
helyiségben padlófűtéssel, kiegészítve törölközőszárítós radiátorokkal.-
Hűtés-fűtés: 4 db Gree Comfort Pro inverteres hűtő-fűtő klíma gondoskodik a
tökéletes hőmérsékletről minden szobában. Belső kialakítás és kényelem A ház
elosztása ideális családok számára:Világos, nagy szobák, melyek tágas életteret
biztosítanak.Szülői háló saját gardróbbal, hogy minden ruhának meglegyen a
helye.Prémium minőségű Grohe csaptelepek a vizesblokkokban.Kulcsrakész állapot:
ide már csak a bútorait kell hoznia! Kert és parkolás A 1437 nm-es telek
rengeteg lehetőséget rejt (medence, játszótér, konyhakert). A gépkocsik számára
betonozott parkoló készült, amely igény szerint könnyedén lefedhető vagy akár
zárt garázzsá is alakítható. Az ingatlan tehermentes és azonnal birtokba
vehető! Ne maradjon le erről a kivételes lehetőségről, hiszen az ilyen kaliberű
házak ritkán maradnak sokáig a piacon!Szeretné megtekinteni az ingatlant? Várom
hívását időpontfoglaláshoz! Figyelem! A bútorozott képek a jobb szemléltetés
érdekében mesterséges intelligenciával készültek. Az ingatlan teljesen új, még
soha nem lakták, jelenleg üres állapotban várja első tulajdonosát.
Részletek...
Adatlap
| Ár: | 94.990.000 Ft |
| Település: | Kecskemét |
| A hirdető: | Ingatlaniroda ajánlatából |
| Értékesítés típusa: | Eladó |
| Telek nagysága (m2) : | 1 437 |
| Épület hasznos területe (m2) : | 91 |
| Szobák száma: | 4 |
| Komfort: | Összkomfortos |
| Fűtés: | Egyéb fűtéses |
| Ingatlan állapota: | Normál állapotú |
| Anyaga: | Tégla |
| A hirdető kérése: | Ingatlanközvetítő vagyok - keresse fel Irodánkat! |
| Feladás dátuma: | 2026.01.12 |
| Eddig megtekintették 3 alkalommal | |
A hirdető adatai
Kapcsolat a hirdetővel...
Családi házak rovaton belül a(z) "Kulcsrakész új ház Kecskemét-Kadafalván!" című hirdetést látja. (fent)




























