
Egy telek - két ÖNÁLLÓ családi ház - használati megosztással
Koroncón lehet az új otthonotok, egy 1060 nm-es telken, nappali +3 szobás
családi házat építünk számotokra.Fűtéskész átadás a szerződés aláírásától
számítva 9 hónap múlva.Ne késlekedjetek, hívjatok, foglaljátok le ezt a remek
ajánlatot!3% os hitel az egész ingatlan értékre igénybe vehető! L2 (hátsó
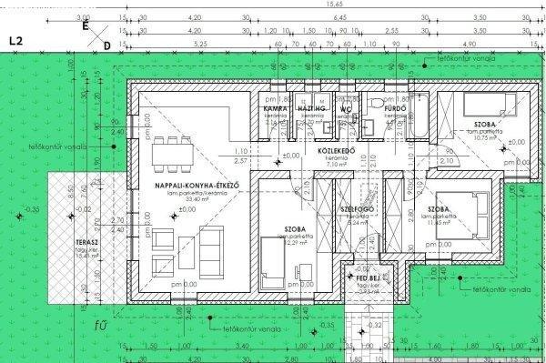
ház) 91,29 m2 lakótér + 15,42 terasz, bruttó 106,752 nm, lásd a képek
között.JANUÁRI kedvezményes ár: 2026.01.31-ig 3.000.000 Ft kedvezménnyel +
ajándék 2 db murvázott beállóval: bruttó 67.999.000 Ft helyett bruttó 64.999.000
Ft + TELEK 13 M Ft.Egy 1805 nm-es telken 2 db ÖNÁLLÓ ház épül fel, használati
megosztással.A bejáró mindössze a közös rész, ami 125 nm. lásd a képek
között! Műszaki szemmel, fontos infók, a fűtéskész állapot műszaki
leírása: Épületgépészet:A fűtés rendszer padló fűtési rendszerrel kerül
kiépítésreKlíma előkészítésFöldmunka:Tereprendezés(szemét elszállítása az
építkezés után), humusz réteg letolása, kitűzés, gépi alapárok kiemelés 45 cm-es
szélességben 90 cm mélységben, kézi után igazítással.Alapozás:Teherhordó falak
alatt 85 cm mély 45 cm széles beton sávalap C12-32kk mixerbetonból.Lábazati
fal:Két sor LEIER zsalukő.Feltöltés:10cm Kavicsfeltöltés döngölőgéppel
tömörítve.Gépészeti alapszerelés:Csatorna alapszerelés 110 és 50 mm-es PVC
csövekkel, felállásokkal.Vízbevezetés KPE csővel szerelve, a kazán alatt leendő
vízosztóhoz felállva.Szerelőbeton:12 cm vastag 15*15*5.2 hálóval vasalt
szerelőbeton C12-32kk mixerbetonból a statikai tervek szerint.Falazatok:A fő és
válaszfalak alatt bitumenes vastaglemez szigetelés.Külső falak: 30 N+F téglábólA
belső válaszfalak 10 N+F téglából.Födém teherhordó szerk.:Térelhatároló
szerkezet( felső burkolás nélkül), alulról favázon 1rtg RB gipszkartonnal
burkolva, párazáró fóliával. Padlásfeljáró helyének kialakítása létra
nélkül.Koszorú:Zsaluzva hőszigeteléssel. Beton, C16-16kk mixerbeton vibrátorral
tömörítve. Vasalás, 10-es fővasalással, 40 cm-enként, 6-os kengyelekkel.
Talpszelemencsavarok elhelyezve.Födém hőszigetelés:30 cm vastag szálas
hőszigetelés.Kémény, Szellőzés:Saunier Duval Semiatek Condens kazánhoz, gyári
szerelt dupla falú kémény.Tetőszerkezet:Fa födémHagyományos tetőszerkezet 15*15
-ös talpszelemennel, 10*15 -ös szarufákkal, szükség szerint 5*15-ös fogópárral
és 7,5*15-ös székszelemennel, 3*5 -ös Bramac ellenléc és tetőléccel,
tetőfóliával.Bádogozás:Félkör keresztmetszetű színezett ereszcsatorna. Vápa
horganyzott lemez.Tetőfedés:Bramac Natura, Mediterrán standard barna vagy
szürke cserép.Belső vakolás:Gépi alap- és simítóvakolattal, pozitív sarkokon
élvédő elhelyezéssel. Különböző anyagok találkozásánál rabic háló
bedolgozással.Külső homlokzat képzés:Oldalfal:15 cm-es dryvit rendszer hálózva
színvakolattal(1-es színkategória)Lábazat: 7 cm-es expert hőszigetelés színes
lábazati vakolattal .Párkány:Dobozolt kialakítás.Aljzat:1 réteg bitumenes
vastaglemez talajnedvesség elleni szigetelés, 10 cm Austrotherm AT-N100
lépésálló hőszigetelés, 1 réteg technológiai szigetelés, 6 cm aljzatbeton.Külső
nyílászárók:Fehér, műanyag rendszerű hőszigetelt üvegezésű ablakok (k=0,6 az
üvegre), a téglafalba építve purhabbal, biztonsági bejárati
ajtóval.Villanyszerelés:Szobák, nappali-konyha-étkező: 1db világítótest, 5db
tetszőlegesen választható kapcsoló vagy dugalj. Közlekedő, WC, fürdő, kamra,
háztartási helyiség 1db világítótest 3 db dugalj vagy kapcsoló. Kültéren:1db
világítótest, és 2db kapcsoló vagy dugalj kialakítása. A darabszám
helyiségenként értendő.Terasz / közlekedők / gépkocsibeállóMurvázott terasz a
rajzott jelzett 15 m2-en.Gépkocsibeálló + hozzá vezető közös út és behajtó
murvázvaTérköves beálló és terasz felár ellenében kérhetőMegjegyzés: Ezen
műszaki tartalom szerves részét képezi az árajánlatnak. Ettől való bármilyen
eltérés lehetséges, de árváltozást eredményezhet. Változtatási szándékát kérjük,
szerződéskötés előtt feltétlenül jelezze! Fontos: A külső közművek (víz,
villany, szennyvíz, csapadékvíz elvezetés) biztosítása az épületen kívül, az
épületen belüli csatlakozási pontig a megrendelő feladata!Ennek költsége kb.
bruttó 2.500.000 Ft, ami külön fizetendő!Várom hívásod!
családi házat építünk számotokra.Fűtéskész átadás a szerződés aláírásától
számítva 9 hónap múlva.Ne késlekedjetek, hívjatok, foglaljátok le ezt a remek
ajánlatot!3% os hitel az egész ingatlan értékre igénybe vehető! L2 (hátsó
ház) 91,29 m2 lakótér + 15,42 terasz, bruttó 106,752 nm, lásd a képek
között.JANUÁRI kedvezményes ár: 2026.01.31-ig 3.000.000 Ft kedvezménnyel +
ajándék 2 db murvázott beállóval: bruttó 67.999.000 Ft helyett bruttó 64.999.000
Ft + TELEK 13 M Ft.Egy 1805 nm-es telken 2 db ÖNÁLLÓ ház épül fel, használati
megosztással.A bejáró mindössze a közös rész, ami 125 nm. lásd a képek
között! Műszaki szemmel, fontos infók, a fűtéskész állapot műszaki
leírása: Épületgépészet:A fűtés rendszer padló fűtési rendszerrel kerül
kiépítésreKlíma előkészítésFöldmunka:Tereprendezés(szemét elszállítása az
építkezés után), humusz réteg letolása, kitűzés, gépi alapárok kiemelés 45 cm-es
szélességben 90 cm mélységben, kézi után igazítással.Alapozás:Teherhordó falak
alatt 85 cm mély 45 cm széles beton sávalap C12-32kk mixerbetonból.Lábazati
fal:Két sor LEIER zsalukő.Feltöltés:10cm Kavicsfeltöltés döngölőgéppel
tömörítve.Gépészeti alapszerelés:Csatorna alapszerelés 110 és 50 mm-es PVC
csövekkel, felállásokkal.Vízbevezetés KPE csővel szerelve, a kazán alatt leendő
vízosztóhoz felállva.Szerelőbeton:12 cm vastag 15*15*5.2 hálóval vasalt
szerelőbeton C12-32kk mixerbetonból a statikai tervek szerint.Falazatok:A fő és
válaszfalak alatt bitumenes vastaglemez szigetelés.Külső falak: 30 N+F téglábólA
belső válaszfalak 10 N+F téglából.Födém teherhordó szerk.:Térelhatároló
szerkezet( felső burkolás nélkül), alulról favázon 1rtg RB gipszkartonnal
burkolva, párazáró fóliával. Padlásfeljáró helyének kialakítása létra
nélkül.Koszorú:Zsaluzva hőszigeteléssel. Beton, C16-16kk mixerbeton vibrátorral
tömörítve. Vasalás, 10-es fővasalással, 40 cm-enként, 6-os kengyelekkel.
Talpszelemencsavarok elhelyezve.Födém hőszigetelés:30 cm vastag szálas
hőszigetelés.Kémény, Szellőzés:Saunier Duval Semiatek Condens kazánhoz, gyári
szerelt dupla falú kémény.Tetőszerkezet:Fa födémHagyományos tetőszerkezet 15*15
-ös talpszelemennel, 10*15 -ös szarufákkal, szükség szerint 5*15-ös fogópárral
és 7,5*15-ös székszelemennel, 3*5 -ös Bramac ellenléc és tetőléccel,
tetőfóliával.Bádogozás:Félkör keresztmetszetű színezett ereszcsatorna. Vápa
horganyzott lemez.Tetőfedés:Bramac Natura, Mediterrán standard barna vagy
szürke cserép.Belső vakolás:Gépi alap- és simítóvakolattal, pozitív sarkokon
élvédő elhelyezéssel. Különböző anyagok találkozásánál rabic háló
bedolgozással.Külső homlokzat képzés:Oldalfal:15 cm-es dryvit rendszer hálózva
színvakolattal(1-es színkategória)Lábazat: 7 cm-es expert hőszigetelés színes
lábazati vakolattal .Párkány:Dobozolt kialakítás.Aljzat:1 réteg bitumenes
vastaglemez talajnedvesség elleni szigetelés, 10 cm Austrotherm AT-N100
lépésálló hőszigetelés, 1 réteg technológiai szigetelés, 6 cm aljzatbeton.Külső
nyílászárók:Fehér, műanyag rendszerű hőszigetelt üvegezésű ablakok (k=0,6 az
üvegre), a téglafalba építve purhabbal, biztonsági bejárati
ajtóval.Villanyszerelés:Szobák, nappali-konyha-étkező: 1db világítótest, 5db
tetszőlegesen választható kapcsoló vagy dugalj. Közlekedő, WC, fürdő, kamra,
háztartási helyiség 1db világítótest 3 db dugalj vagy kapcsoló. Kültéren:1db
világítótest, és 2db kapcsoló vagy dugalj kialakítása. A darabszám
helyiségenként értendő.Terasz / közlekedők / gépkocsibeállóMurvázott terasz a
rajzott jelzett 15 m2-en.Gépkocsibeálló + hozzá vezető közös út és behajtó
murvázvaTérköves beálló és terasz felár ellenében kérhetőMegjegyzés: Ezen
műszaki tartalom szerves részét képezi az árajánlatnak. Ettől való bármilyen
eltérés lehetséges, de árváltozást eredményezhet. Változtatási szándékát kérjük,
szerződéskötés előtt feltétlenül jelezze! Fontos: A külső közművek (víz,
villany, szennyvíz, csapadékvíz elvezetés) biztosítása az épületen kívül, az
épületen belüli csatlakozási pontig a megrendelő feladata!Ennek költsége kb.
bruttó 2.500.000 Ft, ami külön fizetendő!Várom hívásod!
Részletek...
Adatlap
| Ár: | 78.000.000 Ft |
| Település: | Koroncó |
| A hirdető: | Ingatlaniroda ajánlatából |
| Értékesítés típusa: | Eladó |
| Telek nagysága (m2) : | 1 060 |
| Épület hasznos területe (m2) : | 99 |
| Szobák száma: | 4 |
| Komfort: | Összkomfortos |
| Fűtés: | Egyéb fűtéses |
| Ingatlan állapota: | Normál állapotú |
| Anyaga: | Tégla |
| A hirdető kérése: | Ingatlanközvetítő vagyok - keresse fel Irodánkat! |
| Feladás dátuma: | 2026.03.13 |
| Eddig megtekintették 63 alkalommal | |
A hirdető adatai
Kapcsolat a hirdetővel...
Családi házak rovaton belül a(z) "Egy telek - két ÖNÁLLÓ családi ház - használati megosztással" című hirdetést látja. (fent)



























