
Eladó 111m2-es Családi ház, Sződ
Sződ frenkventált részén, csendes, családi házas övezetben egy új
építésű, szabadon álló, dupla komfortos, kétszintes, különálló ikerház eladó. Az
ingatlan főbb jellemzői:Az ingatlan délnyugati tájolású, sík telken helyezkedik
el, mely önállóan áll, egyik fala sem kapcsolódik az ikerház másik feléhez.Az
ingatlan 830 m2 telken helyezkedik el, amelyhez udvaron belüli, viacolorral
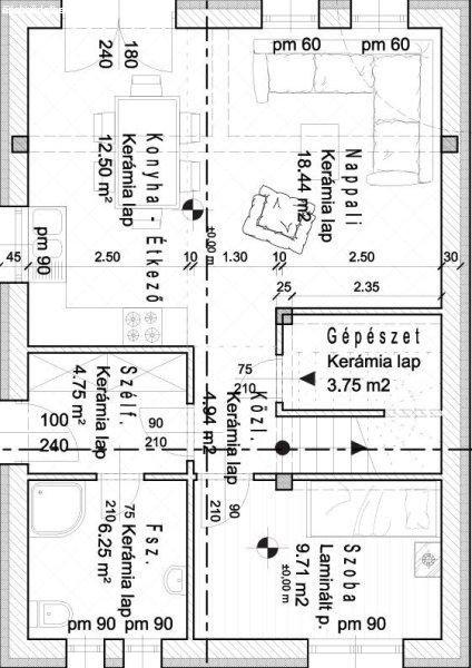
lerakott autóbeálló tartozik.A lakás hasznos alapterülete 111,50 m2, amelybe
beletartozik egy amerikai konyhás nappali, 4 szoba, 2 fürdőszoba és egy tároló
helyiség. Ezenkívül egy gépészeti helyiség, egy emeleti közlekedő, egy erkély és
egy fedetlen terasz is a ház részét képezik.Az emeleti szobák teljes szintűek. A
földszinti fürdőben zuhanyzó, az emeleti fürdőszobában kád került kialakításra.
A teraszra az étkezőből nyílik az ajtó. Műszaki leírás:Az ingatlan függőleges
teherhordó szerkezetei 30 cm vastagságú, síkra csiszolt Porotherm téglából
készültek, homlokzati szigeteléssel.A tetőt antracitszürke színű Bramac
betoncserép fedi.A fűtési rendszer hőszivattyúval van kialakítva, az összes
helyiség padlófűtéssel ellátott. Elhelyezkedés, közlekedés:A település 15 percre
fekszik a fővárostól, 12 percre fekszik Vác barokk belvárosától és az M2-es
autópályáról 5 perc alatt könnyen megközelíthető.A közelben található
buszmegálló, vasútállomás, élelmiszerüzlet, általános iskola, óvoda, bölcsőde,
posta, gyógyszertár, orvosi rendelő, fogászat, bank, pékség, játszótér. Az
ingatlan jelenleg épül, átadása 2026. harmadik negyedévére várható, ezért a
belső burkolatok és a belső nyílászárók még szabadon választhatóak a jövendőbeli
tulajdonos elképzeléséhez igazodva. A belső műszaki tartalom alapján
választhatóak a hideg- és meleg burkolatok. A képeken korábban épült, más
helyszínen található, a leírásban megfelelő ingatlan látható. A kivitelező
megbízható, sok referenciával rendelkezik. Az ingatlan kulcsrakész ára
126.000.000 Forint.Kérem forduljon hozzám bizalommal, és egyeztessünk
megtekintési időpontot!TEKINTSE MEG IRODÁNK TOVÁBBI KÍNÁLATÁT LOGÓNKRA
KATTINTVA.
építésű, szabadon álló, dupla komfortos, kétszintes, különálló ikerház eladó. Az
ingatlan főbb jellemzői:Az ingatlan délnyugati tájolású, sík telken helyezkedik
el, mely önállóan áll, egyik fala sem kapcsolódik az ikerház másik feléhez.Az
ingatlan 830 m2 telken helyezkedik el, amelyhez udvaron belüli, viacolorral
lerakott autóbeálló tartozik.A lakás hasznos alapterülete 111,50 m2, amelybe
beletartozik egy amerikai konyhás nappali, 4 szoba, 2 fürdőszoba és egy tároló
helyiség. Ezenkívül egy gépészeti helyiség, egy emeleti közlekedő, egy erkély és
egy fedetlen terasz is a ház részét képezik.Az emeleti szobák teljes szintűek. A
földszinti fürdőben zuhanyzó, az emeleti fürdőszobában kád került kialakításra.
A teraszra az étkezőből nyílik az ajtó. Műszaki leírás:Az ingatlan függőleges
teherhordó szerkezetei 30 cm vastagságú, síkra csiszolt Porotherm téglából
készültek, homlokzati szigeteléssel.A tetőt antracitszürke színű Bramac
betoncserép fedi.A fűtési rendszer hőszivattyúval van kialakítva, az összes
helyiség padlófűtéssel ellátott. Elhelyezkedés, közlekedés:A település 15 percre
fekszik a fővárostól, 12 percre fekszik Vác barokk belvárosától és az M2-es
autópályáról 5 perc alatt könnyen megközelíthető.A közelben található
buszmegálló, vasútállomás, élelmiszerüzlet, általános iskola, óvoda, bölcsőde,
posta, gyógyszertár, orvosi rendelő, fogászat, bank, pékség, játszótér. Az
ingatlan jelenleg épül, átadása 2026. harmadik negyedévére várható, ezért a
belső burkolatok és a belső nyílászárók még szabadon választhatóak a jövendőbeli
tulajdonos elképzeléséhez igazodva. A belső műszaki tartalom alapján
választhatóak a hideg- és meleg burkolatok. A képeken korábban épült, más
helyszínen található, a leírásban megfelelő ingatlan látható. A kivitelező
megbízható, sok referenciával rendelkezik. Az ingatlan kulcsrakész ára
126.000.000 Forint.Kérem forduljon hozzám bizalommal, és egyeztessünk
megtekintési időpontot!TEKINTSE MEG IRODÁNK TOVÁBBI KÍNÁLATÁT LOGÓNKRA
KATTINTVA.
Részletek...
Adatlap
| Ár: | 126.000.000 Ft |
| Település: | Sződ |
| A hirdető: | Ingatlaniroda ajánlatából |
| Értékesítés típusa: | Eladó |
| Telek nagysága (m2) : | 415 |
| Épület hasznos területe (m2) : | 111 |
| Szobák száma: | 4 |
| A hirdető kérése: | Ingatlanközvetítő vagyok - keresse fel Irodánkat! |
| Feladás dátuma: | 2026.01.12 |
| Eddig megtekintették 7 alkalommal | |
A hirdető adatai
Kapcsolat a hirdetővel...
Családi házak rovaton belül a(z) "Eladó 111m2-es Családi ház, Sződ" című hirdetést látja. (fent)




























