
Eladó családi ház Százhalombatta, Kétgenerációs ház, panzió
Százhalombatta Dunafüred részén kínálunk megvételre egy tégla építésű, jelenleg
munkásszállóként használt, három szintes, kétgenerációs házat.Tökéletes
befektetési lehetőség munkásszállónak vagy több lakás kialakítására.1/1
tulajdon, tehermentes, azonnal birtokba vehető.Az épületen belül két szint
található, két külön lakrésszel. A felső szinthez belső zárt lépcsőn tudunk
feljutni, csak lépcsőház a közös használatú rész.Telek:642 m2Garázs: 130 m2
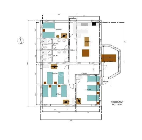
nagyságúKét állásos garázs, két külön műhely/raktár helyiséggel.Földszint: 130
m2 nagyságú- felszerelt konyha- két fürdőszoba- négy hálószoba, összesen 10
ággyalEmelet: 130 m2 nagyságú- felszerelt konyha- két fürdőszoba- öt hálószoba,
összesen 9 ággyal.Emeletenként független fűtés és melegvíz, 2 db kondenzációs
gázkazán és tároló tartály.A vételár teljes berendezéssel értendő.NE MARADJON LE
RÓLA!BEFEKTETÉSNEK IS KIVÁLÓ LEHETŐSÉG!Lokáció:Az ingatlan Dunafüreden található
csendes, családias környezetben, pár perc sétára a Duna-parttól.A város
központját autóval 5 perc alatt meg lehet elérni.A százhalombattai Duna Finomító
és a Mol számos területen kínálnak munkalehetőségeket, mely által a nagyobb
létszámú brigádok rendszeresen keresnek munkásszállásra alkalmas
ingatlanokat.Amennyiben további tájékoztatásra van szüksége, vagy szeretné
megtekinteni az ingatlant kérem, hívjon a hét bármely napján.A hirdetésben
szereplő adatok tájékoztató jellegűek, nem minősülnek ajánlattételnek.
...TOVÁBBI, TÖBBEZRES INGATLAN KÍNÁLAT: www.gdn-ingatlan.hu - GDN azonosító:
391626
munkásszállóként használt, három szintes, kétgenerációs házat.Tökéletes
befektetési lehetőség munkásszállónak vagy több lakás kialakítására.1/1
tulajdon, tehermentes, azonnal birtokba vehető.Az épületen belül két szint
található, két külön lakrésszel. A felső szinthez belső zárt lépcsőn tudunk
feljutni, csak lépcsőház a közös használatú rész.Telek:642 m2Garázs: 130 m2
nagyságúKét állásos garázs, két külön műhely/raktár helyiséggel.Földszint: 130
m2 nagyságú- felszerelt konyha- két fürdőszoba- négy hálószoba, összesen 10
ággyalEmelet: 130 m2 nagyságú- felszerelt konyha- két fürdőszoba- öt hálószoba,
összesen 9 ággyal.Emeletenként független fűtés és melegvíz, 2 db kondenzációs
gázkazán és tároló tartály.A vételár teljes berendezéssel értendő.NE MARADJON LE
RÓLA!BEFEKTETÉSNEK IS KIVÁLÓ LEHETŐSÉG!Lokáció:Az ingatlan Dunafüreden található
csendes, családias környezetben, pár perc sétára a Duna-parttól.A város
központját autóval 5 perc alatt meg lehet elérni.A százhalombattai Duna Finomító
és a Mol számos területen kínálnak munkalehetőségeket, mely által a nagyobb
létszámú brigádok rendszeresen keresnek munkásszállásra alkalmas
ingatlanokat.Amennyiben további tájékoztatásra van szüksége, vagy szeretné
megtekinteni az ingatlant kérem, hívjon a hét bármely napján.A hirdetésben
szereplő adatok tájékoztató jellegűek, nem minősülnek ajánlattételnek.
...TOVÁBBI, TÖBBEZRES INGATLAN KÍNÁLAT: www.gdn-ingatlan.hu - GDN azonosító:
391626
Részletek...
Adatlap
| Ár: | 90.000.000 Ft |
| Település: | Százhalombatta |
| A hirdető: | Ingatlaniroda ajánlatából |
| Értékesítés típusa: | Eladó |
| Használtság: | Használt |
| Utca: | Kétgenerációs ház, panzió |
| Telek nagysága (m2) : | 642 |
| Épület hasznos területe (m2) : | 260 |
| Szobák száma: | 9 |
| Fűtés: | Cirkó fűtéses |
| Ingatlan állapota: | Normál állapotú |
| Anyaga: | Tégla |
| A hirdető kérése: | Ingatlanközvetítő vagyok - keresse fel Irodánkat! |
| Feladás dátuma: | 2026.01.19 |
| Eddig megtekintették 7 alkalommal | |
A hirdető adatai
Kapcsolat a hirdetővel...
Családi házak rovaton belül a(z) "Eladó családi ház Százhalombatta, Kétgenerációs ház, panzió" című hirdetést látja. (fent)




























