
Eladó családi ház Őrbottyán, Bajcsy Zsilinszky utca
Eladásra kínálok Őrbottyán kiváló kertvárosias részén egy önálló családiházat,
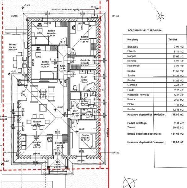
amely építése most kezdődik el.Az amerikai konyhás nappalit 3 hálószoba egészíti
ki.Felosztása:Előszoba 3,91 m2Étkező 8,14 m2Nappali 25,66 m2Konyha 8,28
m2Közlekedő 4,23 m2Szoba 11,55 m2Szoba 11,34 m2Szoba 11,85 m2Gardrób 4,49
m2Fürdő 7,20 m2Háztartási helyiség 5,66 m2Kamra 2,07 m2Előtér 1,47 m2Szoba 12,15
m2Összesen: 118,00 m2Fedett szélfogó 2,57 m2Nyitott terasz 20,65 m2Hasznos
alapterület összesen: 118,00 m2BRUTTÓ BEÉPÍTETT ALAPTERÜLET: 151,65 m2Gázcirkós
fűtés, padlófűtéses hőleadókkal.Műanyag három rétegű nyílászárók.Saját
autóbealló, nagy méretű telek!Hívjon bizalommal! ...TOVÁBBI, TÖBBEZRES INGATLAN
KÍNÁLAT: www.gdn-ingatlan.hu - GDN azonosító: 391699
amely építése most kezdődik el.Az amerikai konyhás nappalit 3 hálószoba egészíti
ki.Felosztása:Előszoba 3,91 m2Étkező 8,14 m2Nappali 25,66 m2Konyha 8,28
m2Közlekedő 4,23 m2Szoba 11,55 m2Szoba 11,34 m2Szoba 11,85 m2Gardrób 4,49
m2Fürdő 7,20 m2Háztartási helyiség 5,66 m2Kamra 2,07 m2Előtér 1,47 m2Szoba 12,15
m2Összesen: 118,00 m2Fedett szélfogó 2,57 m2Nyitott terasz 20,65 m2Hasznos
alapterület összesen: 118,00 m2BRUTTÓ BEÉPÍTETT ALAPTERÜLET: 151,65 m2Gázcirkós
fűtés, padlófűtéses hőleadókkal.Műanyag három rétegű nyílászárók.Saját
autóbealló, nagy méretű telek!Hívjon bizalommal! ...TOVÁBBI, TÖBBEZRES INGATLAN
KÍNÁLAT: www.gdn-ingatlan.hu - GDN azonosító: 391699
Részletek...
Adatlap
| Ár: | 124.900.000 Ft |
| Település: | Őrbottyán |
| A hirdető: | Ingatlaniroda ajánlatából |
| Értékesítés típusa: | Eladó |
| Használtság: | Új építésű |
| Utca: | Bajcsy Zsilinszky utca |
| Telek nagysága (m2) : | 820 |
| Épület hasznos területe (m2) : | 152 |
| Szobák száma: | 4 |
| Fűtés: | Cirkó fűtéses |
| Anyaga: | Tégla |
| A hirdető kérése: | Ingatlanközvetítő vagyok - keresse fel Irodánkat! |
| Feladás dátuma: | 2026.04.19 |
| Eddig megtekintették 37 alkalommal | |
A hirdető adatai
Kapcsolat a hirdetővel...
Családi házak rovaton belül a(z) "Eladó családi ház Őrbottyán, Bajcsy Zsilinszky utca" című hirdetést látja. (fent)




























