
4655: Csörögön ÚJ ÉPÍTÉSŰ, FÖLDSZINTES, CSALÁDI HÁZ eladó!
Kedves Otthonkereső!Csörögön ÚJ ÉPÍTÉSŰ, FÖLDSZINTES, CSALÁDI HÁZ
eladó! CÉGES ÉPÍTKEZÉS, az aktuális állami támogatások valamint kedvezményes,
kamattámogatott hitelek felvehetőek ? akár a 3%-os OTTHON START hitel, CSOK
PLUS, babaváró is igényelhető, az ügyintézésben díjmentesen segítünk! Az építő
munkájára jellemző a megbízhatóság és igényesség, leinformálható, referencia
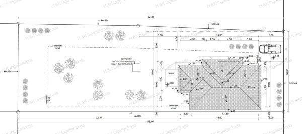
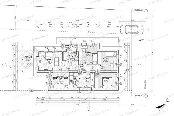
házai megtekinthetők. A korszerű, energiatakarékos családi ház 895 nm-es telekre
épül, nettó lakóterülete 91,65 nm + terasz, amerikai-konyhás nappali + 3 szobás
elosztással, zárt udvari gépkocsi beállóval. (Lehetőség van dupla-komfortos
kivitelezésre is.) Rövid műszaki tartalom:A ház külső falai 30 cm-as POROTHERM
téglából épülnek, 12 cm-es külső dryvit szigeteléssel. A födémszerkezet E
gerendás betonfödémmel készül.A tető beton cserépfedést kap.Külső nyílászárók:
műanyag szerkezetű, 3 rétegű, 5 légkamrás üvegezéssel (igény esetén,
értékegyeztetéssel, redőnnyel, szúnyoghálóval felszerelve) A fűtést és a meleg
vízellátást, hőszivattyú biztosítja, a hő leadás padlófűtéssel történik + a
fürdőszobába patronos törülközőszárító is kerül. Burkolatok választhatók -
szobákban laminált parketta, a vizes helyiségekbe kerámia lapok kerülnek - a
belső műszaki tartalomban vállalt árig a vételár részét képezve. A látványterv a
lehetséges kialakítást és hangulatot szemlélteti. A tényleges megvalósítás az
alaprajz és műszaki tartalom szerint történik. Ára: 95.000.000.- FtAzonosító:
4655
eladó! CÉGES ÉPÍTKEZÉS, az aktuális állami támogatások valamint kedvezményes,
kamattámogatott hitelek felvehetőek ? akár a 3%-os OTTHON START hitel, CSOK
PLUS, babaváró is igényelhető, az ügyintézésben díjmentesen segítünk! Az építő
munkájára jellemző a megbízhatóság és igényesség, leinformálható, referencia
házai megtekinthetők. A korszerű, energiatakarékos családi ház 895 nm-es telekre
épül, nettó lakóterülete 91,65 nm + terasz, amerikai-konyhás nappali + 3 szobás
elosztással, zárt udvari gépkocsi beállóval. (Lehetőség van dupla-komfortos
kivitelezésre is.) Rövid műszaki tartalom:A ház külső falai 30 cm-as POROTHERM
téglából épülnek, 12 cm-es külső dryvit szigeteléssel. A födémszerkezet E
gerendás betonfödémmel készül.A tető beton cserépfedést kap.Külső nyílászárók:
műanyag szerkezetű, 3 rétegű, 5 légkamrás üvegezéssel (igény esetén,
értékegyeztetéssel, redőnnyel, szúnyoghálóval felszerelve) A fűtést és a meleg
vízellátást, hőszivattyú biztosítja, a hő leadás padlófűtéssel történik + a
fürdőszobába patronos törülközőszárító is kerül. Burkolatok választhatók -
szobákban laminált parketta, a vizes helyiségekbe kerámia lapok kerülnek - a
belső műszaki tartalomban vállalt árig a vételár részét képezve. A látványterv a
lehetséges kialakítást és hangulatot szemlélteti. A tényleges megvalósítás az
alaprajz és műszaki tartalom szerint történik. Ára: 95.000.000.- FtAzonosító:
4655
Részletek...
Adatlap
| Ár: | 95.000.000 Ft |
| A hirdető: | Ingatlaniroda ajánlatából |
| Értékesítés típusa: | Eladó |
| Telek nagysága (m2) : | 895 |
| Épület hasznos területe (m2) : | 100 |
| Szobák száma: | 4 |
| Komfort: | Összkomfortos |
| Ingatlan állapota: | Normál állapotú |
| Anyaga: | Tégla |
| A hirdető kérése: | Ingatlanközvetítő vagyok - keresse fel Irodánkat! |
| Feladás dátuma: | 2026.04.19 |
| Eddig megtekintették 51 alkalommal | |
A hirdető adatai
Kapcsolat a hirdetővel...
Családi házak rovaton belül a(z) "4655: Csörögön ÚJ ÉPÍTÉSŰ, FÖLDSZINTES, CSALÁDI HÁZ eladó!" című hirdetést látja. (fent)




























