
4641: ÚJ ÉPÍTÉSŰ, ENERGIATAKARÉKOS, csak a tárolókkal érintk
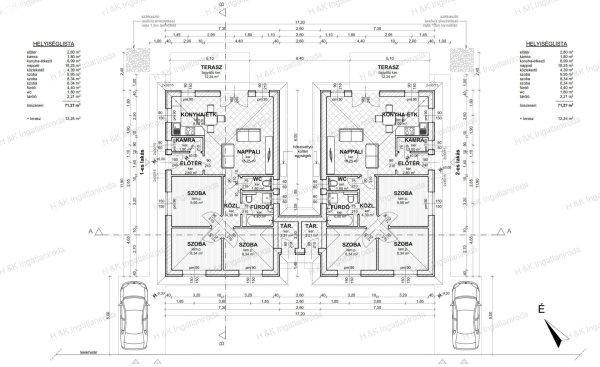
ÚJ ÉPÍTÉSŰ, ENERGIATAKARÉKOS, csak a tárolókkal érintkező ikerház mindkét
fele eladó Vácrátóton!CÉGES ÉPÍTKEZÉS, a 2024-től aktuális állami támogatások
valamint kedvezményes, kamattámogatott hitelek felvehetőek ? akár a 3%-os OTTHON
START hitel, CSOK PLUS, babaváró is igényelhető, az ügyintézésben díjmentesen
segítünk!Az építő munkájára jellemző a megbízhatóság és igényesség,
leinformálható, referencia házai megtekinthetők.A belső kialakítás jelenleg még
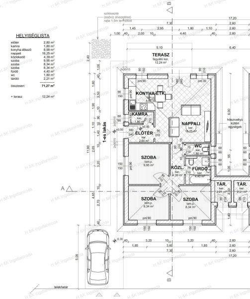
a vevő igényei szerint módosítható!A lakások nettó területe 71,27 nm + terasz,
amerikai konyhás nappali + 3 szobás, zárt gépkocsi beállóval, 413 nm-es
telekrészekkel.A ház a mai kor igényeinek megfelelően, minőségi anyagokból
energiatakarékos technológiával készül.Rövid műszaki tartalom: a főfalak 30-as
Porotherm téglából, 12 cm-es hőszigeteléssel épülnek, beton födémmel. A tető
antracit színű beton cserépfedést kap.3 rétegű, hőszigetelt üvegezésű, fehér
színű nyílászárók, melyek igény esetén ? értékegyeztetéssel ? redőnnyel,
szúnyoghálóval felszerelhetők.A lakások fűtése és meleg víz ellátása
hőszivattyúval történik, padlófűtéses hő leadással.A nappaliban klíma is
elhelyezésre kerül.Az ingatlan kulcsrakész állapotban kerül átadásra,
konyhabútor nélkül.Belső nyílászárók és a burkolatok választhatók, a belső
műszaki tartalomban megjelölt összegig a vételár részét képezik. A képek
látványtervek, melyek a lehetséges kialakítást és hangulatot szemléltetik. A
tényleges megvalósítás az alaprajz és műszaki tartalom szerint történik, az
ingatlan a valóságban bútorozatlan.Ára: 82.500.000.- Ft/lakásAzonosító: 4641
fele eladó Vácrátóton!CÉGES ÉPÍTKEZÉS, a 2024-től aktuális állami támogatások
valamint kedvezményes, kamattámogatott hitelek felvehetőek ? akár a 3%-os OTTHON
START hitel, CSOK PLUS, babaváró is igényelhető, az ügyintézésben díjmentesen
segítünk!Az építő munkájára jellemző a megbízhatóság és igényesség,
leinformálható, referencia házai megtekinthetők.A belső kialakítás jelenleg még
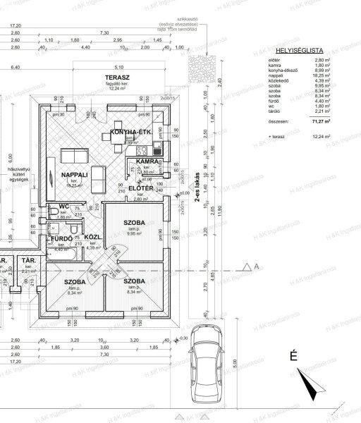
a vevő igényei szerint módosítható!A lakások nettó területe 71,27 nm + terasz,
amerikai konyhás nappali + 3 szobás, zárt gépkocsi beállóval, 413 nm-es
telekrészekkel.A ház a mai kor igényeinek megfelelően, minőségi anyagokból
energiatakarékos technológiával készül.Rövid műszaki tartalom: a főfalak 30-as
Porotherm téglából, 12 cm-es hőszigeteléssel épülnek, beton födémmel. A tető
antracit színű beton cserépfedést kap.3 rétegű, hőszigetelt üvegezésű, fehér
színű nyílászárók, melyek igény esetén ? értékegyeztetéssel ? redőnnyel,
szúnyoghálóval felszerelhetők.A lakások fűtése és meleg víz ellátása
hőszivattyúval történik, padlófűtéses hő leadással.A nappaliban klíma is
elhelyezésre kerül.Az ingatlan kulcsrakész állapotban kerül átadásra,
konyhabútor nélkül.Belső nyílászárók és a burkolatok választhatók, a belső
műszaki tartalomban megjelölt összegig a vételár részét képezik. A képek
látványtervek, melyek a lehetséges kialakítást és hangulatot szemléltetik. A
tényleges megvalósítás az alaprajz és műszaki tartalom szerint történik, az
ingatlan a valóságban bútorozatlan.Ára: 82.500.000.- Ft/lakásAzonosító: 4641
Részletek...
Adatlap
| Ár: | 82.500.000 Ft |
| Település: | Vácrátót |
| A hirdető: | Ingatlaniroda ajánlatából |
| Értékesítés típusa: | Eladó |
| Telek nagysága (m2) : | 413 |
| Épület hasznos területe (m2) : | 78 |
| Szobák száma: | 4 |
| Komfort: | Összkomfortos |
| Ingatlan állapota: | Normál állapotú |
| Anyaga: | Tégla |
| A hirdető kérése: | Ingatlanközvetítő vagyok - keresse fel Irodánkat! |
| Feladás dátuma: | 2026.04.19 |
| Eddig megtekintették 35 alkalommal | |
A hirdető adatai
Kapcsolat a hirdetővel...
Családi házak rovaton belül a(z) "4641: ÚJ ÉPÍTÉSŰ, ENERGIATAKARÉKOS, csak a tárolókkal érintk" című hirdetést látja. (fent)




























