
4642: Új építésű, családi ház!
Őrbottyán, Vácbottyáni részén magas műszaki tartalommal épülő, nappali +
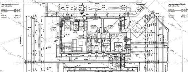
3 szobás elrendezésű, nettó 81,79 nm lakóterületű + 17,1 nm-es terasszal + 2,68
nm-es külső tárolóval rendelkező, dupla-komfortos családi házak eladók, 400
nm-es saját telekrészekkel.Portfóliónkban számos, különböző paraméterekkel
rendelkező új építésű ingatlan megtalálható Őrbottyán területén és környékén, az
azonnal beköltözhető ingatlanoktól kezdve, a még szabadon alakítható, saját
igényre tervezhető lakásokig. Keressen bizalommal és segítünk megtalálni az
elképzeléseinek megfelelő otthonát!CÉGES ÉPÍTKEZÉS, a 2024-től aktuális állami
támogatások valamint kedvezményes, kamattámogatott hitelek felvehetőek ? akár a
3%-os OTTHON START hitel, CSOK PLUS, babaváró is igényelhető, az ügyintézésben
díjmentesen segítünk!Az építő munkájára jellemző a megbízhatóság és igényesség,
leinformálható, referencia házai megtekinthetők.Az ingatlan homlokzati falai
30-as PTH téglából épülnek, 12 cm grafitos hőszigeteléssel.Műanyag szerkezetű,
hőszigetelő üvegezéssel ellátott nyílászárók kerülnek beépítésre, fehér
színben.A tető beton cseréppel lesz fedett.A ház fűtése modern, hőszivattyús
fűtésrendszerrel történik, a hő leadás padlófűtéssel történik, + fan-coil
rendszer is kiépítésre kerül.Az ingatlanok H-tarifás órával és napelem
kiállással kerülnek átadásra.EÜ Gerendás födém - tehát pakolható
padlástér.Helyiséglista:amerikai konyhás nappali (29 nm), 3 szoba (11,36 nm,
9,29 nm és 9,59 nm), fürdőszoba (4.77 nm), háztartási helyiség (5,03 nm), külön
WC (2.38 nm), előtér (3.35 nm), kamra (1.85 nm), közlekedő (5,17 nm), terasz
(17,1 nm), külső tároló (2,68 nm)Parkolás: burkolt, udvari beállón kerül
kialakításra.A ház kulcsrakész állapotban kerül átadásra.Akár 10 %-os foglalózás
is lehetséges, a fennmaradó 90 % átadást megelőzően!Lehetőség van egyedi
elképzelések megvalósításra a ház belső elrendezésének tekintetében.Köszönjük,
hogy megtisztel bizalmával, és irodánkat választja új otthona kiválasztására.
Tapasztalt és felkészült kollégáink segítenek Önnek akár a hétvégén is.Ha
esetleg még nem sikerült eladni ingatlanát, kedvezményes feltételekkel vállaljuk
annak értékesítését!A fotókon az építő már elkészült, azonos paraméterekkel
rendelkező háza látható referenciaként.Kulcsrakész ár: 92.850.000.- FtAzonosító:
4642
3 szobás elrendezésű, nettó 81,79 nm lakóterületű + 17,1 nm-es terasszal + 2,68
nm-es külső tárolóval rendelkező, dupla-komfortos családi házak eladók, 400
nm-es saját telekrészekkel.Portfóliónkban számos, különböző paraméterekkel
rendelkező új építésű ingatlan megtalálható Őrbottyán területén és környékén, az
azonnal beköltözhető ingatlanoktól kezdve, a még szabadon alakítható, saját
igényre tervezhető lakásokig. Keressen bizalommal és segítünk megtalálni az
elképzeléseinek megfelelő otthonát!CÉGES ÉPÍTKEZÉS, a 2024-től aktuális állami
támogatások valamint kedvezményes, kamattámogatott hitelek felvehetőek ? akár a
3%-os OTTHON START hitel, CSOK PLUS, babaváró is igényelhető, az ügyintézésben
díjmentesen segítünk!Az építő munkájára jellemző a megbízhatóság és igényesség,
leinformálható, referencia házai megtekinthetők.Az ingatlan homlokzati falai
30-as PTH téglából épülnek, 12 cm grafitos hőszigeteléssel.Műanyag szerkezetű,
hőszigetelő üvegezéssel ellátott nyílászárók kerülnek beépítésre, fehér
színben.A tető beton cseréppel lesz fedett.A ház fűtése modern, hőszivattyús
fűtésrendszerrel történik, a hő leadás padlófűtéssel történik, + fan-coil
rendszer is kiépítésre kerül.Az ingatlanok H-tarifás órával és napelem
kiállással kerülnek átadásra.EÜ Gerendás födém - tehát pakolható
padlástér.Helyiséglista:amerikai konyhás nappali (29 nm), 3 szoba (11,36 nm,
9,29 nm és 9,59 nm), fürdőszoba (4.77 nm), háztartási helyiség (5,03 nm), külön
WC (2.38 nm), előtér (3.35 nm), kamra (1.85 nm), közlekedő (5,17 nm), terasz
(17,1 nm), külső tároló (2,68 nm)Parkolás: burkolt, udvari beállón kerül
kialakításra.A ház kulcsrakész állapotban kerül átadásra.Akár 10 %-os foglalózás
is lehetséges, a fennmaradó 90 % átadást megelőzően!Lehetőség van egyedi
elképzelések megvalósításra a ház belső elrendezésének tekintetében.Köszönjük,
hogy megtisztel bizalmával, és irodánkat választja új otthona kiválasztására.
Tapasztalt és felkészült kollégáink segítenek Önnek akár a hétvégén is.Ha
esetleg még nem sikerült eladni ingatlanát, kedvezményes feltételekkel vállaljuk
annak értékesítését!A fotókon az építő már elkészült, azonos paraméterekkel
rendelkező háza látható referenciaként.Kulcsrakész ár: 92.850.000.- FtAzonosító:
4642
Részletek...
Adatlap
| Ár: | 92.850.000 Ft |
| Település: | Őrbottyán |
| A hirdető: | Ingatlaniroda ajánlatából |
| Értékesítés típusa: | Eladó |
| Telek nagysága (m2) : | 400 |
| Épület hasznos területe (m2) : | 91 |
| Szobák száma: | 4 |
| Komfort: | Duplakomfortos |
| Ingatlan állapota: | Normál állapotú |
| Anyaga: | Tégla |
| A hirdető kérése: | Ingatlanközvetítő vagyok - keresse fel Irodánkat! |
| Feladás dátuma: | 2026.01.19 |
| Eddig megtekintették 2 alkalommal | |
A hirdető adatai
Kapcsolat a hirdetővel...
Családi házak rovaton belül a(z) "4642: Új építésű, családi ház!" című hirdetést látja. (fent)




























