
4643: Új építésű családi ház Őrbottyánban!
Őrbottyán, Vácbottyáni részén magas műszaki tartalommal épülő, nappali +
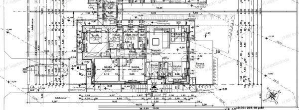
3 szobás elrendezésű, nettó 81,79 nm lakóterületű + 17,1 nm-es terasszal + 2,68
nm-es külső tárolóval rendelkező, dupla-komfortos családi házak eladók, 430
nm-es saját telekrészekkel.Portfóliónkban számos, különböző paraméterekkel
rendelkező új építésű ingatlan megtalálható Őrbottyán területén és környékén, az
azonnal beköltözhető ingatlanoktól kezdve, a még szabadon alakítható, saját
igényre tervezhető lakásokig. Keressen bizalommal és segítünk megtalálni az
elképzeléseinek megfelelő otthonát!CÉGES ÉPÍTKEZÉS, a 2024-től aktuális állami
támogatások valamint kedvezményes, kamattámogatott hitelek felvehetőek ? akár a
3%-os OTTHON START hitel, CSOK PLUS, babaváró is igényelhető, az ügyintézésben
díjmentesen segítünk!Az építő munkájára jellemző a megbízhatóság és igényesség,
leinformálható, referencia házai megtekinthetők.Az ingatlan homlokzati falai
30-as PTH téglából épülnek, 12 cm grafitos hőszigeteléssel.Műanyag szerkezetű,
hőszigetelő üvegezéssel ellátott nyílászárók kerülnek beépítésre, fehér
színben.A tető beton cseréppel lesz fedett.A ház fűtése modern, hőszivattyús
fűtésrendszerrel történik, a hő leadás padlófűtéssel, + fan-coil rendszeri is
kiépítésre kerül.Az ingatlanok H-tarifás órával és napelem kiállással kerülnek
átadásra.EÜ Gerendás födém - tehát pakolható padlástér.Helyiséglista:amerikai
konyhás nappali (29 nm), 3 szoba (11,36 nm, 9,29 nm és 9,59 nm), fürdőszoba
(4.77 nm), háztartási helyiség (5,03 nm), külön WC (2.38 nm), előtér (3.35 nm),
kamra (1.85 nm), közlekedő (5,17 nm), terasz (17,1 nm), külső tároló (2,68
nm)Parkolás: burkolt, udvari beállón kerül kialakításra.A ház kulcsrakész
állapotban kerül átadásra.Akár 10 %-os foglalózás is lehetséges, a fennmaradó 90
% átadást megelőzően!Lehetőség van egyedi elképzelések megvalósításra a ház
belső elrendezésének tekintetében.Köszönjük, hogy megtisztel bizalmával, és
irodánkat választja új otthona kiválasztására. Tapasztalt és felkészült
kollégáink segítenek Önnek akár a hétvégén is.Ha esetleg még nem sikerült eladni
ingatlanát, kedvezményes feltételekkel vállaljuk annak értékesítését!A fotókon
az építő már elkészült, azonos paraméterekkel rendelkező háza látható
referenciaként.Kulcsrakész ár: 98.500.000.- FtAzonosító: 4643
3 szobás elrendezésű, nettó 81,79 nm lakóterületű + 17,1 nm-es terasszal + 2,68
nm-es külső tárolóval rendelkező, dupla-komfortos családi házak eladók, 430
nm-es saját telekrészekkel.Portfóliónkban számos, különböző paraméterekkel
rendelkező új építésű ingatlan megtalálható Őrbottyán területén és környékén, az
azonnal beköltözhető ingatlanoktól kezdve, a még szabadon alakítható, saját
igényre tervezhető lakásokig. Keressen bizalommal és segítünk megtalálni az
elképzeléseinek megfelelő otthonát!CÉGES ÉPÍTKEZÉS, a 2024-től aktuális állami
támogatások valamint kedvezményes, kamattámogatott hitelek felvehetőek ? akár a
3%-os OTTHON START hitel, CSOK PLUS, babaváró is igényelhető, az ügyintézésben
díjmentesen segítünk!Az építő munkájára jellemző a megbízhatóság és igényesség,
leinformálható, referencia házai megtekinthetők.Az ingatlan homlokzati falai
30-as PTH téglából épülnek, 12 cm grafitos hőszigeteléssel.Műanyag szerkezetű,
hőszigetelő üvegezéssel ellátott nyílászárók kerülnek beépítésre, fehér
színben.A tető beton cseréppel lesz fedett.A ház fűtése modern, hőszivattyús
fűtésrendszerrel történik, a hő leadás padlófűtéssel, + fan-coil rendszeri is
kiépítésre kerül.Az ingatlanok H-tarifás órával és napelem kiállással kerülnek
átadásra.EÜ Gerendás födém - tehát pakolható padlástér.Helyiséglista:amerikai
konyhás nappali (29 nm), 3 szoba (11,36 nm, 9,29 nm és 9,59 nm), fürdőszoba
(4.77 nm), háztartási helyiség (5,03 nm), külön WC (2.38 nm), előtér (3.35 nm),
kamra (1.85 nm), közlekedő (5,17 nm), terasz (17,1 nm), külső tároló (2,68
nm)Parkolás: burkolt, udvari beállón kerül kialakításra.A ház kulcsrakész
állapotban kerül átadásra.Akár 10 %-os foglalózás is lehetséges, a fennmaradó 90
% átadást megelőzően!Lehetőség van egyedi elképzelések megvalósításra a ház
belső elrendezésének tekintetében.Köszönjük, hogy megtisztel bizalmával, és
irodánkat választja új otthona kiválasztására. Tapasztalt és felkészült
kollégáink segítenek Önnek akár a hétvégén is.Ha esetleg még nem sikerült eladni
ingatlanát, kedvezményes feltételekkel vállaljuk annak értékesítését!A fotókon
az építő már elkészült, azonos paraméterekkel rendelkező háza látható
referenciaként.Kulcsrakész ár: 98.500.000.- FtAzonosító: 4643
Részletek...
Adatlap
| Ár: | 98.500.000 Ft |
| Település: | Őrbottyán |
| A hirdető: | Ingatlaniroda ajánlatából |
| Értékesítés típusa: | Eladó |
| Telek nagysága (m2) : | 430 |
| Épület hasznos területe (m2) : | 94 |
| Szobák száma: | 4 |
| Komfort: | Duplakomfortos |
| Ingatlan állapota: | Normál állapotú |
| Anyaga: | Tégla |
| A hirdető kérése: | Ingatlanközvetítő vagyok - keresse fel Irodánkat! |
| Feladás dátuma: | 2026.03.20 |
| Eddig megtekintették 24 alkalommal | |
A hirdető adatai
Kapcsolat a hirdetővel...
Családi házak rovaton belül a(z) "4643: Új építésű családi ház Őrbottyánban!" című hirdetést látja. (fent)




























