
4601: Nappali + 3 szobás, új építésű, családi ház Őrbottyánb
Őrbottyán, Vácbottyáni részén magas műszaki tartalommal épülő, nappali +
3 szobás elrendezésű, nettó 90.99 nm lakóterületű + 16.09 nm-es terasszal
rendelkező családi házak eladók, kb. 480 nm-es saját
telekrészekkel.Portfóliónkban számos, különböző paraméterekkel rendelkező új
építésű ingatlan megtalálható Őrbottyán területén és környékén, az azonnal
beköltözhető ingatlanoktól kezdve, a még szabadon alakítható, saját igényre
tervezhető lakásokig. Keressen bizalommal és segítünk megtalálni az
elképzeléseinek megfelelő otthonát!CÉGES ÉPÍTKEZÉS, a 2024-től aktuális állami
támogatások valamint kedvezményes, kamattámogatott hitelek felvehetőek.Az építő
munkájára jellemző a megbízhatóság és igényesség, leinformálható, referencia
házai megtekinthetők.Az ingatlan homlokzati falai 30-as PTH téglából épülnek, 12
cm grafitos hőszigeteléssel.Műanyag szerkezetű, hőszigetelő üvegezéssel ellátott
nyílászárók kerülnek beépítésre, fehér színben.A tető beton cseréppel lesz
fedett.A ház fűtése modern, hőszivattyús fűtésrendszerrel kerül kialakításra, a
hő leadás padlófűtéssel fog történni.Az ingatlanok H-tarifás órával és napelem
kiállással kerülnek átadásra.EÜ Gerendás födém - tehát pakolható
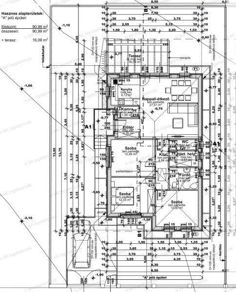
padlástér.Helyiséglista:amerikai konyhás nappali (33.63 nm), 3 szoba (12.49 nm,
12.13 nm és 12 nm), fürdőszoba (4.84 nm), háztartási helyiség, zuhanyzóval (3.57
nm), külön WC (2.29 nm), előtér (3.35 nm), kamra (1.85 nm), közlekedő (4.84 nm),
terasz (16.09 nm)Parkolás: burkolt, udvari beállón kerül kialakításra.A ház
kulcsrakész állapotban kerül átadásra.Akár 10 %-os foglalózás is lehetséges, a
fennmaradó 90 % átadást megelőzően!Lehetőség van egyedi elképzelések
megvalósításra a ház belső elrendezésének tekintetében.Köszönjük, hogy
megtisztel bizalmával, és irodánkat választja új otthona kiválasztására.
Tapasztalt és felkészült kollégáink segítenek Önnek akár a hétvégén is.Ha
esetleg még nem sikerült eladni ingatlanát, kedvezményes feltételekkel vállaljuk
annak értékesítését!Kulcsrakész ár: 97.500.000.- FtAzonosító: 4601
3 szobás elrendezésű, nettó 90.99 nm lakóterületű + 16.09 nm-es terasszal
rendelkező családi házak eladók, kb. 480 nm-es saját
telekrészekkel.Portfóliónkban számos, különböző paraméterekkel rendelkező új
építésű ingatlan megtalálható Őrbottyán területén és környékén, az azonnal
beköltözhető ingatlanoktól kezdve, a még szabadon alakítható, saját igényre
tervezhető lakásokig. Keressen bizalommal és segítünk megtalálni az
elképzeléseinek megfelelő otthonát!CÉGES ÉPÍTKEZÉS, a 2024-től aktuális állami
támogatások valamint kedvezményes, kamattámogatott hitelek felvehetőek.Az építő
munkájára jellemző a megbízhatóság és igényesség, leinformálható, referencia
házai megtekinthetők.Az ingatlan homlokzati falai 30-as PTH téglából épülnek, 12
cm grafitos hőszigeteléssel.Műanyag szerkezetű, hőszigetelő üvegezéssel ellátott
nyílászárók kerülnek beépítésre, fehér színben.A tető beton cseréppel lesz
fedett.A ház fűtése modern, hőszivattyús fűtésrendszerrel kerül kialakításra, a
hő leadás padlófűtéssel fog történni.Az ingatlanok H-tarifás órával és napelem
kiállással kerülnek átadásra.EÜ Gerendás födém - tehát pakolható
padlástér.Helyiséglista:amerikai konyhás nappali (33.63 nm), 3 szoba (12.49 nm,
12.13 nm és 12 nm), fürdőszoba (4.84 nm), háztartási helyiség, zuhanyzóval (3.57
nm), külön WC (2.29 nm), előtér (3.35 nm), kamra (1.85 nm), közlekedő (4.84 nm),
terasz (16.09 nm)Parkolás: burkolt, udvari beállón kerül kialakításra.A ház
kulcsrakész állapotban kerül átadásra.Akár 10 %-os foglalózás is lehetséges, a
fennmaradó 90 % átadást megelőzően!Lehetőség van egyedi elképzelések
megvalósításra a ház belső elrendezésének tekintetében.Köszönjük, hogy
megtisztel bizalmával, és irodánkat választja új otthona kiválasztására.
Tapasztalt és felkészült kollégáink segítenek Önnek akár a hétvégén is.Ha
esetleg még nem sikerült eladni ingatlanát, kedvezményes feltételekkel vállaljuk
annak értékesítését!Kulcsrakész ár: 97.500.000.- FtAzonosító: 4601
Részletek...
Adatlap
| Ár: | 97.500.000 Ft |
| Település: | Őrbottyán |
| A hirdető: | Ingatlaniroda ajánlatából |
| Értékesítés típusa: | Eladó |
| Telek nagysága (m2) : | 480 |
| Épület hasznos területe (m2) : | 100 |
| Szobák száma: | 4 |
| Komfort: | Duplakomfortos |
| Ingatlan állapota: | Normál állapotú |
| Anyaga: | Tégla |
| A hirdető kérése: | Ingatlanközvetítő vagyok - keresse fel Irodánkat! |
| Feladás dátuma: | 2026.03.20 |
| Eddig megtekintették 23 alkalommal | |
A hirdető adatai
Kapcsolat a hirdetővel...
Családi házak rovaton belül a(z) "4601: Nappali + 3 szobás, új építésű, családi ház Őrbottyánb" című hirdetést látja. (fent)




























