
4667: Panorámás családi ház!!
Kedves Otthonkereső! Panorámás családi ház!! Szíves figyelmébe ajánlom
ezt a gondosan megtervezett, panorámás családi házat, amely Őrbottyán,
Kálváriadomb városrészében, nyugodt, zöld környezetben helyezkedik el. Az
ingatlan 360 m˛-es telekrészen épül, kellemes arányú kerttel és terasszal, ahol
a mindennapok csendje és a kilátás egyaránt élvezhető. CÉGES ÉPÍTKEZÉS, az
aktuális állami támogatások valamint kedvezményes, kamattámogatott hitelek
felvehetőek ? akár a 3%-os OTTHON START hitel, CSOK PLUS, babaváró is
igényelhető, az ügyintézésben díjmentesen segítünk! Az építő munkájára jellemző
a megbízhatóság és igényesség, leinformálható, referencia házai
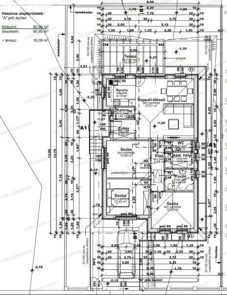
megtekinthetők. A ház 91 m˛ lakóterű, nappali + 3 szobás elrendezésű, amelyet
egy 16 m˛-es terasz egészít ki. A belső terek világosak, jól tagoltak, a
nappali?étkező?konyha egysége természetes központja az otthonnak, míg a külön
nyíló szobák kényelmes visszavonulást biztosítanak a család minden tagjának. A
műszaki tartalom korszerű és átgondolt: az ingatlan hőszivattyús fűtési
rendszerrel készül, H tarifás villanyórával, így a fenntartási költségek hosszú
távon is kedvezően alakulnak.A hő leadás minden helyiségben padlófűtéssel
történik.A beton gerendás födém teljes mértékben pakolható és terhelhető, a 10
cm vastag grafitos Dryvit hőszigetelés pedig hozzájárul az energia hatékony
működéshez.A ház napelem előkészítéssel készül, így a későbbi bővítés is
adott. A parkolás burkolt autóbeállón megoldott, az ingatlan környezete
rendezett, családbarát. Az ingatlan kulcsrakész állapotban kerül átadásra,
konyhabútor nélkül. Burkolatok, szaniterek választhatók, a belső műszaki
tartalomban feltüntetett árakig a vételár részét képezve. Ez az otthon ideális
választás lehet azok számára, akik panorámás környezetben, mégis jól élhető,
modern műszaki tartalommal rendelkező házat keresnek, nyugodt tempójú
mindennapokhoz. Köszönöm, hogy megtisztel bizalmával, és irodánkat választja új
otthona kiválasztásához.Készséggel állunk rendelkezésére további információval,
egyeztetéssel. Ára: 105.500.000.- FtAzonosító: 4667
ezt a gondosan megtervezett, panorámás családi házat, amely Őrbottyán,
Kálváriadomb városrészében, nyugodt, zöld környezetben helyezkedik el. Az
ingatlan 360 m˛-es telekrészen épül, kellemes arányú kerttel és terasszal, ahol
a mindennapok csendje és a kilátás egyaránt élvezhető. CÉGES ÉPÍTKEZÉS, az
aktuális állami támogatások valamint kedvezményes, kamattámogatott hitelek
felvehetőek ? akár a 3%-os OTTHON START hitel, CSOK PLUS, babaváró is
igényelhető, az ügyintézésben díjmentesen segítünk! Az építő munkájára jellemző
a megbízhatóság és igényesség, leinformálható, referencia házai
megtekinthetők. A ház 91 m˛ lakóterű, nappali + 3 szobás elrendezésű, amelyet
egy 16 m˛-es terasz egészít ki. A belső terek világosak, jól tagoltak, a
nappali?étkező?konyha egysége természetes központja az otthonnak, míg a külön
nyíló szobák kényelmes visszavonulást biztosítanak a család minden tagjának. A
műszaki tartalom korszerű és átgondolt: az ingatlan hőszivattyús fűtési
rendszerrel készül, H tarifás villanyórával, így a fenntartási költségek hosszú
távon is kedvezően alakulnak.A hő leadás minden helyiségben padlófűtéssel
történik.A beton gerendás födém teljes mértékben pakolható és terhelhető, a 10
cm vastag grafitos Dryvit hőszigetelés pedig hozzájárul az energia hatékony
működéshez.A ház napelem előkészítéssel készül, így a későbbi bővítés is
adott. A parkolás burkolt autóbeállón megoldott, az ingatlan környezete
rendezett, családbarát. Az ingatlan kulcsrakész állapotban kerül átadásra,
konyhabútor nélkül. Burkolatok, szaniterek választhatók, a belső műszaki
tartalomban feltüntetett árakig a vételár részét képezve. Ez az otthon ideális
választás lehet azok számára, akik panorámás környezetben, mégis jól élhető,
modern műszaki tartalommal rendelkező házat keresnek, nyugodt tempójú
mindennapokhoz. Köszönöm, hogy megtisztel bizalmával, és irodánkat választja új
otthona kiválasztásához.Készséggel állunk rendelkezésére további információval,
egyeztetéssel. Ára: 105.500.000.- FtAzonosító: 4667
Részletek...
Adatlap
| Ár: | 105.500.000 Ft |
| Település: | Őrbottyán |
| A hirdető: | Ingatlaniroda ajánlatából |
| Értékesítés típusa: | Eladó |
| Telek nagysága (m2) : | 360 |
| Épület hasznos területe (m2) : | 100 |
| Szobák száma: | 4 |
| Komfort: | Duplakomfortos |
| Ingatlan állapota: | Normál állapotú |
| Anyaga: | Tégla |
| A hirdető kérése: | Ingatlanközvetítő vagyok - keresse fel Irodánkat! |
| Feladás dátuma: | 2026.03.20 |
| Eddig megtekintették 22 alkalommal | |
A hirdető adatai
Kapcsolat a hirdetővel...
Családi házak rovaton belül a(z) "4667: Panorámás családi ház!!" című hirdetést látja. (fent)




























