
Rezsimentes kényelem Jánossomorján - Jánossomorja
Felújított, 4 szobás családi ház eladó!Leírás: Kiváló lehetőség az osztrák határ
közelében! Jánossomorja központjához közel, csendes utcában kínáljuk eladásra
ezt a bruttó 100 m2-es, kétszintes, rendkívül alacsony fenntartási költségű
sorházat.Műszaki tartalom és felújítás (2019-től): Az ingatlan esztétikai és
műszaki megújuláson esett át. Kicserélték a vezetékeket (víz, villany), új
burkolatokat kapott, és a falak szigetelése is megtörtént. A fűtést modern
gázkazán és hűtő-fűtő klíma biztosítja, a nyílászárók pedig prémium, 7 kamrás
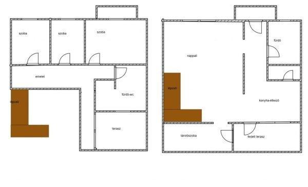
műanyag kivitelűek redőnnyel szerelve.Elosztás:Földszint: Világos konyha-étkező,
tárolószoba, fedett terasz, tágas nappali és fürdő-WC.Emelet: 3 kényelmes
hálószoba, galéria és egy második, zuhanyzós fürdőszoba. Két szobához saját
erkély is tartozik!Kert és extrák: A 770 m2-es telek két utcáról is
megközelíthető. Az udvarban garázs és tároló található. A kert öntözése vert
kútról megoldott, így a parkosított környezet fenntartása is gazdaságos.Ideális
választás ingázóknak, nagycsaládosoknak vagy az idősebb generációnak, akiknek
fontos a biztonság és a minőség.Vegye fel velem a kapcsolatot: Attila ? Moving
Home
közelében! Jánossomorja központjához közel, csendes utcában kínáljuk eladásra
ezt a bruttó 100 m2-es, kétszintes, rendkívül alacsony fenntartási költségű
sorházat.Műszaki tartalom és felújítás (2019-től): Az ingatlan esztétikai és
műszaki megújuláson esett át. Kicserélték a vezetékeket (víz, villany), új
burkolatokat kapott, és a falak szigetelése is megtörtént. A fűtést modern
gázkazán és hűtő-fűtő klíma biztosítja, a nyílászárók pedig prémium, 7 kamrás
műanyag kivitelűek redőnnyel szerelve.Elosztás:Földszint: Világos konyha-étkező,
tárolószoba, fedett terasz, tágas nappali és fürdő-WC.Emelet: 3 kényelmes
hálószoba, galéria és egy második, zuhanyzós fürdőszoba. Két szobához saját
erkély is tartozik!Kert és extrák: A 770 m2-es telek két utcáról is
megközelíthető. Az udvarban garázs és tároló található. A kert öntözése vert
kútról megoldott, így a parkosított környezet fenntartása is gazdaságos.Ideális
választás ingázóknak, nagycsaládosoknak vagy az idősebb generációnak, akiknek
fontos a biztonság és a minőség.Vegye fel velem a kapcsolatot: Attila ? Moving
Home
Részletek...
Adatlap
| Ár: | 85.990.000 Ft |
| Település: | Jánossomorja |
| A hirdető: | Ingatlaniroda ajánlatából |
| Értékesítés típusa: | Eladó |
| Használtság: | Használt |
| Telek nagysága (m2) : | 770 |
| Épület hasznos területe (m2) : | 87.00 |
| Szobák száma: | 2 |
| Félszobák száma: | 2 |
| Ingatlan állapota: | Felújított |
| Feladás dátuma: | 2026.01.19 |
| Eddig megtekintették 1 alkalommal | |
A hirdető adatai
Kapcsolat a hirdetővel...
Családi házak rovaton belül a(z) "Rezsimentes kényelem Jánossomorján - Jánossomorja" című hirdetést látja. (fent)




























