
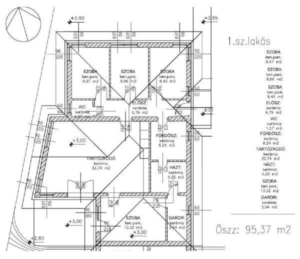
Pomázon a Meselia déli oldalában egy szintes, nappali + 4 há
Pomázon a Meselia déli oldalában, csendes környezetben 463 nm-es saját,
kizárólagos használatú kerttel rendelkező, egy szintes, nappali + 4 hálószobás
ikerház-fél eladó.Az építéssel kapcsolatos paraméterek:- Tervezett átadás 2025
IV. negyedév- hőszivattyús fűtés, padlófűtéssel, radiátorokkal- magas minőségű
hőszigetelés, ZÖLD hitelnek megfelelő energetikai besorolás- több rétegű,
műanyag nyílászárók- választható belső burkolatok, szaniterek- riasztó rendszer
előkészítés- 30 nm-es, az amerikai konyhás nappalihoz kapcsolódó terasz- durva
tereprendezés- kulcsrakész átadásFinanszírozási lehetőség:- Zöld hitel
kompatibilitás- CSOK (10+15M) hitel, illeték mentesség, Áfa visszatérítés
igényelhető.- Az alaprajz igény szerint még módosítható.A beruházó a környék
elismert építési vállalkozója, rengeteg referenciamunkával rendelkezik.
kizárólagos használatú kerttel rendelkező, egy szintes, nappali + 4 hálószobás
ikerház-fél eladó.Az építéssel kapcsolatos paraméterek:- Tervezett átadás 2025
IV. negyedév- hőszivattyús fűtés, padlófűtéssel, radiátorokkal- magas minőségű
hőszigetelés, ZÖLD hitelnek megfelelő energetikai besorolás- több rétegű,
műanyag nyílászárók- választható belső burkolatok, szaniterek- riasztó rendszer
előkészítés- 30 nm-es, az amerikai konyhás nappalihoz kapcsolódó terasz- durva
tereprendezés- kulcsrakész átadásFinanszírozási lehetőség:- Zöld hitel
kompatibilitás- CSOK (10+15M) hitel, illeték mentesség, Áfa visszatérítés
igényelhető.- Az alaprajz igény szerint még módosítható.A beruházó a környék
elismert építési vállalkozója, rengeteg referenciamunkával rendelkezik.
Részletek...
Adatlap
| Ár: | 119.900.000 Ft |
| Település: | Pomáz |
| A hirdető: | Ingatlaniroda ajánlatából |
| Értékesítés típusa: | Eladó |
| Telek nagysága (m2) : | 463 |
| Épület hasznos területe (m2) : | 111 |
| Szobák száma: | 5 |
| Komfort: | Összkomfortos |
| Ingatlan állapota: | Normál állapotú |
| Anyaga: | Tégla |
| A hirdető kérése: | Ingatlanközvetítő vagyok - keresse fel Irodánkat! |
| Feladás dátuma: | 2026.01.26 |
| Eddig megtekintették 3 alkalommal | |
A hirdető adatai
Kapcsolat a hirdetővel...
Családi házak rovaton belül a(z) "Pomázon a Meselia déli oldalában egy szintes, nappali + 4 há" című hirdetést látja. (fent)




























