
Eladó 110.00 nm-es Új építésű Családi ház Hernád
Hernád központjához közel, egy 750 m˛-es saroktelken kínálok eladásra egy 110
m˛-es, új építésű, önálló családi házat. Az ingatlan 20% önerővel már
lefoglalható. A ház vasalt beton alapra épül, Porotherm 30 X-therm Rapid
téglából, Bramac cserépfedéssel. A homlokzat 15 cm Dryvit hőszigeteléssel és
nemesvakolattal készül, a nyílászárók háromrétegű műanyag ablakok kő
párkányokkal.A vételár a teljes kulcsrakész állapotot tartalmazza, beleértve a
burkolatokat is 8.000 Ft/m˛ értékhatárig. A közművek közül a villany, a víz és a
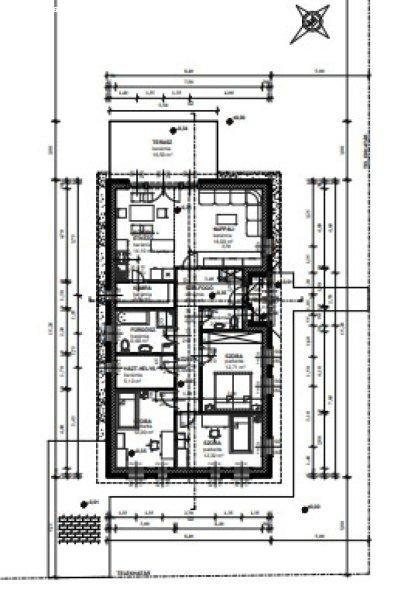
csatorna kerül bevezetésre. A ház három szobából, egy tágas nappaliból,
fürdőszobából WC-vel, valamint egy különálló mellékhelyiségből áll. A fűtés
korszerű elektromos rendszerrel és padlófűtéssel lesz megoldva, amelyet egy 8
kW-os napelemrendszer támogat; ennek köszönhetően a rezsiköltség minimális.Az
ingatlan környezete rendezett és kiváló elhelyezkedésének köszönhetően a
mindennapi élethez szükséges létesítmények ? iskola, óvoda, gyógyszertár, orvosi
rendelő, üzletek, buszmegálló és vasútállomás ? gyalogosan vagy autóval 2?15
percen belül elérhetők.Ne hagyja ki ezt a remek lehetőséget, hiszen álmai
otthona csak egy telefonhívásra van! Amennyiben az ingatlan a leírás és a
fényképek alapján felkeltette érdeklődését, hívjon bizalommal további
információért:Gáspár Kata
m˛-es, új építésű, önálló családi házat. Az ingatlan 20% önerővel már
lefoglalható. A ház vasalt beton alapra épül, Porotherm 30 X-therm Rapid
téglából, Bramac cserépfedéssel. A homlokzat 15 cm Dryvit hőszigeteléssel és
nemesvakolattal készül, a nyílászárók háromrétegű műanyag ablakok kő
párkányokkal.A vételár a teljes kulcsrakész állapotot tartalmazza, beleértve a
burkolatokat is 8.000 Ft/m˛ értékhatárig. A közművek közül a villany, a víz és a
csatorna kerül bevezetésre. A ház három szobából, egy tágas nappaliból,
fürdőszobából WC-vel, valamint egy különálló mellékhelyiségből áll. A fűtés
korszerű elektromos rendszerrel és padlófűtéssel lesz megoldva, amelyet egy 8
kW-os napelemrendszer támogat; ennek köszönhetően a rezsiköltség minimális.Az
ingatlan környezete rendezett és kiváló elhelyezkedésének köszönhetően a
mindennapi élethez szükséges létesítmények ? iskola, óvoda, gyógyszertár, orvosi
rendelő, üzletek, buszmegálló és vasútállomás ? gyalogosan vagy autóval 2?15
percen belül elérhetők.Ne hagyja ki ezt a remek lehetőséget, hiszen álmai
otthona csak egy telefonhívásra van! Amennyiben az ingatlan a leírás és a
fényképek alapján felkeltette érdeklődését, hívjon bizalommal további
információért:Gáspár Kata
Részletek...
Adatlap
| Ár: | 89.900.000 Ft |
| Település: | Hernád |
| A hirdető: | Ingatlaniroda ajánlatából |
| Értékesítés típusa: | Eladó |
| Használtság: | Új építésű |
| Telek nagysága (m2) : | 750 |
| Épület hasznos területe (m2) : | 110.00 |
| Szobák száma: | 3 |
| Feladás dátuma: | 2026.04.26 |
| Eddig megtekintették 34 alkalommal | |
A hirdető adatai
Kapcsolat a hirdetővel...
Családi házak rovaton belül a(z) "Eladó 110.00 nm-es Új építésű Családi ház Hernád" című hirdetést látja. (fent)




























