
Eladó ikerház Dunaharaszti, Sas utca
Tópark Lakópark Dunaharaszti!Modern kialakítású, kétszintes ikerházfél eladó,
nyugodt kertvárosi környezetben, átgondolt alaprajzzal és korszerű műszaki
tartalommal.A 38 hektáros, zárt lakópark egyedülálló szolgáltatásokat biztosít
lakói számára, valódi resort hangulatot teremtve a mindennapokban.Lakóparki
szolgáltatások? étterem? wakeboard pálya? homokos strand és napozó sziget?
kivilágított futópálya? portaszolgálat? horgászási lehetőség? privát
sportközpont(kondipark, tenisz-, lábtenisz- és grundfoci-pálya)? játszótér?
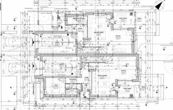
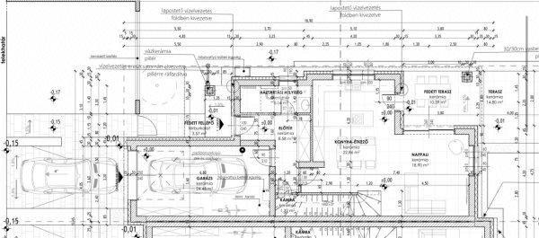
kutyafuttatóHelyiségbeosztás:A földszinten tágas, világos amerikai konyhás
nappali?étkező kapott helyet, amely közvetlen terasz- és kertkapcsolattal
rendelkezik. Ezen a szinten található egy fürdőszoba WC-vel, az előszoba és a
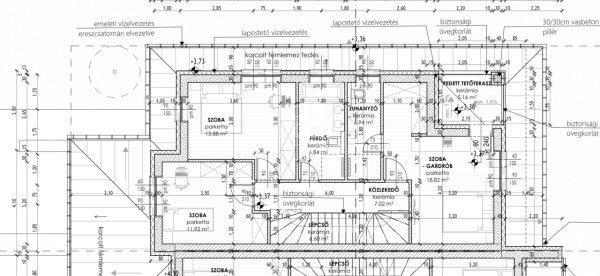
közlekedő, valamint a lakótérből is megközelíthető garázs.Az emeleten három
hálószoba biztosít kényelmes életteret, továbbá két fürdőszoba, külön WC és egy
gardrób került kialakításra. A helyiségek jól bútorozhatók, a belső elrendezés
praktikus és jól szeparált. Az erkély az egyik hálón keresztül közelíthető
meg.2-es (jobb oldali) ikerházfél: 160 m˛ lakótérFöldszint - 87 m˛ ? Előszoba +
közlekedő: 9 m˛ ? Fürdő + WC: 4 m˛ ? Amerikai konyhás nappali?étkező: 40
m˛ ? Garázs: 24 m˛ ? Terasz: 10 m˛Emelet - 73 m˛ ? Közlekedő: 7 m˛ ? Szoba: 11
m˛ ? Szoba: 14 m˛ ? Szoba: 15 m˛ ? Fürdő: 8 m˛ ? Fürdő: 6 m˛ ? WC: 3
m˛ ? Gardrób: 6 m˛ ? Lépcső: 6 m˛ ? + Erkély: 10 m˛Saját telekrész: 466
nm? Műszaki leírás:Az ingatlan korszerű építési technológiával, minőségi
anyaghasználattal készül. ? Falazat: Porotherm 30-as tégla, 15 cm EPS
hőszigeteléssel ? Tető: monolit födém, lapostetős kialakítás, antracit színű
fémlemez fedéssel ? Nyílászárók: 3 rétegű, antracit színű műanyag ablakok,
hőszigetelő üvegezéssel, rejtett redőnytok előkészítéssel ? Árnyékolás:
elektromos redőny előkészítés ? Fűtés?hűtés: korszerű klímás rendszer (fan-coil
helyett), helyiségenkénti szabályozással ? Melegvíz-ellátás: energiatakarékos
rendszer ? Szellőzés: gépi elszívás a vizes helyiségekben ? Elektromos rendszer:
modern kapcsolók, dugaljak, okosház-előkészítés ? Napelem: napelem előkészítés
kiépítve ? Burkolatok: választható hideg- és melegburkolatok, igényes
szaniterek ? Kert: saját kertkapcsolat, kerítéssel leválasztva ? Parkolás:
garázs + további felszíni parkolási lehetőségAz ingatlan megfelel a mai
energetikai és komfort elvárásoknak, alacsony fenntartási költségek mellett
biztosít magas lakókomfortot.ElhelyezkedésTESCO, ALDI, LIDL és KFC 3 percen
belül elérhető.Az M0-s autóút gyorsan megközelíthető, Budapest kb. 10 km
távolságra található.AZ ADATOK TÁJÉKOZTATÓ JELLEGŰEK!Irodánk 30 éves szakmai
tapasztalattal áll ügyfelei rendelkezésére.Várom szíves megkeresését.
...TOVÁBBI, TÖBBEZRES INGATLAN KÍNÁLAT: www.gdn-ingatlan.hu - GDN azonosító:
391880
nyugodt kertvárosi környezetben, átgondolt alaprajzzal és korszerű műszaki
tartalommal.A 38 hektáros, zárt lakópark egyedülálló szolgáltatásokat biztosít
lakói számára, valódi resort hangulatot teremtve a mindennapokban.Lakóparki
szolgáltatások? étterem? wakeboard pálya? homokos strand és napozó sziget?
kivilágított futópálya? portaszolgálat? horgászási lehetőség? privát
sportközpont(kondipark, tenisz-, lábtenisz- és grundfoci-pálya)? játszótér?
kutyafuttatóHelyiségbeosztás:A földszinten tágas, világos amerikai konyhás
nappali?étkező kapott helyet, amely közvetlen terasz- és kertkapcsolattal
rendelkezik. Ezen a szinten található egy fürdőszoba WC-vel, az előszoba és a
közlekedő, valamint a lakótérből is megközelíthető garázs.Az emeleten három
hálószoba biztosít kényelmes életteret, továbbá két fürdőszoba, külön WC és egy
gardrób került kialakításra. A helyiségek jól bútorozhatók, a belső elrendezés
praktikus és jól szeparált. Az erkély az egyik hálón keresztül közelíthető
meg.2-es (jobb oldali) ikerházfél: 160 m˛ lakótérFöldszint - 87 m˛ ? Előszoba +
közlekedő: 9 m˛ ? Fürdő + WC: 4 m˛ ? Amerikai konyhás nappali?étkező: 40
m˛ ? Garázs: 24 m˛ ? Terasz: 10 m˛Emelet - 73 m˛ ? Közlekedő: 7 m˛ ? Szoba: 11
m˛ ? Szoba: 14 m˛ ? Szoba: 15 m˛ ? Fürdő: 8 m˛ ? Fürdő: 6 m˛ ? WC: 3
m˛ ? Gardrób: 6 m˛ ? Lépcső: 6 m˛ ? + Erkély: 10 m˛Saját telekrész: 466
nm? Műszaki leírás:Az ingatlan korszerű építési technológiával, minőségi
anyaghasználattal készül. ? Falazat: Porotherm 30-as tégla, 15 cm EPS
hőszigeteléssel ? Tető: monolit födém, lapostetős kialakítás, antracit színű
fémlemez fedéssel ? Nyílászárók: 3 rétegű, antracit színű műanyag ablakok,
hőszigetelő üvegezéssel, rejtett redőnytok előkészítéssel ? Árnyékolás:
elektromos redőny előkészítés ? Fűtés?hűtés: korszerű klímás rendszer (fan-coil
helyett), helyiségenkénti szabályozással ? Melegvíz-ellátás: energiatakarékos
rendszer ? Szellőzés: gépi elszívás a vizes helyiségekben ? Elektromos rendszer:
modern kapcsolók, dugaljak, okosház-előkészítés ? Napelem: napelem előkészítés
kiépítve ? Burkolatok: választható hideg- és melegburkolatok, igényes
szaniterek ? Kert: saját kertkapcsolat, kerítéssel leválasztva ? Parkolás:
garázs + további felszíni parkolási lehetőségAz ingatlan megfelel a mai
energetikai és komfort elvárásoknak, alacsony fenntartási költségek mellett
biztosít magas lakókomfortot.ElhelyezkedésTESCO, ALDI, LIDL és KFC 3 percen
belül elérhető.Az M0-s autóút gyorsan megközelíthető, Budapest kb. 10 km
távolságra található.AZ ADATOK TÁJÉKOZTATÓ JELLEGŰEK!Irodánk 30 éves szakmai
tapasztalattal áll ügyfelei rendelkezésére.Várom szíves megkeresését.
...TOVÁBBI, TÖBBEZRES INGATLAN KÍNÁLAT: www.gdn-ingatlan.hu - GDN azonosító:
391880
Részletek...
Adatlap
| Ár: | 186.000.000 Ft |
| Település: | Dunaharaszti |
| A hirdető: | Ingatlaniroda ajánlatából |
| Értékesítés típusa: | Eladó |
| Használtság: | Új építésű |
| Utca: | Sas utca |
| Telek nagysága (m2) : | 466 |
| Épület hasznos területe (m2) : | 160 |
| Szobák száma: | 4 |
| Anyaga: | Tégla |
| A hirdető kérése: | Ingatlanközvetítő vagyok - keresse fel Irodánkat! |
| Feladás dátuma: | 2026.04.26 |
| Eddig megtekintették 35 alkalommal | |
A hirdető adatai
Kapcsolat a hirdetővel...
Családi házak rovaton belül a(z) "Eladó ikerház Dunaharaszti, Sas utca" című hirdetést látja. (fent)




























