
Eladó családi ház Budapest, XVII. kerület, Budapest-Rákoske
Nyugalom és modern kényelem Rákoskerten ? újszerű családi ház eladó a XVII.
kerületbenBudapest XVII. kerületének közkedvelt, csendes rákoskerti részén
kínálunk megvételre egy kiváló elosztású, újszerű állapotú családi házat, amely
2018-ban épült, és azóta is gondosan karbantartott, szeretettel ápolt otthon.Már
az első lépéseknél érezhető az ingatlan harmonikus hangulata.A házba belépve az
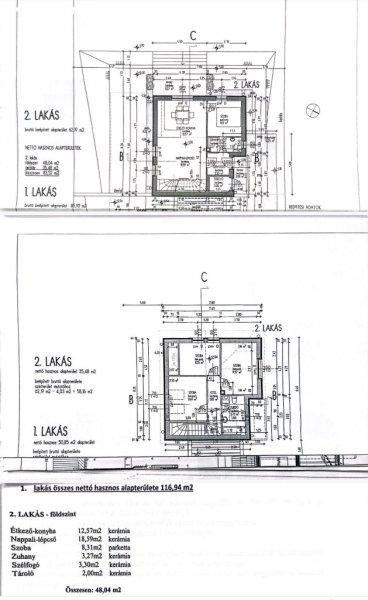
előszobából? jobbra egy zuhanyzós fürdőszoba,? balra egy háztartási helyiség és
kamra,? szemben pedig a tágas, világos amerikai konyhás nappali fogad.A
nappaliból közvetlenül nyílik a földszinti hálószoba, az étkező pedig
teraszkijáratos, így a belső tér és a kert kapcsolata természetes és
kényelmes.Az emeleten további 3 külön nyíló hálószoba és egy kádas fürdőszoba
található, ideális elrendezést biztosítva családok számára.Műszaki tartalom és
kényelemGázcirkó fűtésA földszinten a hidegburkolatos helyiségekben padlófűtés,
a szobákban radiátoros hőleadásKlímaberendezés az emeleten a kellemes nyári
hőmérsékletértVideós kaputelefon a biztonságos beengedéshezRiasztórendszer
előkészített vezetékezésselKültérA szépen gondozott udvaron egy külön
elkerített, hangulatos kerti sütögető rész került kialakításra ? tökéletes
helyszín családi és baráti összejövetelekhez.Ez az ingatlan ideális választás
mindazoknak, akik a városi élet kényelmét szeretnék ötvözni az otthon
nyugalmával és meghittségével. Különösen ajánlott kisgyermekes családok számára,
de mindenki számára tökéletes, aki rendezett, modern otthonra vágyik csendes
környezetben.Az ingatlan hitelezhető. ...TOVÁBBI, TÖBBEZRES INGATLAN KÍNÁLAT:
www.gdn-ingatlan.hu - GDN azonosító: 392029
kerületbenBudapest XVII. kerületének közkedvelt, csendes rákoskerti részén
kínálunk megvételre egy kiváló elosztású, újszerű állapotú családi házat, amely
2018-ban épült, és azóta is gondosan karbantartott, szeretettel ápolt otthon.Már
az első lépéseknél érezhető az ingatlan harmonikus hangulata.A házba belépve az
előszobából? jobbra egy zuhanyzós fürdőszoba,? balra egy háztartási helyiség és
kamra,? szemben pedig a tágas, világos amerikai konyhás nappali fogad.A
nappaliból közvetlenül nyílik a földszinti hálószoba, az étkező pedig
teraszkijáratos, így a belső tér és a kert kapcsolata természetes és
kényelmes.Az emeleten további 3 külön nyíló hálószoba és egy kádas fürdőszoba
található, ideális elrendezést biztosítva családok számára.Műszaki tartalom és
kényelemGázcirkó fűtésA földszinten a hidegburkolatos helyiségekben padlófűtés,
a szobákban radiátoros hőleadásKlímaberendezés az emeleten a kellemes nyári
hőmérsékletértVideós kaputelefon a biztonságos beengedéshezRiasztórendszer
előkészített vezetékezésselKültérA szépen gondozott udvaron egy külön
elkerített, hangulatos kerti sütögető rész került kialakításra ? tökéletes
helyszín családi és baráti összejövetelekhez.Ez az ingatlan ideális választás
mindazoknak, akik a városi élet kényelmét szeretnék ötvözni az otthon
nyugalmával és meghittségével. Különösen ajánlott kisgyermekes családok számára,
de mindenki számára tökéletes, aki rendezett, modern otthonra vágyik csendes
környezetben.Az ingatlan hitelezhető. ...TOVÁBBI, TÖBBEZRES INGATLAN KÍNÁLAT:
www.gdn-ingatlan.hu - GDN azonosító: 392029
Részletek...
Adatlap
| Ár: | 138.000.000 Ft |
| Település: | XVII. kerület |
| A hirdető: | Ingatlaniroda ajánlatából |
| Értékesítés típusa: | Eladó |
| Használtság: | Újszerű |
| Utca: | Budapest-Rákoskert |
| Telek nagysága (m2) : | 613 |
| Épület hasznos területe (m2) : | 117 |
| Szobák száma: | 1 |
| Félszobák száma: | 4 |
| Fűtés: | Cirkó fűtéses |
| Anyaga: | Tégla |
| A hirdető kérése: | Ingatlanközvetítő vagyok - keresse fel Irodánkat! |
| Feladás dátuma: | 2026.01.26 |
| Eddig megtekintették 0 alkalommal | |
A hirdető adatai
Kapcsolat a hirdetővel...
Családi házak rovaton belül a(z) "Eladó családi ház Budapest, XVII. kerület, Budapest-Rákoske" című hirdetést látja. (fent)




























