
Eladó családi ház Veresegyház, Különleges, exkluzív minőség
Exkluzív családi ház Veresegyház legszebb, zöldövezeti részén!Nyugodt,
természetközeli környezetben kínálunk megvételre egy magas műszaki tartalommal,
kifinomult ízléssel megépített prémium családi otthont, amely a tágas
élettereket, az időtálló minőséget és a privát életstílust helyezi
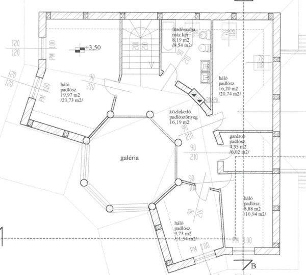
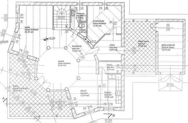
előtérbe.Reprezentatív terek & elegáns arányok:? 297 m˛ gondosan
megtervezett lakótér? 6 méteres belmagasságú, különleges kivitelezésű, galériás
nappali, kandallóval? nagyvonalú amerikai konyha kényelmes
étkezővel? többfunkciós tetőtéri szint ? hatalmas dolgozószoba, hálószobák,
vendégtér vagy privát lakrész kialakításáraA belső terek tágas és harmonikus
arányai, valamint a természetes fény jelenléte jellemzi az egész
épületet.Prémium anyaghasználat & beépített megoldások:? porotherm téglából
épült, szigetelt ház? különleges, fa oszlopos tartószerkezetek? számos egyedileg
tervezett beépített bútor? diszkréten integrált tárolómegoldások? minőségi
kivitelezés, időtálló részletekPrivát kert & kültéri luxus:? 800 m˛-es,
parkosított, intim kert? automata öntözőrendszer kiépítve? 60 m˛-es DNy-i
tájolású, fedett terasz, székely dézsával? két különálló faház - egy kisebb és
egy nagyobb tároló? tökéletes helyszín pihenéshez, családi eseményekhez,
vendéglátáshozKényelmes parkolás & praktikum:? garázs? fedett
autóbeálló? bőséges tárolási lehetőségek a telken és az épületen belül
isKorszerű technológia & fenntartható komfort:? padlófűtés kondenzációs
kazánról, radiátorokkal kiegészítve? alternatív megoldások: kandalló,
ionkazán? napelemek, napkollektor, klímaberendezések? víz kezelő rendszer,
riasztó? energiahatékony, tudatosan kialakított gépészetKitűnő lokáció ?
természet és elérhetőség egyensúlya:? Csendes, zöldövezeti környezet? Budapest
gyorsan és kényelmesen elérhető? Ideális külföldi vásárlók számára is, akik
értékelik a repülőtér közelségét és a prémium életstílustEz az otthon azok
számára készült, akik nem kompromisszumokban, hanem életminőségben gondolkodnak.
...TOVÁBBI, TÖBBEZRES INGATLAN KÍNÁLAT: www.gdn-ingatlan.hu - GDN azonosító:
392254
természetközeli környezetben kínálunk megvételre egy magas műszaki tartalommal,
kifinomult ízléssel megépített prémium családi otthont, amely a tágas
élettereket, az időtálló minőséget és a privát életstílust helyezi
előtérbe.Reprezentatív terek & elegáns arányok:? 297 m˛ gondosan
megtervezett lakótér? 6 méteres belmagasságú, különleges kivitelezésű, galériás
nappali, kandallóval? nagyvonalú amerikai konyha kényelmes
étkezővel? többfunkciós tetőtéri szint ? hatalmas dolgozószoba, hálószobák,
vendégtér vagy privát lakrész kialakításáraA belső terek tágas és harmonikus
arányai, valamint a természetes fény jelenléte jellemzi az egész
épületet.Prémium anyaghasználat & beépített megoldások:? porotherm téglából
épült, szigetelt ház? különleges, fa oszlopos tartószerkezetek? számos egyedileg
tervezett beépített bútor? diszkréten integrált tárolómegoldások? minőségi
kivitelezés, időtálló részletekPrivát kert & kültéri luxus:? 800 m˛-es,
parkosított, intim kert? automata öntözőrendszer kiépítve? 60 m˛-es DNy-i
tájolású, fedett terasz, székely dézsával? két különálló faház - egy kisebb és
egy nagyobb tároló? tökéletes helyszín pihenéshez, családi eseményekhez,
vendéglátáshozKényelmes parkolás & praktikum:? garázs? fedett
autóbeálló? bőséges tárolási lehetőségek a telken és az épületen belül
isKorszerű technológia & fenntartható komfort:? padlófűtés kondenzációs
kazánról, radiátorokkal kiegészítve? alternatív megoldások: kandalló,
ionkazán? napelemek, napkollektor, klímaberendezések? víz kezelő rendszer,
riasztó? energiahatékony, tudatosan kialakított gépészetKitűnő lokáció ?
természet és elérhetőség egyensúlya:? Csendes, zöldövezeti környezet? Budapest
gyorsan és kényelmesen elérhető? Ideális külföldi vásárlók számára is, akik
értékelik a repülőtér közelségét és a prémium életstílustEz az otthon azok
számára készült, akik nem kompromisszumokban, hanem életminőségben gondolkodnak.
...TOVÁBBI, TÖBBEZRES INGATLAN KÍNÁLAT: www.gdn-ingatlan.hu - GDN azonosító:
392254
Részletek...
Adatlap
| Ár: | 229.000.000 Ft |
| Település: | Veresegyház |
| A hirdető: | Ingatlaniroda ajánlatából |
| Értékesítés típusa: | Eladó |
| Használtság: | Újszerű |
| Utca: | Különleges, exkluzív minőség! |
| Telek nagysága (m2) : | 800 |
| Épület hasznos területe (m2) : | 297 |
| Szobák száma: | 6 |
| Fűtés: | Cirkó fűtéses |
| Anyaga: | Tégla |
| A hirdető kérése: | Ingatlanközvetítő vagyok - keresse fel Irodánkat! |
| Feladás dátuma: | 2026.05.03 |
| Eddig megtekintették 30 alkalommal | |
A hirdető adatai
Kapcsolat a hirdetővel...
Családi házak rovaton belül a(z) "Eladó családi ház Veresegyház, Különleges, exkluzív minőség" című hirdetést látja. (fent)




























