
Eladó 119.00 nm-es Új építésű Sorház Kajászó Központ
Kajászó központjában, egy zöldövezeti mellékutcában eladó 4 db nappali + 2 és 3
hálószobás sorházi lakás saját garázzsal, terasszal, erkéllyel és saját
használatú kertrésszel.A lakásokat sok éves tapasztalattal rendelkező kivitelező
építi, a ház mellett áll egy korábban elkészült, hasonló sorház.Helyiségeiben
igény szerint választhatóak a hideg és meleg burkolatok a kivitelező által
meghatározott értékben (műszaki tartalom). A lakások a garázsoknál kerülnek
összeépítésre, nincs közös lakóhelyiséggel érintkező közös falazatuk, ezáltal
szeparáltak egymástól. Várható átadás: 2026. ősz-falazata: 30-as Porotherm
tégla, szigetelés: 15 cm-es homlokzati hőszigetelő rendszer, tetőcserép fedéssel
épülnek.Műanyag nyílászárók kívül, választható fóliás ajtók belül, fűtése gáz
kondenzációs kazánnal, radiátoros hőleadással, ajándék klíma a
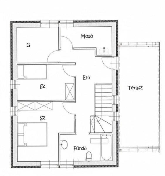
lakásokhoz!Helyiségek: I. és IV. LAKÁSFöldszint (53,62 m2)Előtér: 4,29 m2WC:
1,98 m2Nappali: 33,56 m2Konyha-étkező: 9,45 m2Lépcsőház-Tároló 4,34 m2Külső
terület (Terasz): 21,47 m2Külső terület (Gépkocsi beálló): 18,60 m2Emelet (45
m2)Közlekedő: 11,07 m2Fürdő: 4,44 m2Szoba: 11,78 m2Szoba: 8,42 m2Gardrób
(félszoba) 5,72 m2Mosókonyha 3,56 m2Terasz: 20,4 m2Össz nettó: 98,6 m2 + 20.15m2
(1/3 teraszok és garázs) 119 m2II. és III. LAKÁSÖsszes hasznos alapterület: 53,7
m2Előtér: 4,30 m2WC: 1,98 m2Nappali: 33,67 m2Konyha-étkező: 9,41
m2Lépcsőház-Tároló 4,34 m2Külső terület (Terasz): 21,47 m2Külső terület
(Gépkocsi beálló): 18,60 m2Emelet (45,3 m2)Közlekedő: 10,31 m2Fürdő: 5,52
m2Szoba: 12,86 m2Szoba: 8,5 m2Szoba 8,15 m2Terasz: 20,4 m2Össz nettó: 99 m2 +
20.15m2 (1/3 teraszok és garázs) 119 m2A bruttó méretet a hasznos
lakóterületből, valamint a teraszok, erkélyek és garázsok egyharmadát
beleszámolva állapítottam meg. A hirdetésben szereplő képek között vannak
referencia- és látványképek is.A részletekért keressen bizalommal!
hálószobás sorházi lakás saját garázzsal, terasszal, erkéllyel és saját
használatú kertrésszel.A lakásokat sok éves tapasztalattal rendelkező kivitelező
építi, a ház mellett áll egy korábban elkészült, hasonló sorház.Helyiségeiben
igény szerint választhatóak a hideg és meleg burkolatok a kivitelező által
meghatározott értékben (műszaki tartalom). A lakások a garázsoknál kerülnek
összeépítésre, nincs közös lakóhelyiséggel érintkező közös falazatuk, ezáltal
szeparáltak egymástól. Várható átadás: 2026. ősz-falazata: 30-as Porotherm
tégla, szigetelés: 15 cm-es homlokzati hőszigetelő rendszer, tetőcserép fedéssel
épülnek.Műanyag nyílászárók kívül, választható fóliás ajtók belül, fűtése gáz
kondenzációs kazánnal, radiátoros hőleadással, ajándék klíma a
lakásokhoz!Helyiségek: I. és IV. LAKÁSFöldszint (53,62 m2)Előtér: 4,29 m2WC:
1,98 m2Nappali: 33,56 m2Konyha-étkező: 9,45 m2Lépcsőház-Tároló 4,34 m2Külső
terület (Terasz): 21,47 m2Külső terület (Gépkocsi beálló): 18,60 m2Emelet (45
m2)Közlekedő: 11,07 m2Fürdő: 4,44 m2Szoba: 11,78 m2Szoba: 8,42 m2Gardrób
(félszoba) 5,72 m2Mosókonyha 3,56 m2Terasz: 20,4 m2Össz nettó: 98,6 m2 + 20.15m2
(1/3 teraszok és garázs) 119 m2II. és III. LAKÁSÖsszes hasznos alapterület: 53,7
m2Előtér: 4,30 m2WC: 1,98 m2Nappali: 33,67 m2Konyha-étkező: 9,41
m2Lépcsőház-Tároló 4,34 m2Külső terület (Terasz): 21,47 m2Külső terület
(Gépkocsi beálló): 18,60 m2Emelet (45,3 m2)Közlekedő: 10,31 m2Fürdő: 5,52
m2Szoba: 12,86 m2Szoba: 8,5 m2Szoba 8,15 m2Terasz: 20,4 m2Össz nettó: 99 m2 +
20.15m2 (1/3 teraszok és garázs) 119 m2A bruttó méretet a hasznos
lakóterületből, valamint a teraszok, erkélyek és garázsok egyharmadát
beleszámolva állapítottam meg. A hirdetésben szereplő képek között vannak
referencia- és látványképek is.A részletekért keressen bizalommal!
Részletek...
Adatlap
| Ár: | 106.900.000 Ft |
| Település: | Kajászó |
| A hirdető: | Ingatlaniroda ajánlatából |
| Értékesítés típusa: | Eladó |
| Használtság: | Új építésű |
| Utca: | Központ |
| Telek nagysága (m2) : | 200 |
| Épület hasznos területe (m2) : | 119.00 |
| Szobák száma: | 3 |
| Félszobák száma: | 1 |
| Fűtés: | Házközponti fűtéses (egyedi méréssel) |
| Feladás dátuma: | 2026.03.04 |
| Eddig megtekintették 14 alkalommal | |
A hirdető adatai
Kapcsolat a hirdetővel...
Családi házak rovaton belül a(z) "Eladó 119.00 nm-es Új építésű Sorház Kajászó Központ " című hirdetést látja. (fent)




























