
Eladó családi ház Királyszentistván, Panorámás, újépítés, t
Álmaid otthona Királyszentistváni panorámával ? új építésű családi házak
elérhető áron!Királyszentistván legkedveltebb, teljesen csendes zsákutcájában
kínálunk most 5 darab új építésű, modern családi házat, ahol a nyugalom és a
természet közelsége találkozik a komfortos, modern életstílussal.Minden ház
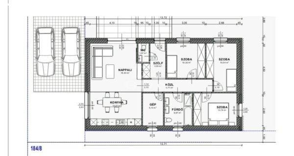
80?90 nm-es, napelemes, padlófűtéssel felszerelt, és a belső tér teljesen a
saját igényeid szerint tervezhető. Így lehetőséged van arra, hogy minden ház
pontosan úgy alakuljon, ahogyan megálmodtad.Ár: 1 045 000 Ft/nmÁtadás: 2026 év
végeKörnyezet: zsákutca, csendes, nyugodtKülönlegesség: panorámás kilátás,
világos, modern terekEz a lakópark tökéletes választás, ha szeretnél egy
csendes, barátságos környezetben élni, de mégis közel a város és a mindennapi
szolgáltatások. A házak új építésűek, így energiatakarékosak és hosszú távon is
költséghatékonyak.100 nm-es vagy annál nagyobb ingatlanra egyedi árak és tervek
kérhetők.Az ár tartalmazza az 5 Kw napelem rendszert és az 1 db 3,5 Kw
klímát.Beltéri ajtó 70 000 Ft / DBMeleg burkolat :8000 Ft/nmHideg burkolat: 11
000 Ft/nmKirályszentistván rendkívül jó lokációjú település, közel a Balatonhoz,
Veszprémhez.Ne hagyd ki a lehetőséget! Tervezd meg álmaid otthonát
Királyszentistváni panorámával, és élvezd a békés, nyugodt életet egy modern,
fenntartható házban.Részletes műszaki leírásért, valamint további információkért
hívjon bizalommal! ...TOVÁBBI, TÖBBEZRES INGATLAN KÍNÁLAT: www.gdn-ingatlan.hu -
GDN azonosító: 392337
elérhető áron!Királyszentistván legkedveltebb, teljesen csendes zsákutcájában
kínálunk most 5 darab új építésű, modern családi házat, ahol a nyugalom és a
természet közelsége találkozik a komfortos, modern életstílussal.Minden ház
80?90 nm-es, napelemes, padlófűtéssel felszerelt, és a belső tér teljesen a
saját igényeid szerint tervezhető. Így lehetőséged van arra, hogy minden ház
pontosan úgy alakuljon, ahogyan megálmodtad.Ár: 1 045 000 Ft/nmÁtadás: 2026 év
végeKörnyezet: zsákutca, csendes, nyugodtKülönlegesség: panorámás kilátás,
világos, modern terekEz a lakópark tökéletes választás, ha szeretnél egy
csendes, barátságos környezetben élni, de mégis közel a város és a mindennapi
szolgáltatások. A házak új építésűek, így energiatakarékosak és hosszú távon is
költséghatékonyak.100 nm-es vagy annál nagyobb ingatlanra egyedi árak és tervek
kérhetők.Az ár tartalmazza az 5 Kw napelem rendszert és az 1 db 3,5 Kw
klímát.Beltéri ajtó 70 000 Ft / DBMeleg burkolat :8000 Ft/nmHideg burkolat: 11
000 Ft/nmKirályszentistván rendkívül jó lokációjú település, közel a Balatonhoz,
Veszprémhez.Ne hagyd ki a lehetőséget! Tervezd meg álmaid otthonát
Királyszentistváni panorámával, és élvezd a békés, nyugodt életet egy modern,
fenntartható házban.Részletes műszaki leírásért, valamint további információkért
hívjon bizalommal! ...TOVÁBBI, TÖBBEZRES INGATLAN KÍNÁLAT: www.gdn-ingatlan.hu -
GDN azonosító: 392337
Részletek...
Adatlap
| Ár: | 83.600.000 Ft |
| Település: | Királyszentistván |
| A hirdető: | Ingatlaniroda ajánlatából |
| Értékesítés típusa: | Eladó |
| Használtság: | Új építésű |
| Utca: | Panorámás, újépítés, tervezhető |
| Telek nagysága (m2) : | 400 |
| Épület hasznos területe (m2) : | 92 |
| Szobák száma: | 3 |
| Fűtés: | Egyéb fűtéses |
| Anyaga: | Tégla |
| A hirdető kérése: | Ingatlanközvetítő vagyok - keresse fel Irodánkat! |
| Feladás dátuma: | 2026.05.10 |
| Eddig megtekintették 32 alkalommal | |
A hirdető adatai
Kapcsolat a hirdetővel...
Családi házak rovaton belül a(z) "Eladó családi ház Királyszentistván, Panorámás, újépítés, t" című hirdetést látja. (fent)




























