
Eladó családi ház Mátraszele, zsákutcában
Eladó 2 szobás felújított családi ház Mátraszelén ? bővítési
lehetőséggel!Eladásra kínálunk egy 86 m2-es felújított házat a Mátra északi
lábánál lévő dombvidéken, Mátraszelén. Az erdő szélén fekvő, 907 m2-es, az utca
felé enyhén lejtős telekre épült ingatlan a falu egyik kicsi aszfaltozott
zsákutcájában található, víz, villany, gáz és csatorna rendelkezésre áll. Az kő
alapra épült régi vályogház magas lábazati fallal rendelkezik, így a
felújításkor a száraz, jó állapotú, 40-50 cm-es falakat és a födémet
megtartották. A belső helyiségek aljzatát szigetelték, belső válaszfalakat az új
tervek alapján téglából készítették el. Az épület teljesen új tetőszerkezete
betoncseréppel fedett. Az elektromos- és vízvezetékek cseréje megtörtént. A ház
régi ablakai helyére újak kerültek: a vályogtégla falak esetén zsalugáteres fa
ablakok, a téglafalaknál műanyag ablakok. A szobákban meleg, természetes hatású
vörösfenyő padló, a közös terekben pedig padlófűtésre alkalmas, esztétikus
járólap található.A fűtés kondenzációs gázkazánnal történik padlófűtéses és
radiátoros hőleadó egységekkel. Kialakításra került egy modern zuhanyzó WC-vel
és egy külön WC is. A ház hátsó, kert felé néző részében található a konyha,
ahonnan az 50 m2-es teraszra van kijárat.Többirányú tájolás: nappali ablakai
Ny-i irányból kapnak napsütést, konyha-étkező K felé néz.A ház bejáratát egy
könnyűszerkezetes szélfogó védi, amihez egy kényelmes lépcsőn jutunk fel.
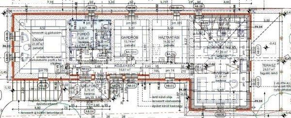
Helyiségek: - Szélfogó: 6,76 m2- Folyosó: 16,87 m2- Nappali: 23,85 m2-
Hálószoba: 13,74 m2- Fürdőszoba: 8,08 m2- WC: 2,23 m2- Konyha - Étkező:
14,92A kapun belüli gyeprácsos parkolóhelyen 3 autó kényelmesen elfér. Az erdő
felőli oldalon természetes földpart zárja le a telket, benne kialakított
pincékkel. (1 nagyobb és 2 kisebb).Az ősz folyamán sok új fát és cserjét
ültettek el kertépítészeti terv alapján. A 2023-ban kezdődött felújítást
fotókkal dokumentálták. A ház a jelenlegi készültségi szinten eladó, a befejezés
az új tulajdonosra vár.Energetikai besorolás: HA ház engedélyes tervekkel
rendelkezik 50 m2-rel történő bővítésre. Ennek az alapja már elkészült, ez a
jelenlegi a terasz. Megvalósítás esetén ide kerülne a hangulatos
amerikai-konyhás nappali, kandallóval, magas légtérrel ? szintközi födém nélkül.
Így összesen 130 m2-es, 3 szobás korszerű és stílusos állandó vagy második
otthon kialakítására van lehetőség. Falusi CSOK és CSOK+ is igényelhető.A
településen minden fontos intézmény és szolgáltatás megtalálható: orvosi
rendelő, iskola, óvoda, posta, élelmiszerboltok, valamint kocsma és
bisztró-pizzázó is működik.A Palócföld peremén, erdős nógrádi dombok között
fekvő, mintegy 900 fős falut a Zagyva szeli át. Természeti látnivalókban gazdag
térség, népszerű túraútvonalak teszik vonzóvá a kirándulók számára. Számos
horgásztó található erre max. 25 km-es távolságban, köztük a legismertebb a
Maconkai-víztározó Bátonyterenyén. Budapest autóval kb. 70 perc alatt elérhető.
Ajánljuk ezt a házat azoknak, akik kedvelik és keresik a nyugalmat, és arra
vágynak, hogy mindennapjaik természet közelségében, friss levegőn teljenek.
Befektetésként vagy turisztikai hasznosítás szempontjából is megfontolandó
választás. A ház külső megjelenése és megőrzött állapota magában hordozza az itt
eltöltött idő hangulatát. Keressen minket, ha felkeltette érdeklődését ez a
kikapcsolódásra ideális hely! Amiben segíteni tudjuk ingatlanvásárlását:- jogi
háttér- földhivatali ügyintézés- ingyenes, bankfüggetlen hitelügyintézés (CSOK,
Otthon Start, Babaváró ügyintézése is.)- energetikai tanúsítvány
elkészítése- biztosítás- belsőépítész ...TOVÁBBI, TÖBBEZRES INGATLAN KÍNÁLAT:
www.gdn-ingatlan.hu - GDN azonosító: 391951
lehetőséggel!Eladásra kínálunk egy 86 m2-es felújított házat a Mátra északi
lábánál lévő dombvidéken, Mátraszelén. Az erdő szélén fekvő, 907 m2-es, az utca
felé enyhén lejtős telekre épült ingatlan a falu egyik kicsi aszfaltozott
zsákutcájában található, víz, villany, gáz és csatorna rendelkezésre áll. Az kő
alapra épült régi vályogház magas lábazati fallal rendelkezik, így a
felújításkor a száraz, jó állapotú, 40-50 cm-es falakat és a födémet
megtartották. A belső helyiségek aljzatát szigetelték, belső válaszfalakat az új
tervek alapján téglából készítették el. Az épület teljesen új tetőszerkezete
betoncseréppel fedett. Az elektromos- és vízvezetékek cseréje megtörtént. A ház
régi ablakai helyére újak kerültek: a vályogtégla falak esetén zsalugáteres fa
ablakok, a téglafalaknál műanyag ablakok. A szobákban meleg, természetes hatású
vörösfenyő padló, a közös terekben pedig padlófűtésre alkalmas, esztétikus
járólap található.A fűtés kondenzációs gázkazánnal történik padlófűtéses és
radiátoros hőleadó egységekkel. Kialakításra került egy modern zuhanyzó WC-vel
és egy külön WC is. A ház hátsó, kert felé néző részében található a konyha,
ahonnan az 50 m2-es teraszra van kijárat.Többirányú tájolás: nappali ablakai
Ny-i irányból kapnak napsütést, konyha-étkező K felé néz.A ház bejáratát egy
könnyűszerkezetes szélfogó védi, amihez egy kényelmes lépcsőn jutunk fel.
Helyiségek: - Szélfogó: 6,76 m2- Folyosó: 16,87 m2- Nappali: 23,85 m2-
Hálószoba: 13,74 m2- Fürdőszoba: 8,08 m2- WC: 2,23 m2- Konyha - Étkező:
14,92A kapun belüli gyeprácsos parkolóhelyen 3 autó kényelmesen elfér. Az erdő
felőli oldalon természetes földpart zárja le a telket, benne kialakított
pincékkel. (1 nagyobb és 2 kisebb).Az ősz folyamán sok új fát és cserjét
ültettek el kertépítészeti terv alapján. A 2023-ban kezdődött felújítást
fotókkal dokumentálták. A ház a jelenlegi készültségi szinten eladó, a befejezés
az új tulajdonosra vár.Energetikai besorolás: HA ház engedélyes tervekkel
rendelkezik 50 m2-rel történő bővítésre. Ennek az alapja már elkészült, ez a
jelenlegi a terasz. Megvalósítás esetén ide kerülne a hangulatos
amerikai-konyhás nappali, kandallóval, magas légtérrel ? szintközi födém nélkül.
Így összesen 130 m2-es, 3 szobás korszerű és stílusos állandó vagy második
otthon kialakítására van lehetőség. Falusi CSOK és CSOK+ is igényelhető.A
településen minden fontos intézmény és szolgáltatás megtalálható: orvosi
rendelő, iskola, óvoda, posta, élelmiszerboltok, valamint kocsma és
bisztró-pizzázó is működik.A Palócföld peremén, erdős nógrádi dombok között
fekvő, mintegy 900 fős falut a Zagyva szeli át. Természeti látnivalókban gazdag
térség, népszerű túraútvonalak teszik vonzóvá a kirándulók számára. Számos
horgásztó található erre max. 25 km-es távolságban, köztük a legismertebb a
Maconkai-víztározó Bátonyterenyén. Budapest autóval kb. 70 perc alatt elérhető.
Ajánljuk ezt a házat azoknak, akik kedvelik és keresik a nyugalmat, és arra
vágynak, hogy mindennapjaik természet közelségében, friss levegőn teljenek.
Befektetésként vagy turisztikai hasznosítás szempontjából is megfontolandó
választás. A ház külső megjelenése és megőrzött állapota magában hordozza az itt
eltöltött idő hangulatát. Keressen minket, ha felkeltette érdeklődését ez a
kikapcsolódásra ideális hely! Amiben segíteni tudjuk ingatlanvásárlását:- jogi
háttér- földhivatali ügyintézés- ingyenes, bankfüggetlen hitelügyintézés (CSOK,
Otthon Start, Babaváró ügyintézése is.)- energetikai tanúsítvány
elkészítése- biztosítás- belsőépítész ...TOVÁBBI, TÖBBEZRES INGATLAN KÍNÁLAT:
www.gdn-ingatlan.hu - GDN azonosító: 391951
Részletek...
Adatlap
| Ár: | 42.500.000 Ft |
| Település: | Mátraszele |
| A hirdető: | Ingatlaniroda ajánlatából |
| Értékesítés típusa: | Eladó |
| Használtság: | Újszerű |
| Utca: | zsákutcában |
| Telek nagysága (m2) : | 907 |
| Épület hasznos területe (m2) : | 86 |
| Szobák száma: | 2 |
| Fűtés: | Cirkó fűtéses |
| Anyaga: | Egyéb anyagból készült épület |
| A hirdető kérése: | Ingatlanközvetítő vagyok - keresse fel Irodánkat! |
| Feladás dátuma: | 2026.05.10 |
| Eddig megtekintették 34 alkalommal | |
A hirdető adatai
Kapcsolat a hirdetővel...
Családi házak rovaton belül a(z) "Eladó családi ház Mátraszele, zsákutcában" című hirdetést látja. (fent)




























