
Farád - kétszintes, 3 szoba nappalis ház eladó
Farádon 124 m2-es, kétszintes, 3 szoba nappalis ikerházrész
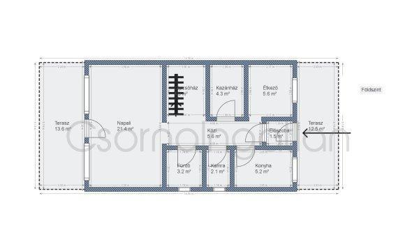
eladó.HELYISÉGEK:Földszint:- nappali- konyha- étkező- kamra- kazánház- fürdőben
zuhanyzó és toalett- közlekedő- terasz (utca és udvar felől is)Emelet:- 3 szoba-
fürdőben kád, külön helyiségben a toalett- erkélyMŰSZAKI JELLEMZŐK:- 1978-ban
épült- új hőszigetelt műanyag nyílászárók redőnnyel, szúnyoghálóval felszerelve-
a födém szigetelt- új villany, víz és szennyvíz vezetékek- ipari áram- új
lemeztető- új gáz cirkó kazán, plusz meleg víz tároló- cserépkályhaTELEK:- 1764
m2-es osztatlan közös tulajdonú telek- 3 saját garázs- térkövezett kocsibejáró-
3 db tároló (mindegyik 7,2 m2-es)- fúrt kút- előkertEGYÉB:- tehermentes- 2
tulajdonosFARÁDA kb. 1900 fős település Csornától 4 km-re, az M85-ös
gyorsforgalmi út lehajtójánál fekszik.- óvoda, általános iskola- családorvosi
szolgálat, gyógyszertár- boltok, posta stb. helyben megtalálható- falusi CSOK a
településen igényelhető
eladó.HELYISÉGEK:Földszint:- nappali- konyha- étkező- kamra- kazánház- fürdőben
zuhanyzó és toalett- közlekedő- terasz (utca és udvar felől is)Emelet:- 3 szoba-
fürdőben kád, külön helyiségben a toalett- erkélyMŰSZAKI JELLEMZŐK:- 1978-ban
épült- új hőszigetelt műanyag nyílászárók redőnnyel, szúnyoghálóval felszerelve-
a födém szigetelt- új villany, víz és szennyvíz vezetékek- ipari áram- új
lemeztető- új gáz cirkó kazán, plusz meleg víz tároló- cserépkályhaTELEK:- 1764
m2-es osztatlan közös tulajdonú telek- 3 saját garázs- térkövezett kocsibejáró-
3 db tároló (mindegyik 7,2 m2-es)- fúrt kút- előkertEGYÉB:- tehermentes- 2
tulajdonosFARÁDA kb. 1900 fős település Csornától 4 km-re, az M85-ös
gyorsforgalmi út lehajtójánál fekszik.- óvoda, általános iskola- családorvosi
szolgálat, gyógyszertár- boltok, posta stb. helyben megtalálható- falusi CSOK a
településen igényelhető
Részletek...
Adatlap
| Ár: | 69.990.000 Ft |
| Település: | Farád |
| A hirdető: | Ingatlaniroda ajánlatából |
| Értékesítés típusa: | Eladó |
| Használtság: | Használt |
| Utca: | . |
| Telek nagysága (m2) : | 1764 |
| Épület hasznos területe (m2) : | 124 |
| Szobák száma: | 4 |
| Komfort: | Összkomfortos |
| Fűtés: | Cirkó fűtéses |
| Ingatlan állapota: | Felújított |
| Anyaga: | Tégla |
| A hirdető kérése: | Ingatlanközvetítő vagyok - keresse fel Irodánkat! |
| Feladás dátuma: | 2026.03.11 |
| Eddig megtekintették 16 alkalommal | |
A hirdető adatai
Kapcsolat a hirdetővel...
Családi házak rovaton belül a(z) "Farád - kétszintes, 3 szoba nappalis ház eladó" című hirdetést látja. (fent)




























