
Tápiószelén épülő családi házak - Tápiószele
A CASANETWORK CEGLÉD eladásra kínálja - látványtervek alapján -
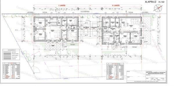
a 174602213 számú Pest megyében, Tápiószele városban lévő nyugodt utcában, egy
960 m˛-es, megosztásra kerülő telken kínálunk eladásra két, egymástól fedett
kocsibeállóval elválasztott, közvetlenül nem érintkező ikerházfelet, két külön
utcafrontos bejárattal. A házak alapterülete 93 m2. A HÁZ kivitelezése maximum
10 hónapot vesz igénybe az előszerződést követően. - Ár: /ikerfél - Teljesen
önálló lakóegységek, külön bejárattal és saját kertrésszel (telekmegosztás
után)- A két lakást fedett autóbeálló választja el, így nincs közös
falszomszéd! - Korszerű levegő?víz hőszivattyús fűtés ? padlófűtés minden
helyiségbenVíz, csatorna, villany ? bekötve, gázbekötés opció lehet - Klíma és
annak előkészítése opcionálisan kérhetőHideg- és melegburkolatok szabadon
választhatók 3000 Ft/m˛ keretig- Most még alakíthatod a belső tereket és
anyagokat a saját ízlésed szerint! - Lokáció ? élhető mindennapokBudapest kb. 1
óraIskola, óvoda, bolt, orvosi rendelő a közelbenCsendes utca, zöldövezeti
hangulatMegtekintése előre egyeztetett időpontban lehetséges!Amennyiben
a174602213 számú, a CASANETWORK CEGLÉD által kínált CSALÁDI HÁZ vagy bármely a
kínálatunkban található INGATLAN felkeltette érdeklődését, hívjon a megadott
telefonszámon. /A hirdetésben szereplő információk a megbízótól kapott adatok
alapján készültek, pontosságukért felelősséget nem vállalunk!/Irodánk teljes
körű segítséget tud nyújtani hitelekhez és az összes államilag finanszírozott
családi
támogatásokhoz!Kollégám díjmentes, bank semleges hitel ügyintézéssel áll rendelkezésre.CASANETWORK - Ingatlanban otthon vagyunk!
a 174602213 számú Pest megyében, Tápiószele városban lévő nyugodt utcában, egy
960 m˛-es, megosztásra kerülő telken kínálunk eladásra két, egymástól fedett
kocsibeállóval elválasztott, közvetlenül nem érintkező ikerházfelet, két külön
utcafrontos bejárattal. A házak alapterülete 93 m2. A HÁZ kivitelezése maximum
10 hónapot vesz igénybe az előszerződést követően. - Ár: /ikerfél - Teljesen
önálló lakóegységek, külön bejárattal és saját kertrésszel (telekmegosztás
után)- A két lakást fedett autóbeálló választja el, így nincs közös
falszomszéd! - Korszerű levegő?víz hőszivattyús fűtés ? padlófűtés minden
helyiségbenVíz, csatorna, villany ? bekötve, gázbekötés opció lehet - Klíma és
annak előkészítése opcionálisan kérhetőHideg- és melegburkolatok szabadon
választhatók 3000 Ft/m˛ keretig- Most még alakíthatod a belső tereket és
anyagokat a saját ízlésed szerint! - Lokáció ? élhető mindennapokBudapest kb. 1
óraIskola, óvoda, bolt, orvosi rendelő a közelbenCsendes utca, zöldövezeti
hangulatMegtekintése előre egyeztetett időpontban lehetséges!Amennyiben
a174602213 számú, a CASANETWORK CEGLÉD által kínált CSALÁDI HÁZ vagy bármely a
kínálatunkban található INGATLAN felkeltette érdeklődését, hívjon a megadott
telefonszámon. /A hirdetésben szereplő információk a megbízótól kapott adatok
alapján készültek, pontosságukért felelősséget nem vállalunk!/Irodánk teljes
körű segítséget tud nyújtani hitelekhez és az összes államilag finanszírozott
családi
támogatásokhoz!Kollégám díjmentes, bank semleges hitel ügyintézéssel áll rendelkezésre.CASANETWORK - Ingatlanban otthon vagyunk!
Részletek...
Adatlap
| Ár: | 53.000.000 Ft |
| Település: | Tápiószele |
| A hirdető: | Ingatlaniroda ajánlatából |
| Értékesítés típusa: | Eladó |
| Használtság: | Új építésű |
| Telek nagysága (m2) : | 960 |
| Épület hasznos területe (m2) : | 93.00 |
| Szobák száma: | 4 |
| Feladás dátuma: | 2026.03.11 |
| Eddig megtekintették 18 alkalommal | |
A hirdető adatai
Kapcsolat a hirdetővel...
Családi házak rovaton belül a(z) "Tápiószelén épülő családi házak - Tápiószele" című hirdetést látja. (fent)




























