
Eladó családi ház Budapest, XX. kerület, Erzsébetfalva
Befektetők, kivitelezők, figyelmébe ajánljuk!Pesterzsébet legjobb kertvárosi
részén kínálunk megvételre egy nettó 209 nm alapterületű, kétszintes, téglából
épült, önálló családi házat 291 nm-es telken. Az ingatlan teljes mértékben
felújítandó!A ház földszinti része a 60-as években épült, a felsőszintet a 80-as
évek végén építették rá, jelenleg 2 külön bejáratú lakásra van osztva.Beosztása:
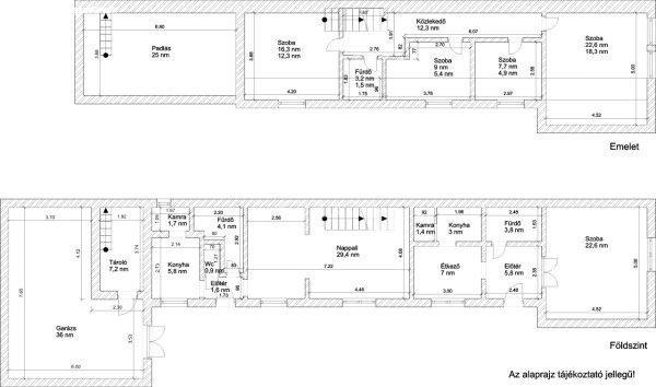
földszint:- előtér 5,8 nm,- étkező 7 nm,-konyha 3 nm,-kamra 1,4 nm,-fürdő 3,8
nm,-szoba 22,6 nm,-nappali 29,4 nm,-fürdő 4,1 nm,-előtér 1,5 nm,- kamra 1,7 nm,-
konyha 5,8 nm,- tároló 7,2 nm,- garázs 36 nm,-----------------------
129,4 nm.Emelet:-szoba 18,3 nm,-szoba 4,9 nm,-szoba 5,4 nm,-közlekedő 12,3
nm,-fürdő 1,5 nm,-szoba 12,3 nm,-helyiség 25 nm,-------------------------
79,7 nm.Amivel segítjük az Ön ingatlanvásárlását:- ingyenes hitelügyintézés,-
jogi háttér,- földhivatali ügyintézés,- energetikai tanúsítvány,- a vevő számára
az ingatlanközvetítés ingyenes.Irodánk 30 éves szakmai tapasztalattal áll
ügyfelei rendelkezésére!Várom szíves megkeresését! ...TOVÁBBI, TÖBBEZRES
INGATLAN KÍNÁLAT: www.gdn-ingatlan.hu - GDN azonosító: 392613
részén kínálunk megvételre egy nettó 209 nm alapterületű, kétszintes, téglából
épült, önálló családi házat 291 nm-es telken. Az ingatlan teljes mértékben
felújítandó!A ház földszinti része a 60-as években épült, a felsőszintet a 80-as
évek végén építették rá, jelenleg 2 külön bejáratú lakásra van osztva.Beosztása:
földszint:- előtér 5,8 nm,- étkező 7 nm,-konyha 3 nm,-kamra 1,4 nm,-fürdő 3,8
nm,-szoba 22,6 nm,-nappali 29,4 nm,-fürdő 4,1 nm,-előtér 1,5 nm,- kamra 1,7 nm,-
konyha 5,8 nm,- tároló 7,2 nm,- garázs 36 nm,-----------------------
129,4 nm.Emelet:-szoba 18,3 nm,-szoba 4,9 nm,-szoba 5,4 nm,-közlekedő 12,3
nm,-fürdő 1,5 nm,-szoba 12,3 nm,-helyiség 25 nm,-------------------------
79,7 nm.Amivel segítjük az Ön ingatlanvásárlását:- ingyenes hitelügyintézés,-
jogi háttér,- földhivatali ügyintézés,- energetikai tanúsítvány,- a vevő számára
az ingatlanközvetítés ingyenes.Irodánk 30 éves szakmai tapasztalattal áll
ügyfelei rendelkezésére!Várom szíves megkeresését! ...TOVÁBBI, TÖBBEZRES
INGATLAN KÍNÁLAT: www.gdn-ingatlan.hu - GDN azonosító: 392613
Részletek...
Adatlap
| Ár: | 89.000.000 Ft |
| Település: | XX. kerület |
| A hirdető: | Ingatlaniroda ajánlatából |
| Értékesítés típusa: | Eladó |
| Használtság: | Használt |
| Utca: | Erzsébetfalva |
| Telek nagysága (m2) : | 291 |
| Épület hasznos területe (m2) : | 250 |
| Szobák száma: | 6 |
| Fűtés: | Cirkó fűtéses |
| Ingatlan állapota: | Felújítandó |
| Anyaga: | Tégla |
| A hirdető kérése: | Ingatlanközvetítő vagyok - keresse fel Irodánkat! |
| Feladás dátuma: | 2026.03.18 |
| Eddig megtekintették 14 alkalommal | |
A hirdető adatai
Kapcsolat a hirdetővel...
Családi házak rovaton belül a(z) "Eladó családi ház Budapest, XX. kerület, Erzsébetfalva" című hirdetést látja. (fent)




























