
Eladó 82m2-es Ikerház, Vácrátót
ÚJ ÉPÍTÉSŰ IKERHÁZ eladó Vácrátóton a lakóparkban a természethez közel!A
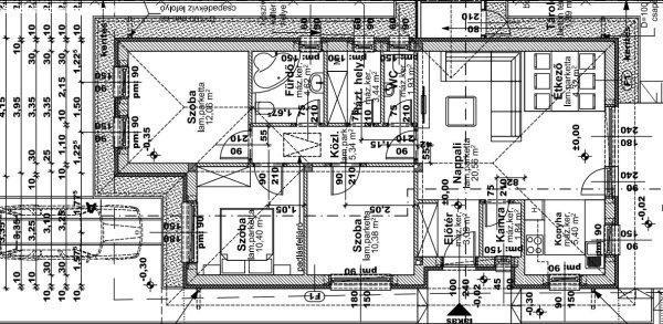
FÖLDSZINTES ikerház több méretben, amerikai konyhás nappali+3 vagy 4 hálószoba,
fürdőszoba, háztartási helyiség, kamra, előszoba, külön mellékhelyiséggel épül
meg.A ház a mai energetikai elvárásoknak megfelelően épül: hőszivattyús
fűtésrendszer padlófűtéssel mindenhol, Burkolatok, szaniterek, belső ajtók igény
szerint választhatók.Redőny előkészítés, elektromos kiállással, napelem
előkészítés az árban. H taifás villany óra szintén a vételárban. Pakolható
terhelhető betonfödém. Referenciákkal rendelkező, nagy múltú kivitelezőtől!
CSALÁDI OTTHONTEREMTÉSI KEDVEZMÉNY (CSOK) és az ILLETÉKKEDVEZMÉNYEK igénybe
vehetők, hitelügyintézésben díjtalanul segítséget nyújtunk.Megtekinthető
telefonos időpont-egyeztetés alapján: Czirják Mihály 20/220-9995
FÖLDSZINTES ikerház több méretben, amerikai konyhás nappali+3 vagy 4 hálószoba,
fürdőszoba, háztartási helyiség, kamra, előszoba, külön mellékhelyiséggel épül
meg.A ház a mai energetikai elvárásoknak megfelelően épül: hőszivattyús
fűtésrendszer padlófűtéssel mindenhol, Burkolatok, szaniterek, belső ajtók igény
szerint választhatók.Redőny előkészítés, elektromos kiállással, napelem
előkészítés az árban. H taifás villany óra szintén a vételárban. Pakolható
terhelhető betonfödém. Referenciákkal rendelkező, nagy múltú kivitelezőtől!
CSALÁDI OTTHONTEREMTÉSI KEDVEZMÉNY (CSOK) és az ILLETÉKKEDVEZMÉNYEK igénybe
vehetők, hitelügyintézésben díjtalanul segítséget nyújtunk.Megtekinthető
telefonos időpont-egyeztetés alapján: Czirják Mihály 20/220-9995
Részletek...
Adatlap
| Ár: | 104.500.000 Ft |
| Település: | Vácrátót |
| A hirdető: | Ingatlaniroda ajánlatából |
| Értékesítés típusa: | Eladó |
| Telek nagysága (m2) : | 424 |
| Épület hasznos területe (m2) : | 82 |
| Szobák száma: | 4 |
| A hirdető kérése: | Ingatlanközvetítő vagyok - keresse fel Irodánkat! |
| Feladás dátuma: | 2026.03.18 |
| Eddig megtekintették 13 alkalommal | |
A hirdető adatai
Kapcsolat a hirdetővel...
Családi házak rovaton belül a(z) "Eladó 82m2-es Ikerház, Vácrátót" című hirdetést látja. (fent)




























