
Eladó családi ház Dunaharaszti, Fő út
Eladó önálló családi ház nagy telekkel Dunaharasztiban!Dunaharaszti frekventált
részén az Óvárosban nettó 108,5 nm alapterületű, tégla építésű, önálló családi
házat kínálunk megvételre 1562 nm-es telken. A telek övezeti besorolása:
LKe3.Mérete: 25 x 62 méter.Az ingatlan több lehetőséget rejt magában,
korszerűsítés után kényelmes, élhető otthon lehet nagy telekkel. Elhelyezkedése
miatt vállalkozások számára is kiváló lehetőség (régen kertészet működött itt).
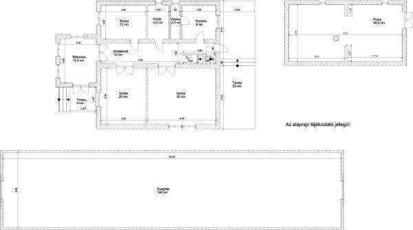
A ház beosztása:- előszoba 12,5 nm,- közlekedő 15 nm,- szoba 12 nm,- szoba 20
nm,- szoba 30 nm,- fürdőszoba 5,5 nm,- WC 1,0 nm,- kamra 2,5 nm,- konyha 9,0
nm,- padlásfeljáró 1,0 nm,--------------------------------- összesen: 108,5 nm
+ terasz 33 nm, + terasz 5,0 nm, + pince 49,5 nm.A udvarban található még, egy
198 nm-es üvegház, valamint egy tároló.A telken fúrt kút van.Minden közmű a
házba bekötve.Az ingatlan elhelyezkedése kiváló, HÉV- megálló a közelben.
Iskola, óvoda, bölcsöde gyalogosan néhány perc alatt elérhető.Amivel segítjük az
Ön ingatlanvásárlását:- ingyenes hitelügyintézés,- jogi háttér,- földhivatali
ügyintézés,- energetikai tanúsítvány,- a vevő számára az ingatlanközvetítés
ingyenes.Irodánk 30 éves szakmai tapasztalattal áll ügyfelei
rendelkezésére!Várom szíves megkeresését! ...TOVÁBBI, TÖBBEZRES INGATLAN
KÍNÁLAT: www.gdn-ingatlan.hu - GDN azonosító: 392764
részén az Óvárosban nettó 108,5 nm alapterületű, tégla építésű, önálló családi
házat kínálunk megvételre 1562 nm-es telken. A telek övezeti besorolása:
LKe3.Mérete: 25 x 62 méter.Az ingatlan több lehetőséget rejt magában,
korszerűsítés után kényelmes, élhető otthon lehet nagy telekkel. Elhelyezkedése
miatt vállalkozások számára is kiváló lehetőség (régen kertészet működött itt).
A ház beosztása:- előszoba 12,5 nm,- közlekedő 15 nm,- szoba 12 nm,- szoba 20
nm,- szoba 30 nm,- fürdőszoba 5,5 nm,- WC 1,0 nm,- kamra 2,5 nm,- konyha 9,0
nm,- padlásfeljáró 1,0 nm,--------------------------------- összesen: 108,5 nm
+ terasz 33 nm, + terasz 5,0 nm, + pince 49,5 nm.A udvarban található még, egy
198 nm-es üvegház, valamint egy tároló.A telken fúrt kút van.Minden közmű a
házba bekötve.Az ingatlan elhelyezkedése kiváló, HÉV- megálló a közelben.
Iskola, óvoda, bölcsöde gyalogosan néhány perc alatt elérhető.Amivel segítjük az
Ön ingatlanvásárlását:- ingyenes hitelügyintézés,- jogi háttér,- földhivatali
ügyintézés,- energetikai tanúsítvány,- a vevő számára az ingatlanközvetítés
ingyenes.Irodánk 30 éves szakmai tapasztalattal áll ügyfelei
rendelkezésére!Várom szíves megkeresését! ...TOVÁBBI, TÖBBEZRES INGATLAN
KÍNÁLAT: www.gdn-ingatlan.hu - GDN azonosító: 392764
Részletek...
Adatlap
| Ár: | 125.000.000 Ft |
| Település: | Dunaharaszti |
| A hirdető: | Ingatlaniroda ajánlatából |
| Értékesítés típusa: | Eladó |
| Használtság: | Használt |
| Utca: | Fő út |
| Telek nagysága (m2) : | 1562 |
| Épület hasznos területe (m2) : | 109 |
| Szobák száma: | 3 |
| Fűtés: | Gázfűtéses |
| Ingatlan állapota: | Normál állapotú |
| Anyaga: | Tégla |
| A hirdető kérése: | Ingatlanközvetítő vagyok - keresse fel Irodánkat! |
| Feladás dátuma: | 2026.04.24 |
| Eddig megtekintették 28 alkalommal | |
A hirdető adatai
Kapcsolat a hirdetővel...
Családi házak rovaton belül a(z) "Eladó családi ház Dunaharaszti, Fő út" című hirdetést látja. (fent)




























