
Eladó ikerház Mogyoród, Szőlő utca
MOGYORÓD, ÚJÉPÍTÉSŰ IKERHÁZ, korszerű megoldásokkal, 5 SZOBÁVAL!20% ÖNERŐVEL
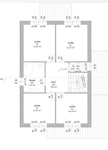
MEGVÁSÁROLHATÓ!Építkezčs folyamatban!Eladásra kínálok Mogyoród belterületi
részén, újszerű házak szomszédságában, kiváló közlekedéssel kettő ikerház
felet.Felosztásauk: földszint+emelet, mindez 142 nm alapterületen!A házba érve
az előszobából nyílik a háztatrtási helyiség, a fürdőszoba, egy különálló mosdó,
és a 32 nm nagyásgú tágas, és világos amerikai konyhás nappali, amelyből a közel
9 nm nagyságú teraszra érkezünk.Az emeleten 4 db hálószoba, egy fürdőszoba, és
egy különálló mosdó szolgálja a kényelmet.30-as porotherm tégla falak, melyeket
10 cm vastag ytong válaszfalak egészítenek ki!Hőszigetelés:A külső falak külső
síkján 10 cm hőszigetelés készül. A lábazati hőszigetelés a terepcsatlakozástól
számított 30 cm-ig zártcellás hőszigetelésből készül 10 cm vastagsággal.A
tetőszerkezet alá 30 cm hőszigetelés kerül.A földszinti padozat alatt 10+5 cm
lépésálló hőszigetelés készülA fűtést hőszívattyú biztosítja, padlőfűtéses
hőleadással.Az ablakok thermo üvegek.Mit tartalmaz még az ár? Az ár tartalmazza
az elektromos kapu, klíma,kamerarendszer és riasztórendszer kiállásait is!Mindez
862.676. ft-os négyzetméteráron!Fontos kiemelni, hogy amint a látványterveken is
látszik egymás mellett elhelyezkedő, külön bejárattal rendelkeő ikerház, vagyis
maximális az intimitás a saját területen!Hívjon bizalommal! ...TOVÁBBI,
TÖBBEZRES INGATLAN KÍNÁLAT: www.gdn-ingatlan.hu - GDN azonosító: 392851
MEGVÁSÁROLHATÓ!Építkezčs folyamatban!Eladásra kínálok Mogyoród belterületi
részén, újszerű házak szomszédságában, kiváló közlekedéssel kettő ikerház
felet.Felosztásauk: földszint+emelet, mindez 142 nm alapterületen!A házba érve
az előszobából nyílik a háztatrtási helyiség, a fürdőszoba, egy különálló mosdó,
és a 32 nm nagyásgú tágas, és világos amerikai konyhás nappali, amelyből a közel
9 nm nagyságú teraszra érkezünk.Az emeleten 4 db hálószoba, egy fürdőszoba, és
egy különálló mosdó szolgálja a kényelmet.30-as porotherm tégla falak, melyeket
10 cm vastag ytong válaszfalak egészítenek ki!Hőszigetelés:A külső falak külső
síkján 10 cm hőszigetelés készül. A lábazati hőszigetelés a terepcsatlakozástól
számított 30 cm-ig zártcellás hőszigetelésből készül 10 cm vastagsággal.A
tetőszerkezet alá 30 cm hőszigetelés kerül.A földszinti padozat alatt 10+5 cm
lépésálló hőszigetelés készülA fűtést hőszívattyú biztosítja, padlőfűtéses
hőleadással.Az ablakok thermo üvegek.Mit tartalmaz még az ár? Az ár tartalmazza
az elektromos kapu, klíma,kamerarendszer és riasztórendszer kiállásait is!Mindez
862.676. ft-os négyzetméteráron!Fontos kiemelni, hogy amint a látványterveken is
látszik egymás mellett elhelyezkedő, külön bejárattal rendelkeő ikerház, vagyis
maximális az intimitás a saját területen!Hívjon bizalommal! ...TOVÁBBI,
TÖBBEZRES INGATLAN KÍNÁLAT: www.gdn-ingatlan.hu - GDN azonosító: 392851
Részletek...
Adatlap
| Ár: | 122.490.000 Ft |
| Település: | Mogyoród |
| A hirdető: | Ingatlaniroda ajánlatából |
| Értékesítés típusa: | Eladó |
| Használtság: | Új építésű |
| Utca: | Szőlő utca |
| Telek nagysága (m2) : | 240 |
| Épület hasznos területe (m2) : | 145 |
| Szobák száma: | 5 |
| Anyaga: | Tégla |
| A hirdető kérése: | Ingatlanközvetítő vagyok - keresse fel Irodánkat! |
| Feladás dátuma: | 2026.04.24 |
| Eddig megtekintették 28 alkalommal | |
A hirdető adatai
Kapcsolat a hirdetővel...
Családi házak rovaton belül a(z) "Eladó ikerház Mogyoród, Szőlő utca" című hirdetést látja. (fent)




























