
4673/1: Dupla-komfortos ikerházi lakás eladó Veresegyházán!
Kedves Érdeklődő! Veresegyház családi házas övezetében kínálunk
megvételre egy 1479 nm-es telken épülő, modern kialakítású, belső kétszintes
ikerházat. CÉGES ÉPÍTKEZÉS, az aktuális állami támogatások valamint
kedvezményes, kamattámogatott hitelek felvehetőek ? akár a 3%-os OTTHON START
hitel, CSOK PLUS, babaváró is igényelhető, az ügyintézésben díjmentesen
segítünk! Az építő munkájára jellemző a megbízhatóság és igényesség,
leinformálható, referencia házai megtekinthetők. A két lakás kialakítása
megegyezik, területük garázzsal együtt 142 nm terasz, elrendezése nappali + négy
hálószoba, dupla komforttal, valamint egy hangulatos, 15 nm-es fedett terasszal
egészül ki, amely ideális helyszíne lehet a pihenésnek vagy családi
összejöveteleknek. A két lakóegység külön bejárattal rendelkezik:- a jobb oldali
lakás vételára 130 millió forint ? ehhez tartozik, telek hátsó részén található
körülbelül 50 nm-es, felújított faház is, amely saját konyhával, fürdőszobával,
nappalival, külön szobával, terasszal és pincével rendelkezik, így vendégházként
vagy akár külön lakrészként is kiválóan hasznosítható.- a baloldali lakás
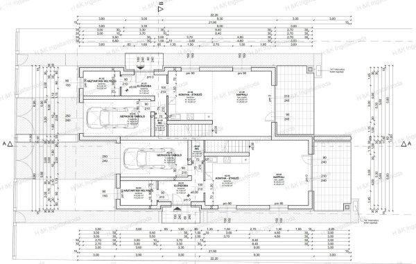
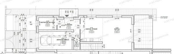
vételára 125 millió forint A földszinten egy közel 8 nm-es előszoba fogad, innen
érhető el a különálló WC, a 6 nm-es háztartási helyiség, valamint a 16,5 nm-es
garázs. A ház központi része egy tágas, több mint 40 nm-es konyha?étkező?nappali
tér, amely közvetlen kijárattal kapcsolódik a fedett teraszhoz.Az emeleti
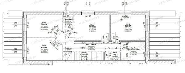
szinten kényelmes közlekedő és lépcsőtér vezet a négy külön nyíló hálószobához
(kb. 12 nm, 12 nm, 10,36 nm és 10,36 nm), emellett két fürdőszoba (6,16 nm és
3,08 nm) és egy külön WC is helyet kapott, biztosítva a család minden tagjának
komfortját. A MŰSZAKI TARTALOM korszerű és energiatudatos kialakítást tükröz: a
főfalak hőszigetelt, 30-as PTH téglából készülnek, a homlokzatra 15 cm-es
szigetelés kerül, a betonfödémet vastag ásványgyapot réteg egészíti ki.A
háromrétegű, hőszigetelt nyílászárók. A hőszivattyús rendszer és a padlófűtés
hozzájárulnak az alacsony fenntartási költségekhez. Az ingatlan kulcsrakész
állapotban kerül átadásra, konyhabútor nélkül. Az ingatlan építés alatt áll, így
az új tulajdonosnak lehetősége van a burkolatok, szaniterek és belső ajtók
kiválasztására a műszaki tartalomban feltüntetett keretösszegig a vételár részét
képezve. A környék infrastruktúrája kiváló: a buszmegálló mindössze néhány perc
sétára található, a Vicziántelepi vasútmegálló pedig kb. 13 perc sétával
elérhető. 4673/1 ? bal oldali lakás ? 125.000.000.- Ft4673/2 ? jobb oldali lakás
? 130.000.000.- Ft
megvételre egy 1479 nm-es telken épülő, modern kialakítású, belső kétszintes
ikerházat. CÉGES ÉPÍTKEZÉS, az aktuális állami támogatások valamint
kedvezményes, kamattámogatott hitelek felvehetőek ? akár a 3%-os OTTHON START
hitel, CSOK PLUS, babaváró is igényelhető, az ügyintézésben díjmentesen
segítünk! Az építő munkájára jellemző a megbízhatóság és igényesség,
leinformálható, referencia házai megtekinthetők. A két lakás kialakítása
megegyezik, területük garázzsal együtt 142 nm terasz, elrendezése nappali + négy
hálószoba, dupla komforttal, valamint egy hangulatos, 15 nm-es fedett terasszal
egészül ki, amely ideális helyszíne lehet a pihenésnek vagy családi
összejöveteleknek. A két lakóegység külön bejárattal rendelkezik:- a jobb oldali
lakás vételára 130 millió forint ? ehhez tartozik, telek hátsó részén található
körülbelül 50 nm-es, felújított faház is, amely saját konyhával, fürdőszobával,
nappalival, külön szobával, terasszal és pincével rendelkezik, így vendégházként
vagy akár külön lakrészként is kiválóan hasznosítható.- a baloldali lakás
vételára 125 millió forint A földszinten egy közel 8 nm-es előszoba fogad, innen
érhető el a különálló WC, a 6 nm-es háztartási helyiség, valamint a 16,5 nm-es
garázs. A ház központi része egy tágas, több mint 40 nm-es konyha?étkező?nappali
tér, amely közvetlen kijárattal kapcsolódik a fedett teraszhoz.Az emeleti
szinten kényelmes közlekedő és lépcsőtér vezet a négy külön nyíló hálószobához
(kb. 12 nm, 12 nm, 10,36 nm és 10,36 nm), emellett két fürdőszoba (6,16 nm és
3,08 nm) és egy külön WC is helyet kapott, biztosítva a család minden tagjának
komfortját. A MŰSZAKI TARTALOM korszerű és energiatudatos kialakítást tükröz: a
főfalak hőszigetelt, 30-as PTH téglából készülnek, a homlokzatra 15 cm-es
szigetelés kerül, a betonfödémet vastag ásványgyapot réteg egészíti ki.A
háromrétegű, hőszigetelt nyílászárók. A hőszivattyús rendszer és a padlófűtés
hozzájárulnak az alacsony fenntartási költségekhez. Az ingatlan kulcsrakész
állapotban kerül átadásra, konyhabútor nélkül. Az ingatlan építés alatt áll, így
az új tulajdonosnak lehetősége van a burkolatok, szaniterek és belső ajtók
kiválasztására a műszaki tartalomban feltüntetett keretösszegig a vételár részét
képezve. A környék infrastruktúrája kiváló: a buszmegálló mindössze néhány perc
sétára található, a Vicziántelepi vasútmegálló pedig kb. 13 perc sétával
elérhető. 4673/1 ? bal oldali lakás ? 125.000.000.- Ft4673/2 ? jobb oldali lakás
? 130.000.000.- Ft
Részletek...
Adatlap
| Ár: | 125.000.000 Ft |
| Település: | Veresegyház |
| A hirdető: | Ingatlaniroda ajánlatából |
| Értékesítés típusa: | Eladó |
| Telek nagysága (m2) : | 740 |
| Épület hasznos területe (m2) : | 141 |
| Szobák száma: | 5 |
| Komfort: | Duplakomfortos |
| Ingatlan állapota: | Normál állapotú |
| Anyaga: | Tégla |
| A hirdető kérése: | Ingatlanközvetítő vagyok - keresse fel Irodánkat! |
| Feladás dátuma: | 2026.04.24 |
| Eddig megtekintették 35 alkalommal | |
A hirdető adatai
Kapcsolat a hirdetővel...
Családi házak rovaton belül a(z) "4673/1: Dupla-komfortos ikerházi lakás eladó Veresegyházán!" című hirdetést látja. (fent)




























