
Eladó 111m2-es Ikerház, Gödöllő
Gödöllő központhoz közeli kertvárosi részén, nappali + 3 szobás újépítésű
ikerházfél referenciákkal rendelkező, megbízható építőtől eladó!Műszaki
paraméterek:- 30-as Porotherm tégla falazat + 10cm grafit szigetelés,- beton
cserépfedés,- födémen 20cm vastag kőzetgyapot,- 3 réteg üvegezésű, 5 légkamrás
hőszigetelt nyílászárókkal, redőny előkészítéssel,- kondenzációs kazán vagy
hőszivattyú (+3Mft), padlófűtéssel,- riasztó előkészítés, - hűtő-fűtő klíma
250.000.-Ft-ig,- bejárati ajtó: 250.000.-Ft,- beltéri ajtók: 70.000.-Ft/db,-
kerámia burkolatok 5.500.-Ft/nm,- parketta 4.500.-Ft/nm,- mosdó 20.000.-Ft/db,-
WC 30.000.-Ft/db,- csaptelepek 15.000.-Ft/db,- kád 50.000.-Ft,- zuhanyfolyóka
25.000.-Ft,- helyiségenként 1db kiállás + kiállások
25.000.-Ft/db,- helyiségenként 1db kapcsoló + kapcsolók 35.000.-Ft/db.Elosztás:-
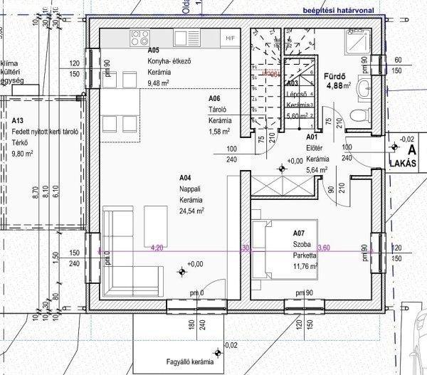
Földszint: előtér, nappali-konyha-étkező, kamra/tároló, egy szoba, fürdőszoba +
terasz + kerti tároló- Emelet: 2 szoba, közlekedő, tároló,
mosókonyha/fürdő.Telek:- 300nm-es telken helyezkedik el, parkoláshoz kocsibeálló
kerül kialakításra,- kaputól a bejárati ajtóig 1m széles, térkövezett járda,-
Kerítés díszkővel, fa vagy acél közökkel.Környék:- Elhelyezkedése kiváló,
központhoz közeli, helyi járatú buszmegálló, bevásárlási lehetőség, általános
iskola 10 percen belül könnyen elérhető és az autópálya is pár percre van.Az
ingatlant megbízható kivitelező építi! Burkolatok, belső ajtók a vevői igényei
szerint még szabadon választhatók!Kérésre teljes műszaki tartalmat, alaprajzot
szívesen küldünk!Irányár: 115.000.000.-FtHivatkozási szám: 2518262.Megtekinthető
telefonos időpont egyeztetés alapján:Sápi Balázs +36 20 772-2429
sapibalazs@godolloi.hu GÖDÖLLŐ INGATLANKÖZPONT - www.godolloi.hu: Gödöllő és
környéke legnagyobb ingatlan választéka /Gödöllő, Szada, Veresegyház, Kistarcsa,
Kerepes, Erdőkertes, Fót, Dunakeszi/ eladó-kiadó családi ház, telek, lakás!
Ingatlan építés és felújítás!
ikerházfél referenciákkal rendelkező, megbízható építőtől eladó!Műszaki
paraméterek:- 30-as Porotherm tégla falazat + 10cm grafit szigetelés,- beton
cserépfedés,- födémen 20cm vastag kőzetgyapot,- 3 réteg üvegezésű, 5 légkamrás
hőszigetelt nyílászárókkal, redőny előkészítéssel,- kondenzációs kazán vagy
hőszivattyú (+3Mft), padlófűtéssel,- riasztó előkészítés, - hűtő-fűtő klíma
250.000.-Ft-ig,- bejárati ajtó: 250.000.-Ft,- beltéri ajtók: 70.000.-Ft/db,-
kerámia burkolatok 5.500.-Ft/nm,- parketta 4.500.-Ft/nm,- mosdó 20.000.-Ft/db,-
WC 30.000.-Ft/db,- csaptelepek 15.000.-Ft/db,- kád 50.000.-Ft,- zuhanyfolyóka
25.000.-Ft,- helyiségenként 1db kiállás + kiállások
25.000.-Ft/db,- helyiségenként 1db kapcsoló + kapcsolók 35.000.-Ft/db.Elosztás:-
Földszint: előtér, nappali-konyha-étkező, kamra/tároló, egy szoba, fürdőszoba +
terasz + kerti tároló- Emelet: 2 szoba, közlekedő, tároló,
mosókonyha/fürdő.Telek:- 300nm-es telken helyezkedik el, parkoláshoz kocsibeálló
kerül kialakításra,- kaputól a bejárati ajtóig 1m széles, térkövezett járda,-
Kerítés díszkővel, fa vagy acél közökkel.Környék:- Elhelyezkedése kiváló,
központhoz közeli, helyi járatú buszmegálló, bevásárlási lehetőség, általános
iskola 10 percen belül könnyen elérhető és az autópálya is pár percre van.Az
ingatlant megbízható kivitelező építi! Burkolatok, belső ajtók a vevői igényei
szerint még szabadon választhatók!Kérésre teljes műszaki tartalmat, alaprajzot
szívesen küldünk!Irányár: 115.000.000.-FtHivatkozási szám: 2518262.Megtekinthető
telefonos időpont egyeztetés alapján:Sápi Balázs +36 20 772-2429
sapibalazs@godolloi.hu GÖDÖLLŐ INGATLANKÖZPONT - www.godolloi.hu: Gödöllő és
környéke legnagyobb ingatlan választéka /Gödöllő, Szada, Veresegyház, Kistarcsa,
Kerepes, Erdőkertes, Fót, Dunakeszi/ eladó-kiadó családi ház, telek, lakás!
Ingatlan építés és felújítás!
Részletek...
Adatlap
| Ár: | 115.000.000 Ft |
| Település: | Gödöllő |
| A hirdető: | Ingatlaniroda ajánlatából |
| Értékesítés típusa: | Eladó |
| Telek nagysága (m2) : | 300 |
| Épület hasznos területe (m2) : | 111 |
| Szobák száma: | 4 |
| Komfort: | Duplakomfortos |
| Fűtés: | Egyéb fűtéses |
| Ingatlan állapota: | Normál állapotú |
| Anyaga: | Tégla |
| A hirdető kérése: | Ingatlanközvetítő vagyok - keresse fel Irodánkat! |
| Feladás dátuma: | 2026.04.24 |
| Eddig megtekintették 41 alkalommal | |
A hirdető adatai
Kapcsolat a hirdetővel...
Családi házak rovaton belül a(z) "Eladó 111m2-es Ikerház, Gödöllő" című hirdetést látja. (fent)




























