
Eladó 110.00 nm-es Új építésű Ikerház Hajdúsámson Szűcs utca
Debrecen vonzáskörzetében, Hajdúsámson-Sámsonkert fejlődő részén, 120 méterre a
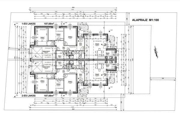
Szűcs utcától, eladó ez az új építésű egyszintes 108 nm-es iker ház, saját 457
nm-es telek résszel, garázzsal. Már a jobb oldali csak eladó, ez a Déli fekvésű!
Az épület négyzetméter ára csak 546 ezer Ft.! A 23 méteres utcafrontú telek is
kedvezményes árú, csak 12,9 millió Ft./ház! Tartalmaz: előszoba, 3 db. külön
nyíló szoba, egy fürdőszoba, sarokkáddal, WC-vel, zuhannyal, egy külön WC., egy
háztartási helyiség, mely lehet mosókonyha is, nappali étkező konyha, mely
együtt 38 nm-es, innen nyílóan egy terasz.Az ingatlan Porotherm 30-as NF
téglából, 15 cm-es külső, 30 cm födém-, 12 cm aljzatszigeteléssel, 5 légkamrás,
3 rétegű nyílászárókkal épül, tervezett fűtése hőszivattyúval történik
padlófűtéssel.Befejezve, kulcsra készen legkésőbb 2026. 12. 30-ra kész, az ár
most már 71,9 millió Ft., az oldalsó, és a hátsó kerítés, és egy db. klíma is
benne van az árban. Jöjjön, foglalózza le! Debrecenben egy 70 nm-es panel lakás
vehető meg ennyiért, garázs nélkül! Hitel, a +%-os Start hitel, csok + is
igényelhető!
Szűcs utcától, eladó ez az új építésű egyszintes 108 nm-es iker ház, saját 457
nm-es telek résszel, garázzsal. Már a jobb oldali csak eladó, ez a Déli fekvésű!
Az épület négyzetméter ára csak 546 ezer Ft.! A 23 méteres utcafrontú telek is
kedvezményes árú, csak 12,9 millió Ft./ház! Tartalmaz: előszoba, 3 db. külön
nyíló szoba, egy fürdőszoba, sarokkáddal, WC-vel, zuhannyal, egy külön WC., egy
háztartási helyiség, mely lehet mosókonyha is, nappali étkező konyha, mely
együtt 38 nm-es, innen nyílóan egy terasz.Az ingatlan Porotherm 30-as NF
téglából, 15 cm-es külső, 30 cm födém-, 12 cm aljzatszigeteléssel, 5 légkamrás,
3 rétegű nyílászárókkal épül, tervezett fűtése hőszivattyúval történik
padlófűtéssel.Befejezve, kulcsra készen legkésőbb 2026. 12. 30-ra kész, az ár
most már 71,9 millió Ft., az oldalsó, és a hátsó kerítés, és egy db. klíma is
benne van az árban. Jöjjön, foglalózza le! Debrecenben egy 70 nm-es panel lakás
vehető meg ennyiért, garázs nélkül! Hitel, a +%-os Start hitel, csok + is
igényelhető!
Részletek...
Adatlap
| Ár: | 59.000.000 Ft |
| Település: | Hajdúsámson |
| A hirdető: | Ingatlaniroda ajánlatából |
| Értékesítés típusa: | Eladó |
| Használtság: | Új építésű |
| Utca: | Szűcs utca |
| Telek nagysága (m2) : | 500 |
| Épület hasznos területe (m2) : | 110.00 |
| Szobák száma: | 4 |
| Feladás dátuma: | 2026.05.01 |
| Eddig megtekintették 25 alkalommal | |
A hirdető adatai
Kapcsolat a hirdetővel...
Családi házak rovaton belül a(z) "Eladó 110.00 nm-es Új építésű Ikerház Hajdúsámson Szűcs utca" című hirdetést látja. (fent)




























