
Eladó ikerház Veresegyház, Zsellérföldi út
Eladásra kínáljuk egy új építésű projetben, 960 nm-es telken épülő ikerház
mindkét felét Veresegyház kertvárosi részén, a Harmatok városrészben, gyönyörű
természeti környezetben, aszfaltozott utcában.Jelen ikerház fél nettó 145 nm
hasznos alapterületű két szintes épület + 20 nm-es fedett garázs, valamint 20
nm-es terasz és fedett belépő. Az ingatlan 5 szobával rendelkezik és majd' 500
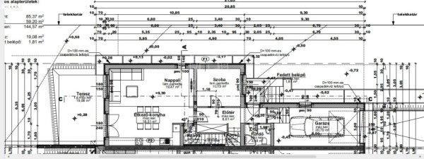
nm-es telekrész tartozik hozzá.HELYISÉGEK:FöldszintNappali: 19,5
nmÉtkező-konyha: 18,5 nmSzoba1: 10 nmElőtér: 8,6 nmKamra : 2,2 nmFürdő1: 3, 5 nm
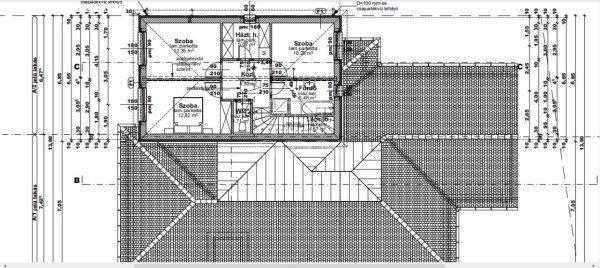
Lépcsőház: 2,4 nm+1,8 nm fedett belépő+19 nm terasz+20 nm garázsEmeletSzoba2:
12,4 nmSzoba3: 10,3 nmSzoba4: 12,8 nmHátartási helyiség: 5 nmFürdő2: 6,5 nmWC:
1,7 nmKözlekedő: 5,9 nmLépcsőház: 4,7 nmNappali+ 4 hálószoba, dupla
komfort!MŰSZAKI TARTALOM:Az épület PTH 30-as falazóelemből, 12cm-es
aljzatszigeteléssel, 10cm-es grafitos EPS homlokzati és 25cm-es födém
hőszigeteléssel, beton födémmel, Bramac betoncserép fedéssel épül. Korszerű
5-légkamrás műanyag nyílászárók kerülnek beépítésre 3 rétegű üvegezéssel,
elektromos redőny előkészítéssel.A fűtést, hűtést és meleg víz ellátást a
legkorszerűbb hőszivattyús rendszer működteti beépített puffertartállyal
kiegészítve, padlófűtéses hőleadással, H-tarifás villanyórával. Napelem és
riasztó rendszer előkészítést valamint minden szobában klíma kiállást
tartalmazza az ár.KÖRNYEZET:Veresegyház egyik legszebb városrészében, kertvárosi
környezetben épül az ingatlan.Ajánlom mindenkinek, akik nyugodt, zöldövezeti
környezetben szeretnének élni.Veresegyház rendekezik minden olyan
infrastruktúrával, amely a mindennapi élethez elengedhetetlen: iskolák, óvodák,
bevásárlási lehetőségek széles választéka, sportcentrumok, színház, egészségügyi
központ.Helyi és kistérségi buszok könnyítik a közlekedést.Budapest mind
tömegközlekedéssel, mind autóval 20-45 perc alatt elérhető.A beruházó több
évtizedes tapasztalattal rendelkező, tőke erős cég, referenciáik a környéken
igény esetén megtekinthetőek.Tervezett átadás. 2026.III. negyedévben.Ugyanitt az
ikerház másik fele is eladó, amely 1 szintes, 4 szobás épület, hasonló műszaki
tartalommal, amelynek az irányára: 145 800 000 FtAz ingatlanok 10% -al
leköthetők!TÁMOGATOTT ÉS PIACI HITELEKBEN KOLLÉGÁINK OTTHON VANNAK.EBBEN IS
ÁLLUNK VEVŐINK RENDELKEZÉSÉRE.Várom megtisztelő hívását.ID:392756 ...TOVÁBBI,
TÖBBEZRES INGATLAN KÍNÁLAT: www.gdn-ingatlan.hu - GDN azonosító: 392756
mindkét felét Veresegyház kertvárosi részén, a Harmatok városrészben, gyönyörű
természeti környezetben, aszfaltozott utcában.Jelen ikerház fél nettó 145 nm
hasznos alapterületű két szintes épület + 20 nm-es fedett garázs, valamint 20
nm-es terasz és fedett belépő. Az ingatlan 5 szobával rendelkezik és majd' 500
nm-es telekrész tartozik hozzá.HELYISÉGEK:FöldszintNappali: 19,5
nmÉtkező-konyha: 18,5 nmSzoba1: 10 nmElőtér: 8,6 nmKamra : 2,2 nmFürdő1: 3, 5 nm
Lépcsőház: 2,4 nm+1,8 nm fedett belépő+19 nm terasz+20 nm garázsEmeletSzoba2:
12,4 nmSzoba3: 10,3 nmSzoba4: 12,8 nmHátartási helyiség: 5 nmFürdő2: 6,5 nmWC:
1,7 nmKözlekedő: 5,9 nmLépcsőház: 4,7 nmNappali+ 4 hálószoba, dupla
komfort!MŰSZAKI TARTALOM:Az épület PTH 30-as falazóelemből, 12cm-es
aljzatszigeteléssel, 10cm-es grafitos EPS homlokzati és 25cm-es födém
hőszigeteléssel, beton födémmel, Bramac betoncserép fedéssel épül. Korszerű
5-légkamrás műanyag nyílászárók kerülnek beépítésre 3 rétegű üvegezéssel,
elektromos redőny előkészítéssel.A fűtést, hűtést és meleg víz ellátást a
legkorszerűbb hőszivattyús rendszer működteti beépített puffertartállyal
kiegészítve, padlófűtéses hőleadással, H-tarifás villanyórával. Napelem és
riasztó rendszer előkészítést valamint minden szobában klíma kiállást
tartalmazza az ár.KÖRNYEZET:Veresegyház egyik legszebb városrészében, kertvárosi
környezetben épül az ingatlan.Ajánlom mindenkinek, akik nyugodt, zöldövezeti
környezetben szeretnének élni.Veresegyház rendekezik minden olyan
infrastruktúrával, amely a mindennapi élethez elengedhetetlen: iskolák, óvodák,
bevásárlási lehetőségek széles választéka, sportcentrumok, színház, egészségügyi
központ.Helyi és kistérségi buszok könnyítik a közlekedést.Budapest mind
tömegközlekedéssel, mind autóval 20-45 perc alatt elérhető.A beruházó több
évtizedes tapasztalattal rendelkező, tőke erős cég, referenciáik a környéken
igény esetén megtekinthetőek.Tervezett átadás. 2026.III. negyedévben.Ugyanitt az
ikerház másik fele is eladó, amely 1 szintes, 4 szobás épület, hasonló műszaki
tartalommal, amelynek az irányára: 145 800 000 FtAz ingatlanok 10% -al
leköthetők!TÁMOGATOTT ÉS PIACI HITELEKBEN KOLLÉGÁINK OTTHON VANNAK.EBBEN IS
ÁLLUNK VEVŐINK RENDELKEZÉSÉRE.Várom megtisztelő hívását.ID:392756 ...TOVÁBBI,
TÖBBEZRES INGATLAN KÍNÁLAT: www.gdn-ingatlan.hu - GDN azonosító: 392756
Részletek...
Adatlap
| Ár: | 158.800.000 Ft |
| Település: | Veresegyház |
| A hirdető: | Ingatlaniroda ajánlatából |
| Értékesítés típusa: | Eladó |
| Utca: | Zsellérföldi út |
| Telek nagysága (m2) : | 480 |
| Épület hasznos területe (m2) : | 155 |
| Szobák száma: | 5 |
| Anyaga: | Tégla |
| A hirdető kérése: | Ingatlanközvetítő vagyok - keresse fel Irodánkat! |
| Feladás dátuma: | 2026.05.01 |
| Eddig megtekintették 26 alkalommal | |
A hirdető adatai
Kapcsolat a hirdetővel...
Családi házak rovaton belül a(z) "Eladó ikerház Veresegyház, Zsellérföldi út" című hirdetést látja. (fent)




























