
Eladó családi ház Kiskunlacháza, Kiskunlacháza
Eladó önálló családi házak Kiskunlacházán!Nyugodt, csendes környezetben kínálunk
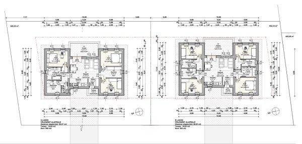
megvételre nettó 90,67 nm-es önálló családi házat 506 nm-es telken.A ház
paraméterei:alapterülete: nettó 90,67 nm.beosztása:- előtér 3,12 nm,- nappali
21,32 nm,- konyha 5,04 nm,- fürdőszoba 6,28 nm,- WC 1,56 nm,- háztart.h 6,38
nm,- közlekedő 4,15 nm,- szoba 11,94 nm,- szoba 11,54 nm,- szoba 11,14 nm,-
gardrób 8,2 nm,- terasz 12,8 nm,- terasz 1,8 nm.Műszaki paraméterek:- 30-as
Leier falazó blokk, - 10-es Leier válaszfal tégla,- 15 cm-es vtg Hungarocell
szigetelés,- műanyag fehér nyílászárók 3 rétegű üvegezés,- Leier betoncserép,-
műanyag hőszigetelt bejárati ajtó ( fehér) 85.000.-Ft értékben,- hősszivattyús
fűtés, padlófűtéssel,- hideg- meleg burkolatok 5000 Ft/nm anyag értékben,-
utcafronton beton panel kerítés,- ház körül betonjárda,- egyéb kerítések fém
oszlop drótfonattal,- 1x 32 Amper 1 fázis, H tarifás óra,Várható átadás: 2026
évvége.A kivitelező referencia munkái megtekinthetőek.Amivel segítjük az Ön
ingatlan vásárlását:- ingyenes hitelügyintézés (CSOK és Babaváró és egyéb
hitelügyintézése is)- jogi háttér,- földhivatali ügyintézés,- energetikai
tanúsítvány ügyintézése,- a vevő számára ingyenes az ingatlanközvetítés.Irodánk
30 éves tapasztalattal áll ügyfelei rendelkezésére!Várom szíves megkeresését!
...TOVÁBBI, TÖBBEZRES INGATLAN KÍNÁLAT: www.gdn-ingatlan.hu - GDN azonosító:
393048
megvételre nettó 90,67 nm-es önálló családi házat 506 nm-es telken.A ház
paraméterei:alapterülete: nettó 90,67 nm.beosztása:- előtér 3,12 nm,- nappali
21,32 nm,- konyha 5,04 nm,- fürdőszoba 6,28 nm,- WC 1,56 nm,- háztart.h 6,38
nm,- közlekedő 4,15 nm,- szoba 11,94 nm,- szoba 11,54 nm,- szoba 11,14 nm,-
gardrób 8,2 nm,- terasz 12,8 nm,- terasz 1,8 nm.Műszaki paraméterek:- 30-as
Leier falazó blokk, - 10-es Leier válaszfal tégla,- 15 cm-es vtg Hungarocell
szigetelés,- műanyag fehér nyílászárók 3 rétegű üvegezés,- Leier betoncserép,-
műanyag hőszigetelt bejárati ajtó ( fehér) 85.000.-Ft értékben,- hősszivattyús
fűtés, padlófűtéssel,- hideg- meleg burkolatok 5000 Ft/nm anyag értékben,-
utcafronton beton panel kerítés,- ház körül betonjárda,- egyéb kerítések fém
oszlop drótfonattal,- 1x 32 Amper 1 fázis, H tarifás óra,Várható átadás: 2026
évvége.A kivitelező referencia munkái megtekinthetőek.Amivel segítjük az Ön
ingatlan vásárlását:- ingyenes hitelügyintézés (CSOK és Babaváró és egyéb
hitelügyintézése is)- jogi háttér,- földhivatali ügyintézés,- energetikai
tanúsítvány ügyintézése,- a vevő számára ingyenes az ingatlanközvetítés.Irodánk
30 éves tapasztalattal áll ügyfelei rendelkezésére!Várom szíves megkeresését!
...TOVÁBBI, TÖBBEZRES INGATLAN KÍNÁLAT: www.gdn-ingatlan.hu - GDN azonosító:
393048
Részletek...
Adatlap
| Ár: | 77.350.000 Ft |
| Település: | Kiskunlacháza |
| A hirdető: | Ingatlaniroda ajánlatából |
| Értékesítés típusa: | Eladó |
| Használtság: | Új építésű |
| Utca: | Kiskunlacháza |
| Telek nagysága (m2) : | 506 |
| Épület hasznos területe (m2) : | 91 |
| Szobák száma: | 4 |
| Anyaga: | Tégla |
| A hirdető kérése: | Ingatlanközvetítő vagyok - keresse fel Irodánkat! |
| Feladás dátuma: | 2026.03.02 |
| Eddig megtekintették 7 alkalommal | |
A hirdető adatai
Kapcsolat a hirdetővel...
Családi házak rovaton belül a(z) "Eladó családi ház Kiskunlacháza, Kiskunlacháza" című hirdetést látja. (fent)




























