
Eladó családi ház Kiskunlacháza, Csendes utca
Dunapart közeli családi ház saját stéggel ? Kiskunlacháza
üdülőövezetébenEladásra kínálok Kiskunlacháza közkedvelt, csendes üdülőövezeti
részén egy jó állapotú, kanadai fagerendás szerkezetű, dupla szigeteléssel épült
családi házat, mindössze pár lépésre a vízparttól.A 370 m˛-es telken
elhelyezkedő ingatlan alapterülete 78 m˛, melyhez egy 20 m˛-es fedett, kertre
néző terasz kapcsolódik ? van hogy a reggeli kávét mókusok társaságában
élvezheti az ingatlan gazdája. A természet közelsége és a Dunapart hangulata
ideális választássá teszi állandó otthonnak, nyaralónak vagy befektetésnek
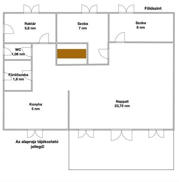
is.HelyiségekFöldszint:tágas nappalikülön konyha (új mosogatógéppel)fürdőszoba
masszázszuhannyalkülön WCtároló2 félszoba (igény szerint egybenyitható)Tetőtér:2
szobagardróbMűszaki tartalomkorszerűsített elektromos hálózatokosvezérlésű,
távirányítható elektromos fűtésriasztórendszerúj kerítés és elektromos kapufa
nyílászárókfúrt kút + kerti csapkerti tárolóExtra: saját stégAz ingatlanhoz egy
16 m˛-es saját stég is megvásárolható, amely két éve teljes felújításon esett
át. Stég ára: 10.000.000 FtElhelyezkedésKiskunlacháza központ: 5 perc
autóvalRáckeve: 8 perc autóvalnyugodt, zöldövezeti környezetAz ingatlan
hitelezhető, valamint per- tehermentes. Díjmentes, bankfüggetlen
hiteltanácsadást biztosítunk ügyfeleink számára, melynek keretében
hitelcentrumunk az összes elérhető bank és hitelintézet ajánlatát
összehasonlítja és versenyezteti az Ön érdekei mentén. A folyamat egyszerű és
átlátható: egy személyes vagy telefonos konzultáció során munkatársunk felméri
az Ön igényeit és lehetőségeit, majd ezek alapján a bankok számára optimalizált
ajánlatokat kér be. Célunk, hogy Ön hosszú távon is a legkedvezőbb,
legbiztonságosabb finanszírozási konstrukciót kapja meg. A beérkezett ajánlatok
közül végül Ön hozza meg a döntést, teljes körű szakmai támogatás mellett.Ha
felkeltette az érdeklődését, ne habozzon ? jöjjön el, nézzük meg együtt és
hagyja, hogy ez a csodás környezet Önt is elvarázsolja. ...TOVÁBBI, TÖBBEZRES
INGATLAN KÍNÁLAT: www.gdn-ingatlan.hu - GDN azonosító: 393180
üdülőövezetébenEladásra kínálok Kiskunlacháza közkedvelt, csendes üdülőövezeti
részén egy jó állapotú, kanadai fagerendás szerkezetű, dupla szigeteléssel épült
családi házat, mindössze pár lépésre a vízparttól.A 370 m˛-es telken
elhelyezkedő ingatlan alapterülete 78 m˛, melyhez egy 20 m˛-es fedett, kertre
néző terasz kapcsolódik ? van hogy a reggeli kávét mókusok társaságában
élvezheti az ingatlan gazdája. A természet közelsége és a Dunapart hangulata
ideális választássá teszi állandó otthonnak, nyaralónak vagy befektetésnek
is.HelyiségekFöldszint:tágas nappalikülön konyha (új mosogatógéppel)fürdőszoba
masszázszuhannyalkülön WCtároló2 félszoba (igény szerint egybenyitható)Tetőtér:2
szobagardróbMűszaki tartalomkorszerűsített elektromos hálózatokosvezérlésű,
távirányítható elektromos fűtésriasztórendszerúj kerítés és elektromos kapufa
nyílászárókfúrt kút + kerti csapkerti tárolóExtra: saját stégAz ingatlanhoz egy
16 m˛-es saját stég is megvásárolható, amely két éve teljes felújításon esett
át. Stég ára: 10.000.000 FtElhelyezkedésKiskunlacháza központ: 5 perc
autóvalRáckeve: 8 perc autóvalnyugodt, zöldövezeti környezetAz ingatlan
hitelezhető, valamint per- tehermentes. Díjmentes, bankfüggetlen
hiteltanácsadást biztosítunk ügyfeleink számára, melynek keretében
hitelcentrumunk az összes elérhető bank és hitelintézet ajánlatát
összehasonlítja és versenyezteti az Ön érdekei mentén. A folyamat egyszerű és
átlátható: egy személyes vagy telefonos konzultáció során munkatársunk felméri
az Ön igényeit és lehetőségeit, majd ezek alapján a bankok számára optimalizált
ajánlatokat kér be. Célunk, hogy Ön hosszú távon is a legkedvezőbb,
legbiztonságosabb finanszírozási konstrukciót kapja meg. A beérkezett ajánlatok
közül végül Ön hozza meg a döntést, teljes körű szakmai támogatás mellett.Ha
felkeltette az érdeklődését, ne habozzon ? jöjjön el, nézzük meg együtt és
hagyja, hogy ez a csodás környezet Önt is elvarázsolja. ...TOVÁBBI, TÖBBEZRES
INGATLAN KÍNÁLAT: www.gdn-ingatlan.hu - GDN azonosító: 393180
Részletek...
Adatlap
| Ár: | 62.900.000 Ft |
| Település: | Kiskunlacháza |
| A hirdető: | Ingatlaniroda ajánlatából |
| Értékesítés típusa: | Eladó |
| Használtság: | Használt |
| Utca: | Csendes utca |
| Telek nagysága (m2) : | 370 |
| Épület hasznos területe (m2) : | 78 |
| Szobák száma: | 3 |
| Félszobák száma: | 3 |
| Fűtés: | Egyéb fűtéses |
| Ingatlan állapota: | Normál állapotú |
| Anyaga: | Egyéb anyagból készült épület |
| A hirdető kérése: | Ingatlanközvetítő vagyok - keresse fel Irodánkat! |
| Feladás dátuma: | 2026.03.09 |
| Eddig megtekintették 8 alkalommal | |
A hirdető adatai
Kapcsolat a hirdetővel...
Családi házak rovaton belül a(z) "Eladó családi ház Kiskunlacháza, Csendes utca" című hirdetést látja. (fent)




























