
Eladó családi ház Helvécia, Kiskőrösi út közelében
Otthonok és megoldások!Helvécián belterületi aszfaltos utcában, 340 nm telken,
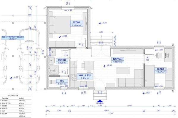
új építésű könnyűszerkezetes építési móddal, 49 nm, amerikai konyhás nappali + 1
szobás, klímás ikerház, fedett gépkocsibeállóval eladó. Ideális választás
idősebb korosztálynak, vagy fiataloknak, akik nem szeretnének nagy kertet
gondozni. Kivitelezésben szerződött partnerünk a mai kornak és igényeknek
megfelelő, energia hatékony építő anyagokkal építi fel, vállalt határidőre
otthonát. A fotók referencia munkáról készültek. További részletekért, műszaki
leírásért, a terület megtekintéséért várom hívását! ...TOVÁBBI, TÖBBEZRES
INGATLAN KÍNÁLAT: www.gdn-ingatlan.hu - GDN azonosító: 393233
új építésű könnyűszerkezetes építési móddal, 49 nm, amerikai konyhás nappali + 1
szobás, klímás ikerház, fedett gépkocsibeállóval eladó. Ideális választás
idősebb korosztálynak, vagy fiataloknak, akik nem szeretnének nagy kertet
gondozni. Kivitelezésben szerződött partnerünk a mai kornak és igényeknek
megfelelő, energia hatékony építő anyagokkal építi fel, vállalt határidőre
otthonát. A fotók referencia munkáról készültek. További részletekért, műszaki
leírásért, a terület megtekintéséért várom hívását! ...TOVÁBBI, TÖBBEZRES
INGATLAN KÍNÁLAT: www.gdn-ingatlan.hu - GDN azonosító: 393233
Részletek...
Adatlap
| Ár: | 49.900.000 Ft |
| Település: | Helvécia |
| A hirdető: | Ingatlaniroda ajánlatából |
| Értékesítés típusa: | Eladó |
| Használtság: | Új építésű |
| Utca: | Kiskőrösi út közelében |
| Telek nagysága (m2) : | 370 |
| Épület hasznos területe (m2) : | 49 |
| Szobák száma: | 2 |
| Fűtés: | Egyéb fűtéses |
| Anyaga: | Egyéb anyagból készült épület |
| A hirdető kérése: | Ingatlanközvetítő vagyok - keresse fel Irodánkat! |
| Feladás dátuma: | 2026.05.08 |
| Eddig megtekintették 21 alkalommal | |
A hirdető adatai
Kapcsolat a hirdetővel...
Családi házak rovaton belül a(z) "Eladó családi ház Helvécia, Kiskőrösi út közelében" című hirdetést látja. (fent)




























