
Eladó 232.00 nm-es Új építésű Családi ház Pécs Kertváros
Pécs egyik legkedveltebb, nyugodt és zöldövezeti városrészében, Postavölgyben
kínálunk megvételre egy modern, újépítésű családi házat.Az ingatlan átadása 2026
decemberében várható, így most még lehetősége van saját igényeire szabni a
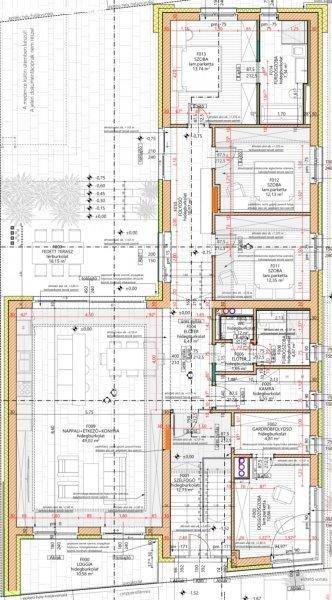
részleteket!Az impozáns, lapostetős kialakítású otthon teljes alapterülete 231
m?, amely magában foglalja a lakóteret, a kényelmes dupla garázst és a fedett
teraszt is. A 156 m? hasznos lakóterület egy átgondolt és praktikus elosztásban
valósul meg: 2 fürdőszoba, 3 kényelmes hálószoba és egy dolgozószoba biztosítja
a nyugodt privát tereket, míg a közel 50 m?-es nappali-konyha-étkező a családi
élet központjaként funkcionál, ahol a tágas tér és a természetes fény különleges
hangulatot teremt.Műszaki tartalom:Az ingatlan falazata a legmodernebb
hőszigetelő 30-as Porotherm X-Therm Rapid téglából készülnek 15cm szigeteléssel.
A ház lapostetős kialakítású, vasbeton födémmel. A fűtést hőszivattyú
padlófűtéssel, a hűtést klímák biztosítják H tarifás működéssel. A mindig friss
levegőt a hővisszanyerős szellőző rendszer biztosítja. Nyílászárói 3 rétegű
antracit színű ablakok, elektromos redőnyökkel ellátva. Ez a ház a legmodernebb
építészeti és gépészeti megoldásokat ötvözi, melyek egyszerre biztosítják az
alacsony fenntartási költségeket és a maximális kényelmet. Ideális választás
mindazoknak, akik prémium minőségű, újépítésű otthont keresnek.
kínálunk megvételre egy modern, újépítésű családi házat.Az ingatlan átadása 2026
decemberében várható, így most még lehetősége van saját igényeire szabni a
részleteket!Az impozáns, lapostetős kialakítású otthon teljes alapterülete 231
m?, amely magában foglalja a lakóteret, a kényelmes dupla garázst és a fedett
teraszt is. A 156 m? hasznos lakóterület egy átgondolt és praktikus elosztásban
valósul meg: 2 fürdőszoba, 3 kényelmes hálószoba és egy dolgozószoba biztosítja
a nyugodt privát tereket, míg a közel 50 m?-es nappali-konyha-étkező a családi
élet központjaként funkcionál, ahol a tágas tér és a természetes fény különleges
hangulatot teremt.Műszaki tartalom:Az ingatlan falazata a legmodernebb
hőszigetelő 30-as Porotherm X-Therm Rapid téglából készülnek 15cm szigeteléssel.
A ház lapostetős kialakítású, vasbeton födémmel. A fűtést hőszivattyú
padlófűtéssel, a hűtést klímák biztosítják H tarifás működéssel. A mindig friss
levegőt a hővisszanyerős szellőző rendszer biztosítja. Nyílászárói 3 rétegű
antracit színű ablakok, elektromos redőnyökkel ellátva. Ez a ház a legmodernebb
építészeti és gépészeti megoldásokat ötvözi, melyek egyszerre biztosítják az
alacsony fenntartási költségeket és a maximális kényelmet. Ideális választás
mindazoknak, akik prémium minőségű, újépítésű otthont keresnek.
Részletek...
Adatlap
| Ár: | 179.000.000 Ft |
| Település: | Pécs |
| A hirdető: | Ingatlaniroda ajánlatából |
| Értékesítés típusa: | Eladó |
| Használtság: | Új építésű |
| Telek nagysága (m2) : | 1740 |
| Épület hasznos területe (m2) : | 232.00 |
| Szobák száma: | 3 |
| Félszobák száma: | 1 |
| Feladás dátuma: | 2026.03.09 |
| Eddig megtekintették 6 alkalommal | |
A hirdető adatai
Kapcsolat a hirdetővel...
Családi házak rovaton belül a(z) "Eladó 232.00 nm-es Új építésű Családi ház Pécs Kertváros " című hirdetést látja. (fent)



























