
Eladó családi ház Domony, Akác utca
Eladó újépítésű, exkluzív családi ház Domonyvölgy szívébenDomonyvölgyben, a
Gödöllői-dombság gyönyörű, természetvédelmi területén kínáljuk megvételre ezt a
619 m˛-es telken épülő modern családi házat, amely a kényelem és a
fenntarthatóság jegyében készül.Az épület jelenlegi tervei szerint 118 m˛
lakóterű, de igény szerint akár 180 m˛-re is bővíthető, így tökéletes választás
lehet kisebb és nagyobb családoknak egyaránt.Területi besorolása Lf-2 (falusias
lakóövezet), 30% beépíthetőség, 5 méteres épületmagasság engedélyezett.A
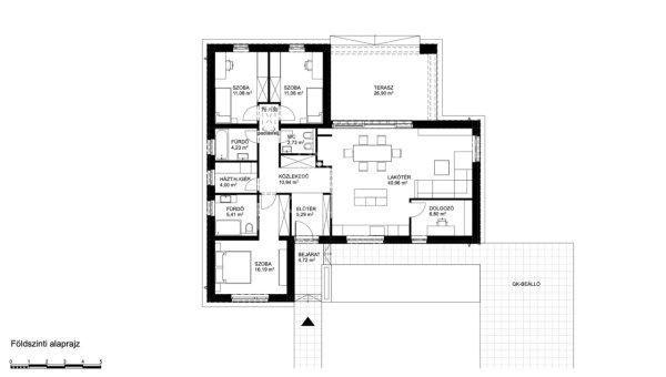
belterületi övezet utolsó építési telke. Főbb helyiségek:- tágas, amerikai
konyhás nappali-étkező (41 m˛)- 4 szoba (16, 11, 11 és 7 m˛)- 2 fürdőszoba,
külön WC- háztartási helyiség, közlekedők, előtér- 27 m˛-es terasz- igény
szerint garázs is kialakíthatóMűszaki tartalom:- beton alap, tégla falazat,
kerámia tetőcserép- háromrétegű, hőszigetelt műanyag nyílászárók- vizes
helyiségekben greslap, szobákban melegburkolat- hőszivattyús fűtés
előkészítéssel, napelemrendszer lehetőséggel- kémény kiépítve
kandallóhoz- közművek: víz, villany az utcában, csatorna a telken belül (telekre
való bevitel folyamatban, a vevő igényeihez igazítva)Ez a ház magas műszaki
tartalommal épül, amely modern és energiatakarékos otthont biztosít. A
kivitelező cég referenciájaként a környéken épülő házak
megtekinthetők.Finanszírozási lehetőségek:- CSOK Plusz- 3%-os Otthon Start
hitel- Zöld hitelKörnyék és elhelyezkedés:A Budapesttől mindössze 35 km-re
található Domonyvölgy a Natura 2000 természetvédelmi területen helyezkedik el,
ahol négy hangulatos tó, erdők és különleges élővilág várja a kikapcsolódásra
vágyókat.Tömegközlekedéssel könnyen elérhető Gödöllő, illetve Aszód és Bag
ahonnan számos busz és vonathálózat áll rendelkezésre.M3 autópálya pár perc
alatt elérhető (Bag, Gödöllő)Szabadidős lehetőségek a közelben:D-Beach homokos
partszakasszal és pálmafákkalLázár Lovaspark ? csikós bemutató, állatsimogató,
magyaros vendéglátásDomonyvölgyi víztározó és horgásztó Extrém élmények: quad
túra, off-road terepjáró, tankvezetés, paintballEz a ház ideális választás
mindazoknak, akik szeretnék a főváros közelségét ötvözni a nyugodt,
természetközeli életérzéssel ? egy exkluzív, korszerű és bővíthető otthonban.Az
ingatlan előre egyeztetett időpontban megtekinthető! ...TOVÁBBI, TÖBBEZRES
INGATLAN KÍNÁLAT: www.gdn-ingatlan.hu - GDN azonosító: 393368
Gödöllői-dombság gyönyörű, természetvédelmi területén kínáljuk megvételre ezt a
619 m˛-es telken épülő modern családi házat, amely a kényelem és a
fenntarthatóság jegyében készül.Az épület jelenlegi tervei szerint 118 m˛
lakóterű, de igény szerint akár 180 m˛-re is bővíthető, így tökéletes választás
lehet kisebb és nagyobb családoknak egyaránt.Területi besorolása Lf-2 (falusias
lakóövezet), 30% beépíthetőség, 5 méteres épületmagasság engedélyezett.A
belterületi övezet utolsó építési telke. Főbb helyiségek:- tágas, amerikai
konyhás nappali-étkező (41 m˛)- 4 szoba (16, 11, 11 és 7 m˛)- 2 fürdőszoba,
külön WC- háztartási helyiség, közlekedők, előtér- 27 m˛-es terasz- igény
szerint garázs is kialakíthatóMűszaki tartalom:- beton alap, tégla falazat,
kerámia tetőcserép- háromrétegű, hőszigetelt műanyag nyílászárók- vizes
helyiségekben greslap, szobákban melegburkolat- hőszivattyús fűtés
előkészítéssel, napelemrendszer lehetőséggel- kémény kiépítve
kandallóhoz- közművek: víz, villany az utcában, csatorna a telken belül (telekre
való bevitel folyamatban, a vevő igényeihez igazítva)Ez a ház magas műszaki
tartalommal épül, amely modern és energiatakarékos otthont biztosít. A
kivitelező cég referenciájaként a környéken épülő házak
megtekinthetők.Finanszírozási lehetőségek:- CSOK Plusz- 3%-os Otthon Start
hitel- Zöld hitelKörnyék és elhelyezkedés:A Budapesttől mindössze 35 km-re
található Domonyvölgy a Natura 2000 természetvédelmi területen helyezkedik el,
ahol négy hangulatos tó, erdők és különleges élővilág várja a kikapcsolódásra
vágyókat.Tömegközlekedéssel könnyen elérhető Gödöllő, illetve Aszód és Bag
ahonnan számos busz és vonathálózat áll rendelkezésre.M3 autópálya pár perc
alatt elérhető (Bag, Gödöllő)Szabadidős lehetőségek a közelben:D-Beach homokos
partszakasszal és pálmafákkalLázár Lovaspark ? csikós bemutató, állatsimogató,
magyaros vendéglátásDomonyvölgyi víztározó és horgásztó Extrém élmények: quad
túra, off-road terepjáró, tankvezetés, paintballEz a ház ideális választás
mindazoknak, akik szeretnék a főváros közelségét ötvözni a nyugodt,
természetközeli életérzéssel ? egy exkluzív, korszerű és bővíthető otthonban.Az
ingatlan előre egyeztetett időpontban megtekinthető! ...TOVÁBBI, TÖBBEZRES
INGATLAN KÍNÁLAT: www.gdn-ingatlan.hu - GDN azonosító: 393368
Részletek...
Adatlap
| Ár: | 130.000.000 Ft |
| Település: | Domony |
| A hirdető: | Ingatlaniroda ajánlatából |
| Értékesítés típusa: | Eladó |
| Használtság: | Új építésű |
| Utca: | Akác utca |
| Telek nagysága (m2) : | 645 |
| Épület hasznos területe (m2) : | 180 |
| Szobák száma: | 4 |
| Fűtés: | Egyéb fűtéses |
| Anyaga: | Tégla |
| A hirdető kérése: | Ingatlanközvetítő vagyok - keresse fel Irodánkat! |
| Feladás dátuma: | 2026.04.15 |
| Eddig megtekintették 18 alkalommal | |
A hirdető adatai
Kapcsolat a hirdetővel...
Családi házak rovaton belül a(z) "Eladó családi ház Domony, Akác utca" című hirdetést látja. (fent)




























