
Eladó családi ház Budapest, XVIII. kerület, Szabács utca
Eladó háromszintes önálló családi ház 18.kerületben.Budapest 18.kerület
Szemeretelepen kínálunk megvételre egy nettó 230 nm-es, háromszintes,téglából
épült, önálló családi házat 433 nm-es telken.A telken található még, egy
különálló garázs.A nyílászárók háromrétegű üvegezésű a jobb hangszigetelés
érdekében.A fűtést gáz cirkó biztosítja radiátoros hőleadással.Az ingatlan
beosztása-földszint:- előszoba 7nm,- nappali 23,1nm,- konyha 7,5nm,- étkező
15,9nm,- kamra 2,3nm,- fürdőszoba 5,2nm,- WC 2,2nm,---------------------------
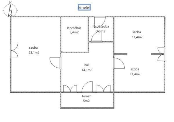
nettó: 63,2nmEmelet:- lépcsőház 5,4nm,- hall 14,1nm,- fürdőszoba+WC 3,6nm,-
szoba 23,1nm,- szoba 11,4nm,- szoba 11,4nm,- terasz
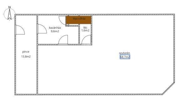
5nm,----------------------------- nettó:74nmSzuterén:- kazánház 9,6nm,- tároló
13,8nm,- WC,mosdó 1,6nm,- "dühöngő"szabadidőszoba
68,7nm,------------------------------ nettó: 93,7nmVonat, busz megálló a
közelben. Játszótér sétatávolságra található.Amivel segítjük az Ön
ingatlanvásárlását:- ingyenes hitelügyintézés,- jogi háttér,- földhivatali
ügyintézés,- energetikai tanúsítvány,- a vevő számára az ingatlanközvetítés
ingyenes.Irodánk 30 éves szakmai tapasztalattal áll ügyfelei
rendelkezésére!Várom szíves megkeresését! ...TOVÁBBI, TÖBBEZRES INGATLAN
KÍNÁLAT: www.gdn-ingatlan.hu - GDN azonosító: 393578
Szemeretelepen kínálunk megvételre egy nettó 230 nm-es, háromszintes,téglából
épült, önálló családi házat 433 nm-es telken.A telken található még, egy
különálló garázs.A nyílászárók háromrétegű üvegezésű a jobb hangszigetelés
érdekében.A fűtést gáz cirkó biztosítja radiátoros hőleadással.Az ingatlan
beosztása-földszint:- előszoba 7nm,- nappali 23,1nm,- konyha 7,5nm,- étkező
15,9nm,- kamra 2,3nm,- fürdőszoba 5,2nm,- WC 2,2nm,---------------------------
nettó: 63,2nmEmelet:- lépcsőház 5,4nm,- hall 14,1nm,- fürdőszoba+WC 3,6nm,-
szoba 23,1nm,- szoba 11,4nm,- szoba 11,4nm,- terasz
5nm,----------------------------- nettó:74nmSzuterén:- kazánház 9,6nm,- tároló
13,8nm,- WC,mosdó 1,6nm,- "dühöngő"szabadidőszoba
68,7nm,------------------------------ nettó: 93,7nmVonat, busz megálló a
közelben. Játszótér sétatávolságra található.Amivel segítjük az Ön
ingatlanvásárlását:- ingyenes hitelügyintézés,- jogi háttér,- földhivatali
ügyintézés,- energetikai tanúsítvány,- a vevő számára az ingatlanközvetítés
ingyenes.Irodánk 30 éves szakmai tapasztalattal áll ügyfelei
rendelkezésére!Várom szíves megkeresését! ...TOVÁBBI, TÖBBEZRES INGATLAN
KÍNÁLAT: www.gdn-ingatlan.hu - GDN azonosító: 393578
Részletek...
Adatlap
| Ár: | 119.800.000 Ft |
| Település: | XVIII. kerület |
| A hirdető: | Ingatlaniroda ajánlatából |
| Értékesítés típusa: | Eladó |
| Használtság: | Használt |
| Utca: | Szabács utca |
| Telek nagysága (m2) : | 433 |
| Épület hasznos területe (m2) : | 230 |
| Szobák száma: | 3 |
| Fűtés: | Cirkó fűtéses |
| Ingatlan állapota: | Normál állapotú |
| Anyaga: | Tégla |
| A hirdető kérése: | Ingatlanközvetítő vagyok - keresse fel Irodánkat! |
| Feladás dátuma: | 2026.03.16 |
| Eddig megtekintették 6 alkalommal | |
A hirdető adatai
Kapcsolat a hirdetővel...
Családi házak rovaton belül a(z) "Eladó családi ház Budapest, XVIII. kerület, Szabács utca" című hirdetést látja. (fent)




























