
Eladó családi ház Vác, Deákvár
Csodálatos panorámás, igényes, 2 szintes, családi otthon Vác közkedvelt
városrészében eladó!Az ingatlan gondos hozzáértéssel épült, kifejezetten
elegáns, rendezett környezetben található Vácon. A tulajdonos saját maga és
családja számára építette ezt a gyönyörű házat, ezért a leendő lakója egy valódi
otthonra lelhet benne.A lankás teleknek köszönhetően utcafronton 1, a kert felé
pedig 2 szintes az épület. A pince szinten 2 állásos, tágas garázs, tároló
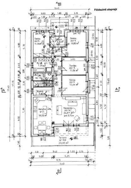
résszel, egy nyárikonyha és egy zuhanyzó kapott helyet. A földszinten 4 szoba, 2
fürdőszoba és hatalmas, tágas nappali egy légtérben, mégis némileg elkülönülten
található az étkező és a teljesen felszerelt konyha. A nappaliból nyílik az
erkély, ahol kényelmesen elfér egy 6-8 személyes étkezőasztal. A teraszról és a
pince szintről is a kertbe jutunk, ahol a csodálatos panoráma mellett egy
medence is elénk tárul, amit a kiépített hőszivattyús rendszerrel fűteni is
tudunk. A kertben automata (robot) fűnyíró gondoskodik a tulajdonosok
kényelméről.Műszaki tudnivalók:A ház 2021-ben épült 30-as Porotherm téglából,
melyre 15 cm grafit szigetelés került. A födém fa szerkezetű, ami teljes
egészében szigetelt. 5 kw-os napelem látja el a ház elektromos áram igényét. A
ház fűtése elektromos kazán, de rendelkezésre áll kandalló és több hűtő-fűtő
klímaberendezés is. A kimagasló minőségi járólappal burkolt földszinten
padlófűtés, az alsó szinten radiátorok biztosítják a meleget. A szobák ablakain
szúnyogháló véd a nemkívánatos rovaroktól, műanyag redőnyök pedig a hőségtől. A
nappali hatalmas üvegfelületeinél elektromos redőny beépítésének lehetősége
kialakításra került. A helyiségek belmagassága 270 cm. A házban hatalmas
gardrób- és tárolószekrények, teljesen gépesített konyha szolgálja a kényelmet.
A környék infrastruktúrája kiváló: tömegközlekedési lehetőségek,
bevásárlóközpontok, boltok, iskola, óvoda, orvosi rendelő rövid sétatávolságon
belül elérhetők. A környék csendes, mégis minden fontos szolgáltatás könnyen
hozzáférhető. A Vác közeli hegyekben remek kiránduló útvonalak és tanösvények
várják a látogatókat. A Duna közelsége lehetőséget ad a vízi sportok űzésére és
a kiépített kerékpárút az egész Dunakanyart lefedi. A közvetlen szomszédok
kedvesek, barátságosak és megbízhatóak.Főbb jellemzők?Földszint: 122 m˛?Pince
szint: 68 m˛?Terasz: 23 m˛?Fűthető medence: 7m x 3,5m ?Szobák száma:
5?Fürdőszobák száma: 2?WC: külön 2?Fűtés: elektromos kazán és hűtő-fűtő
klímák?Szintek száma: 2.?Garázs: 2 beállósTovábbi információért forduljon hozzám
bizalommal!Amivel segítjük az Ön ingatlanvásárlását:?ingyenes, bankfüggetlen
hitelügyintézés (CSOK és Babaváró ügyintézése is.)?jogi háttér?földhivatali
ügyintézés?energetikai tanúsítvány elkészítése?biztosítás ...TOVÁBBI, TÖBBEZRES
INGATLAN KÍNÁLAT: www.gdn-ingatlan.hu - GDN azonosító: 393539
városrészében eladó!Az ingatlan gondos hozzáértéssel épült, kifejezetten
elegáns, rendezett környezetben található Vácon. A tulajdonos saját maga és
családja számára építette ezt a gyönyörű házat, ezért a leendő lakója egy valódi
otthonra lelhet benne.A lankás teleknek köszönhetően utcafronton 1, a kert felé
pedig 2 szintes az épület. A pince szinten 2 állásos, tágas garázs, tároló
résszel, egy nyárikonyha és egy zuhanyzó kapott helyet. A földszinten 4 szoba, 2
fürdőszoba és hatalmas, tágas nappali egy légtérben, mégis némileg elkülönülten
található az étkező és a teljesen felszerelt konyha. A nappaliból nyílik az
erkély, ahol kényelmesen elfér egy 6-8 személyes étkezőasztal. A teraszról és a
pince szintről is a kertbe jutunk, ahol a csodálatos panoráma mellett egy
medence is elénk tárul, amit a kiépített hőszivattyús rendszerrel fűteni is
tudunk. A kertben automata (robot) fűnyíró gondoskodik a tulajdonosok
kényelméről.Műszaki tudnivalók:A ház 2021-ben épült 30-as Porotherm téglából,
melyre 15 cm grafit szigetelés került. A födém fa szerkezetű, ami teljes
egészében szigetelt. 5 kw-os napelem látja el a ház elektromos áram igényét. A
ház fűtése elektromos kazán, de rendelkezésre áll kandalló és több hűtő-fűtő
klímaberendezés is. A kimagasló minőségi járólappal burkolt földszinten
padlófűtés, az alsó szinten radiátorok biztosítják a meleget. A szobák ablakain
szúnyogháló véd a nemkívánatos rovaroktól, műanyag redőnyök pedig a hőségtől. A
nappali hatalmas üvegfelületeinél elektromos redőny beépítésének lehetősége
kialakításra került. A helyiségek belmagassága 270 cm. A házban hatalmas
gardrób- és tárolószekrények, teljesen gépesített konyha szolgálja a kényelmet.
A környék infrastruktúrája kiváló: tömegközlekedési lehetőségek,
bevásárlóközpontok, boltok, iskola, óvoda, orvosi rendelő rövid sétatávolságon
belül elérhetők. A környék csendes, mégis minden fontos szolgáltatás könnyen
hozzáférhető. A Vác közeli hegyekben remek kiránduló útvonalak és tanösvények
várják a látogatókat. A Duna közelsége lehetőséget ad a vízi sportok űzésére és
a kiépített kerékpárút az egész Dunakanyart lefedi. A közvetlen szomszédok
kedvesek, barátságosak és megbízhatóak.Főbb jellemzők?Földszint: 122 m˛?Pince
szint: 68 m˛?Terasz: 23 m˛?Fűthető medence: 7m x 3,5m ?Szobák száma:
5?Fürdőszobák száma: 2?WC: külön 2?Fűtés: elektromos kazán és hűtő-fűtő
klímák?Szintek száma: 2.?Garázs: 2 beállósTovábbi információért forduljon hozzám
bizalommal!Amivel segítjük az Ön ingatlanvásárlását:?ingyenes, bankfüggetlen
hitelügyintézés (CSOK és Babaváró ügyintézése is.)?jogi háttér?földhivatali
ügyintézés?energetikai tanúsítvány elkészítése?biztosítás ...TOVÁBBI, TÖBBEZRES
INGATLAN KÍNÁLAT: www.gdn-ingatlan.hu - GDN azonosító: 393539
Részletek...
Adatlap
| Ár: | 295.000.000 Ft |
| Település: | Vác |
| A hirdető: | Ingatlaniroda ajánlatából |
| Értékesítés típusa: | Eladó |
| Használtság: | Újszerű |
| Utca: | Deákvár |
| Telek nagysága (m2) : | 838 |
| Épület hasznos területe (m2) : | 190 |
| Szobák száma: | 5 |
| Fűtés: | Egyéb fűtéses |
| Anyaga: | Tégla |
| A hirdető kérése: | Ingatlanközvetítő vagyok - keresse fel Irodánkat! |
| Feladás dátuma: | 2026.03.16 |
| Eddig megtekintették 5 alkalommal | |
A hirdető adatai
Kapcsolat a hirdetővel...
Családi házak rovaton belül a(z) "Eladó családi ház Vác, Deákvár" című hirdetést látja. (fent)




























